
拿到这套房子的时候,梁小姐提了两点要求。 1⃣️ 她不希望去做全屋定制,因为她希望她的家没有一个柜子! 2⃣️ 她需要一个超大的大西厨! 我在优化平面的时候,不光满足了梁小姐这两个需求,还给她设计了满足精致少女心的主卧空间;超级强大的生活阳台和设备间;还利用宜家橱柜的边角料创造性的做了给新婚2小口设计了双人位的工作区域! 而对于造价的把控,这套我还是比较满意,这套房用了风管机,全屋净水(日丰管全屋重换),新风设备,含了电器预算没超25万,平均每平米均摊下来不到2000元一平,做套四想节约预算的朋友可以参考一下梁小姐这套的设计理念!

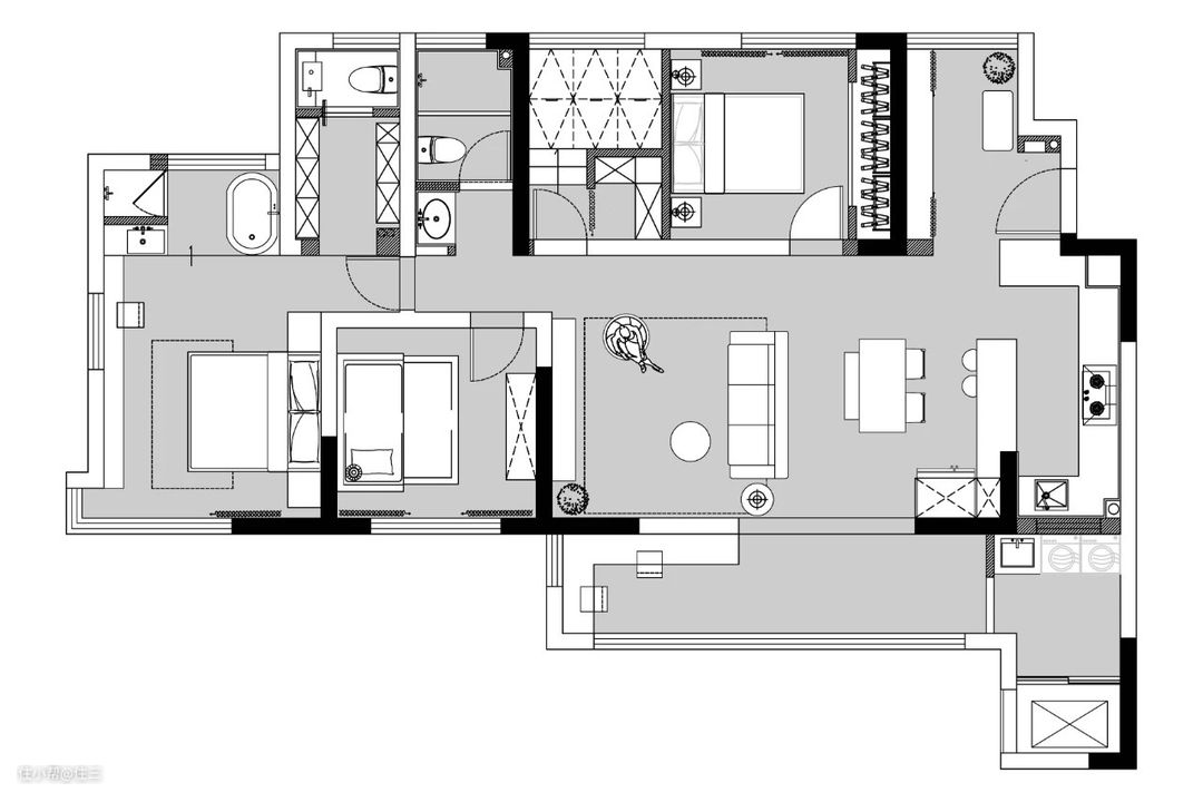
因为此前在同一个小区做了同户型的案例,所以我大概还是比较了解这个户型的。它是一个紧凑型的套四,房间看似很大,但如果仔细把家具放进去就会缺斤少两。比如放进去衣柜放床就很恼火;妥协了放了1.5米的床,床头柜也就只能2选1,永远觉得空间不够!! 所以,从这个点出发,我首先改动了大横厅上方的2个次卧,将2个卧室中间的墙拆除重建,调整2个卧室的面积的大小,大的卧室作为父母卧,小的卧室做为榻榻米房间以及储物间。而梁小姐心心念念的大西厨,则是自然拆除了门厅侧面的墙体以及原本厨房能拆除的所有墙体,使整个厅豁然开朗!

这张图详细展示了,在没有做全屋定制衣柜的情况下如何利用储物间体系进行合理的收纳。 1⃣️入户进门的位置鞋柜的收纳,利用搁板+鞋盒+窗帘的状态。 2⃣️入户就可以感受到超大西厨,整体都是在宜家定制的橱柜,2个师傅整整安了2天,这组鞋柜也是等到宜家周年庆折扣的时候买的,如果没有记错花了1.8w,还利用这个边角料让师傅做了阳台的双人工作台! 3⃣️父母卧做了一个嵌入式的收纳间,利用宜家艾格特+窗帘进行衣服的收纳。 4⃣️小次卧做了一个榻榻米,榻榻米是用的兔宝宝的免漆板现场定制的收纳大件的褥子等。 5⃣️小次卧不光做了榻榻米,还有一个mini的储物间,储物间里用了艾格特主要放一些日常杂物的收纳。 6⃣️主卧榻榻米做了艾格特进行收纳衣物。 7⃣️生活阳台隔成了2个部分,一部分是设备间放了全屋净水的设备还有中央空调机箱,另外一部分放了洗衣机烘干机,还有壁挂式洗衣机以及一个小的洗手池。

主卧的设计思路,则完全满足了女主人的少女情怀。我将原本的主卧安排的衣帽间 & 卫生间 & 卧室区3个板块分开,将卫生间体系做了完整的四分离。 1⃣️ 单独的马桶间与衣帽间相联,这样达到了衣帽间艾格特的安装条件,马桶间安装洗手池主要给男主人使用。 2⃣️ 与卧室相连的干区洗手池主要给女主人使用,与她的超长化妆区相连,两个分开的洗手池让晨间生活互不打扰。 3⃣️ 考虑到排水,将浴缸区域抬高独立浴缸摆在上面,这也是女主人完全没想到的设计,果然,入住之后,这也是她最爱的区域。 4⃣️ 淋浴区藏在干区洗手池背后,小巧也能达到泡澡前沐浴的功能。

当当当~收纳秘籍第一点,打开门即得!!超大的入户鞋子收纳中心,3块大隔板是定制的,上面放着透明鞋盒,储物量足够!如果不喜欢太凌乱也可以用窗帘布遮挡住鞋柜!

门厅的壁龛因为没有找全屋定制,原本打算做隔板但是无奈电钻进不去,就用收纳杆做支持上方放置隔板灵活性更强!

收纳秘籍第二点,打开门也能看到!!因为把侧面的墙全部拆除,所以一打开门迎面就可以看到超大的开放式厨房。

厨房整体都是在宜家做的选了仿大理石纹的复合板台面搭配灰色柜门。

厨房没有做吊柜,操作台面足够的宽阔,也是为了节约预算。

墙面的工字砖也是用了假的花线格子砖梁小姐自己做的环氧彩沙。

水龙头选择的是伸缩式万向弹簧式水龙头。

宜家的橱柜经典的搭配灰色搭配金色的拉手。

岛台区域嵌入式了开关面板,为了节约预算没有选择电动感应式,这个是全手动的~

厨房小电器都安排在高台区,洗碗机烤箱,德龙3件套还有直饮水机一样都不少~

侧面的洞洞板上挂着的小篮子🧺放着一些厨房常用的小物件。

左手边的柜子是双面用的,一面给鞋柜一面给橱柜储物使用。

烟机灶选了一眼就迷上的大白,反正迷之喜爱,爱上它就买了它。❤️

灶具也是捡漏的是林内进口的4眼灶,它特别大!梁小姐说原本是去买热水器结果商家说这款4眼日本全进口灶具卖不出去搭着热水器低价出了,确实安装的时候橱柜师傅还整切了下方橱柜才安进去!有时候装修捡漏还得看人品!

这是在西厨位置俯瞰整个客餐厅还有阳台工作区的状态。

餐厅2个吊灯被梁小姐diy上了波点风,餐桌和餐椅是尼摩家的,长条凳以及小圆凳是宜家打折时候采购的,对了吧台的2个吧凳也是,梁小姐说特价折价区是她的好朋友!

这个角度可以整体看到 客餐厅以及西厨区域,从大场景来看这3个板块的是有一个层次感的让整个大横厅很有细节但是又不显得凌乱。

特别喜欢一张竖构图,沙发旁边摆的小推车方便又灵活。

这张可以看到门厅与西厨的关系;西厨和餐厅的关系;餐厅和客厅的关系。除了吊灯吊高了些还是没毛病,而这个点是我的锅,当时去晚了师傅已经挂上去了,线已经剪了!!各位金主爸爸们,安灯一定别慌先call我到现场再动!

西厨地面铺的是六边形砖与客厅木地板做的拼接。

客厅摆了宜家的小茶几和懒人沙发,因为基本不看电视电视机也梁小姐也是买的特别便宜的老款,安装的时候我也在现场,还被安电视的师傅吐槽。

父母卧选用了宜家的铁艺床颜值高又不贵,床头安了精致的小吊灯搭配挂画。

床头的开关面板也是复古开关,也透露出梁小姐的小心思。

床头柜也是搭配宜家的,吊灯是阿里巴巴买的,特别推荐给省预算的朋友们,同样同款阿里巴巴比淘宝少一倍还多的价格,大家小本本记好了~

收纳秘籍第三点,嵌入式收纳间!!改造了卧室的大小,将床尾的区域做了2个门洞,内部安装艾格特,一个嵌入式收纳间就完成了。

本人做作演绎一下,衣帽间的使用场景。

公卫做了干湿分区,注意也没有柜子,梁小姐迷之喜欢开放式的收纳方式,这个是在淘宝定制的搁板式淋浴柜。

干湿分区做了铁艺门玻璃选择长虹玻璃,铁艺门平齐外延方便打扫,内部马桶区域也多一个小平台放手机。

淋浴区的铁艺架子是宜家的,防水还可以收纳,一个完美的产品!拖鞋收纳器就不要淘宝买了,梁小姐教大家拼多多用起来!!

儿童整个墙面做粉色的墙面,考虑到暂时都不会有小孩子,其实什么家具都没有采购,节约预算!!

透过小窗户看帐篷,蓝色的叮当猫是一个吸甲醛的竹炭包,第一次看到就很喜欢,然后我就淘宝直接买了一套,哈哈哈~

收纳秘籍第四项,榻榻米的收纳!原本的小卧室给了一些面积给父母卧,这个房间整体就变小了,还是为了保证有朋友来留宿或者后期有了孩子保姆入住,所以就将这个房间整体抬高做了榻榻米。有了这个榻榻米就可以安放一些需要柜体储物的东西比如被褥之类的物品。

收纳秘籍第五项,储物间!这个储物间是非常实用的,从门帘可以依稀看到一些大件的盒子,很多人在购买了电器之后因为考虑到质量问题都不会立马扔掉,这个位置就成了暂时存储大件物品的空间还有就是存放巨大的行李箱。

不要被卡通的龙猫所吸引,现场其实还是高级感满满的~~正对墙面是空气净化器。墙面的窗帘是咖啡色正好搭配主卧床头的色调。

床头的吊灯也是阿里巴巴买的,略有色差但是便宜!!床头柜是宜家的限量推车打折时采购,跟床品还挺搭配的,看的出来床品来自野兽派吗~😂

来看看浪漫泡澡区域,这个浴缸也是开工前就定好了,原本梁小姐对独立式浴缸已经没有想法了,她觉得肯定没地方安所以还没开始设计她趁着当年双11就买了,后年平面定下来协调商家换的款式~✔️

浪漫的浴缸区域~🛁

这张图是透过干区洗手池镜子拍到的,镜子里可以看到卧室区域,侧面可以看到浴缸区域,墙面还有梁小姐贴的小卡片。

主卧干区是用粉红小砖砌的,搭配naso的镜子和小吊灯~

粉色砖砌的洗手池,总是女孩子一眼就喜欢的。😍

透过化妆镜可以看到浴缸一角,窗帘是宜家的蕾丝帘子,内部是防水的铝合金百叶。

透过这个角度可以看到躲在洗手池后方的淋浴区,我们还选择了拼图砖~🧩

收纳秘籍第六点,主卧衣帽间!这张图可以看到主卫呼应主卧的色彩用了粉色的通体砖,特别好看!为了节约空间做了pvc的折叠门,两侧就是艾格特衣帽间,男主人和女主人一人一边~

肯定大家还是很期待那个厨房边角料改的L形书桌,就是在厨房区区买了一张399的复合板桌面,然后去书桌去买一个2个抽屉柜另外加一个伸缩桌腿就get了!拍照的时候小两口在这边打游戏搞不赢就没有细致去拍!

收纳秘籍第七点,生活阳台&设备间!从门帘看进去就是洗衣机间还有设备间了,面前这个未来感的东西就是新风机。⚠️ 特别说明,因为梁小姐家安了新风机,平时都不开窗户,家里灰尘很少也满足整体做开放式收纳的条件。
