愿林深时见鹿
海蓝时见鲸
梦醒时见你
每个年轻人心里都有这样一个梦:
想要一个属于自己的房子,装修成自己喜欢的样子

与设计师对话
本次小编探访的业主就是这样一位年轻的90后女孩,她也梦想着拥有一套属于自己的房子,如今这个梦想终于实现,接下来就可以将房子装修成自己喜欢的样子!
正当业主和鸿鹄设计师范敬旋讨论户型设计——将三房改二房(原本的次卧改书房)时,业主的哥哥连夜给范工发微信,阻止这一想法。
Q:业主哥哥为什么要反对这个户型设计呢?
设计师:哥哥是考虑到楼主以后结婚,认为房子设计应该考虑实用性,如果把三房改二房,以后结婚了家里来人不方便。
Q:后来业主还是将三房改成了二房,是什么促使她坚定了想法?
设计师:后来是我的想法触动了她,业主目前还年轻,三房不是刚需,还是要听从自己内心的想法,了解自己真正想要的是什么,而不是别人想要的是什么。
Q:后来哥哥还是反对吗?
设计师:房子装修完以后,她的哥哥来看过实景,对业主的装修想法还是表示了认同。
Basic info基本信息
面积:160平
风格:北欧风
整包造价:40w
居住人口:1口人
装修公司:鸿鹄设计

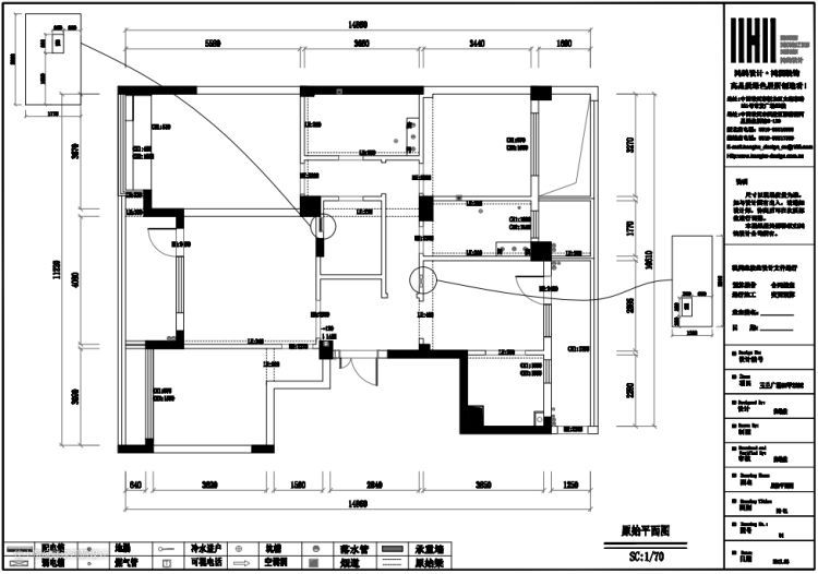
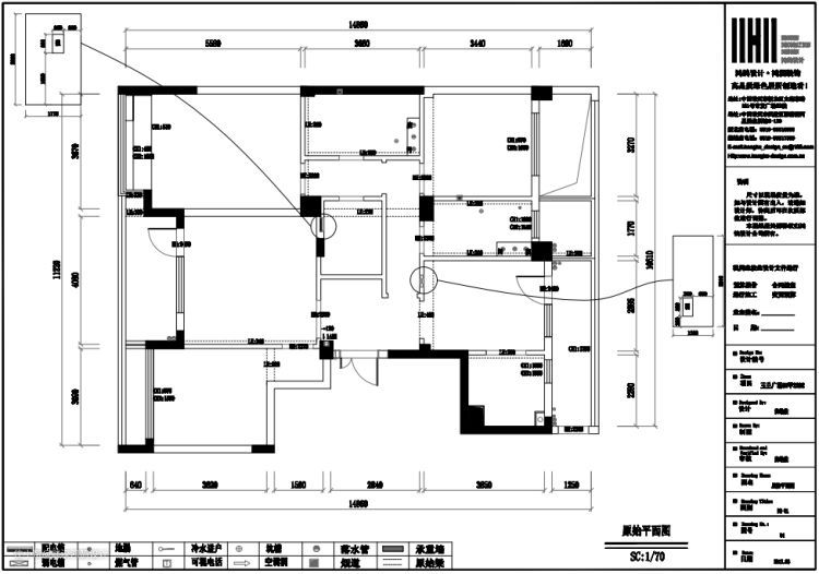
原始平面图

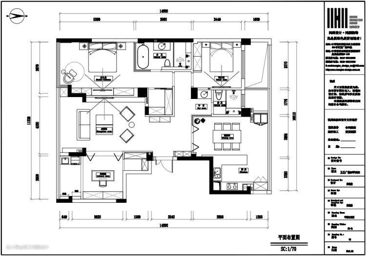
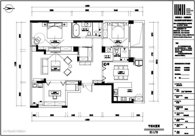
设计户型图
户型改造亮点:
1、客厅阳台打掉,考虑到业主平时一个人住,不需要这么大的阳台,不如扩大客厅空间,将阳台放在书房。
2、餐厅阳台打掉,原本的户型厨房空间太小,将阳台打掉以后,厨房和餐厅的空间都能扩大,显得更宽敞。
3、正对入户门的墙面往后移,使这面墙和餐厅的墙在同一水平面上,保留客厅、餐厅的整体性
客厅打破了传统观念,不再是前面一个电视机,放一个三人座的沙发。对于现代年轻人来讲,更重视的是朋友之间的互动性,所以设计师就选了对做的沙发。设计师强调:不希望一家人坐在一起不说话,全都看着电视。




厨房是开放式厨房,考虑到业主经常有朋友来家里聚会,一边做菜还能和在餐厅的朋友无障碍聊天,温馨、自由的感觉油然而生,满足业主的生活需求。


餐厅整体色系是白色加上木色,这两种颜色打造了一个干净、利索、纯粹的空间。现代高层住的空间都会选择买一些绿植,从业主餐厅的窗外也可以看见绿植,餐厅挂的这幅油画和窗外、家中的绿植形成呼应呼应。


餐厅没有用移门,移门虽然会比较亮,但是空间感没有那么宽敞。设计师选用的是折叠门,折叠门一打开,相当于餐厅和客厅是连成一体的,空间感更强,和客厅的互动性更好。
书房也是用的折叠门,打开就可以和客厅互通,让人感觉书房和客厅是一体,通透敞亮!书桌上的台灯是业主自己淘的,一开始看中没有买,但是回来以后心心念念,后来还是去买了,结果证明效果非常惊艳。

主卧以布质床结合木地板,再搭配上色调鲜明的灯具软装,创造舒适、休闲的气息。午后,夕阳西下的时候,窝在小沙发里,喝杯咖啡,看看书,惬意又悠闲。床头灯很有特色,可以随意调方向,既有趣又实用。



主卧的套件中有一个酒店式设计,透明玻璃作为隔断,整体空间通透;地面选择小花砖铺就,给整个空间带来一丝活泼的生机。做了独立式的浴缸,打破传统,没有做的中规中矩,希望整个空间看起来灵动一些。

客卧是业主准备给父母住的,色彩选择则是运用了简约的灰和白,让整个空间变得干净整洁。

