户型解析
平面布局设计时针对以下两个痛点进行了修改: 1,原始户型中客厅和主卧阳台相通,空间利用率不高,保护隐私性能也不好。 将客厅和主卧两台拆分成两个,中间连接部位使用背靠背的柜子分隔开来,客厅阳台主晾晒功能,主卧阳台主存储功能。 2,门厅处和次卧空间分配不合理。 将原始次卧与门厅之间的墙拆除,重新分配两个区域的面积,使次卧增加了更多收纳空间,并且门厅保持合适的大小。 另外,原始户型客厅长边较长加上房主有多功能房的需求。因此在客厅里又划分出了一个单独的区域用带色玻璃移门分隔开来。既能当做休闲区域使用,也可以当小书房使用,使用沙发床还能秒变小卧室。

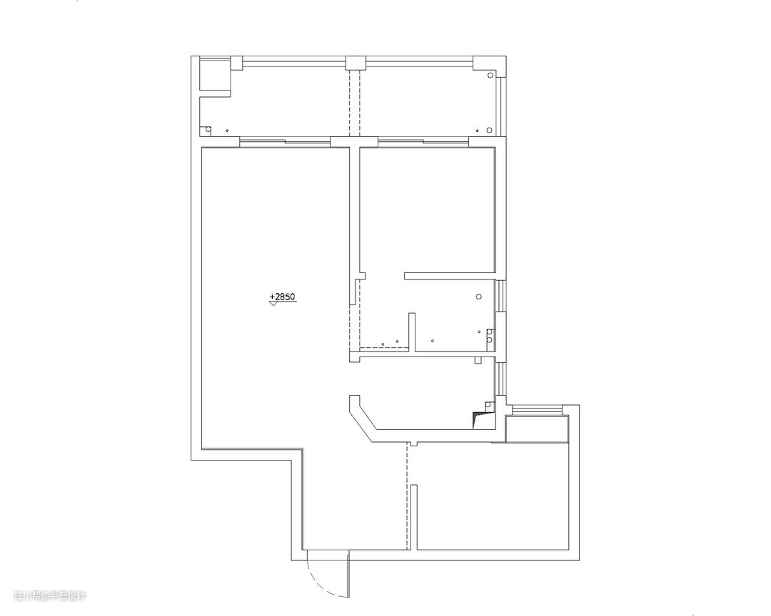
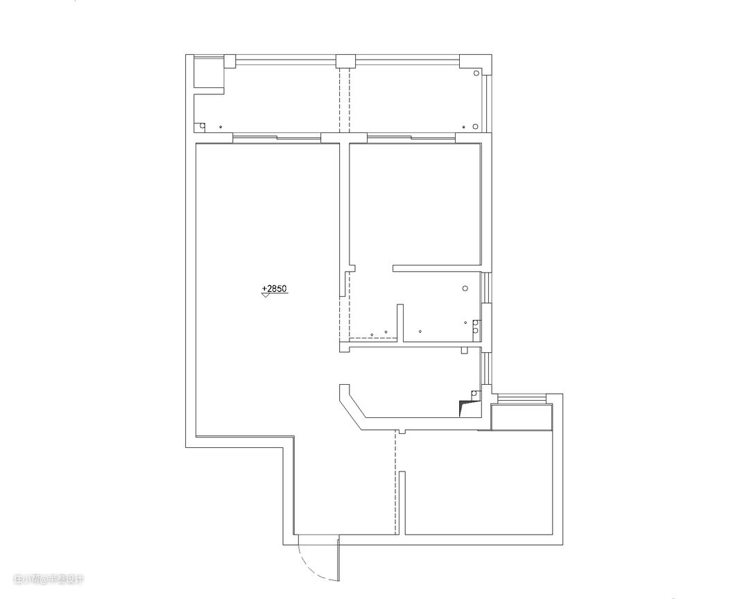
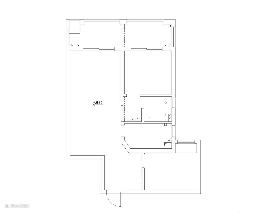
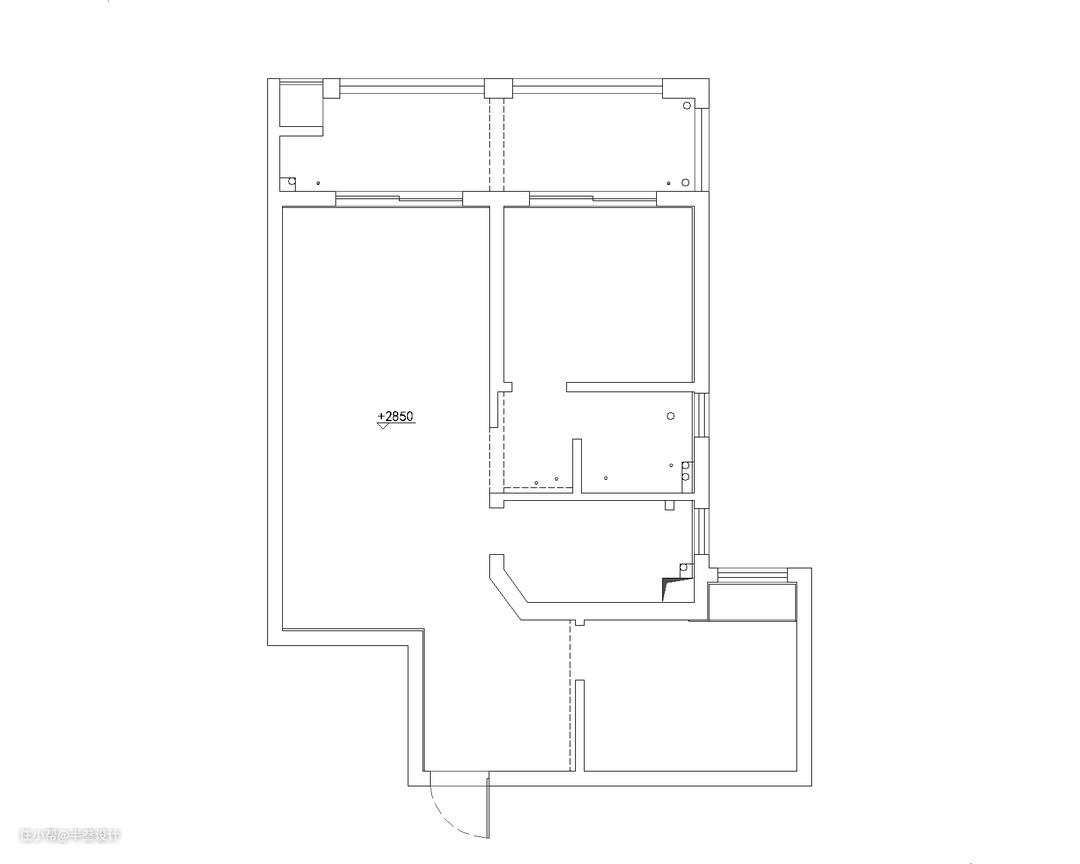
原始户型图

平面布局图
前后对比
客厅纵深很长,使用玻璃移门分隔出来的区域刚好能满足房主需求。


玄关
玄关处鞋柜和换鞋凳一体设计,整体性更强。粉色的换鞋凳和主卧床头还有多功能区的墙壁相呼应,让Pink这个设计思路贯穿全屋。


客厅
客厅、餐厅多功能区域保持风格一致。选购合适的家具和软装也能让整体效果增加不少。




主卧
主卧的墙壁、窗帘和床品选择同一色系。温馨感十足,也能和客厅相呼应。


儿童房

卫生间
干区的地面拼花很好的解决了水溅的问题。和地板之间的无缝拼接设计感十足。

干货清单
经验问答
问:装修这套房子最大的难点是什么? 答:因为房主有一个多功能房的需求,需要在客厅划分出一部分面积作为多功能房。这对尺寸的把握要求很高。多功能房的面积要能刚好放的下沙发床或餐桌或书桌椅,和暖气片。且这些家具设备之间在使用时不能相互影响。
