户型解析
1.户型问题:整体格局较小,收纳衣柜储物柜相对比较少,冰箱没有地方放 解决方案:增加整体餐边柜与客厅收纳柜,卫生间改造成衣帽间等来增加储物性能 2.布局问题:常规布置客餐厅以及主卧,考虑到以后宝宝前几年还是跟妈妈一起住,还是选择了1.8米的大床,书房做一整面的书柜,升级打怪的装备书籍终于有地方住了 3.业主要求:收纳一定要强。然后整体要干净清爽,喜欢绿色 4.设计思路:户型比较中规中矩,在不改动大格局的前提下,尽量做到了收纳PLUS,将原本的主卫改造成衣帽间,让卧室储物得到保障。
前后对比

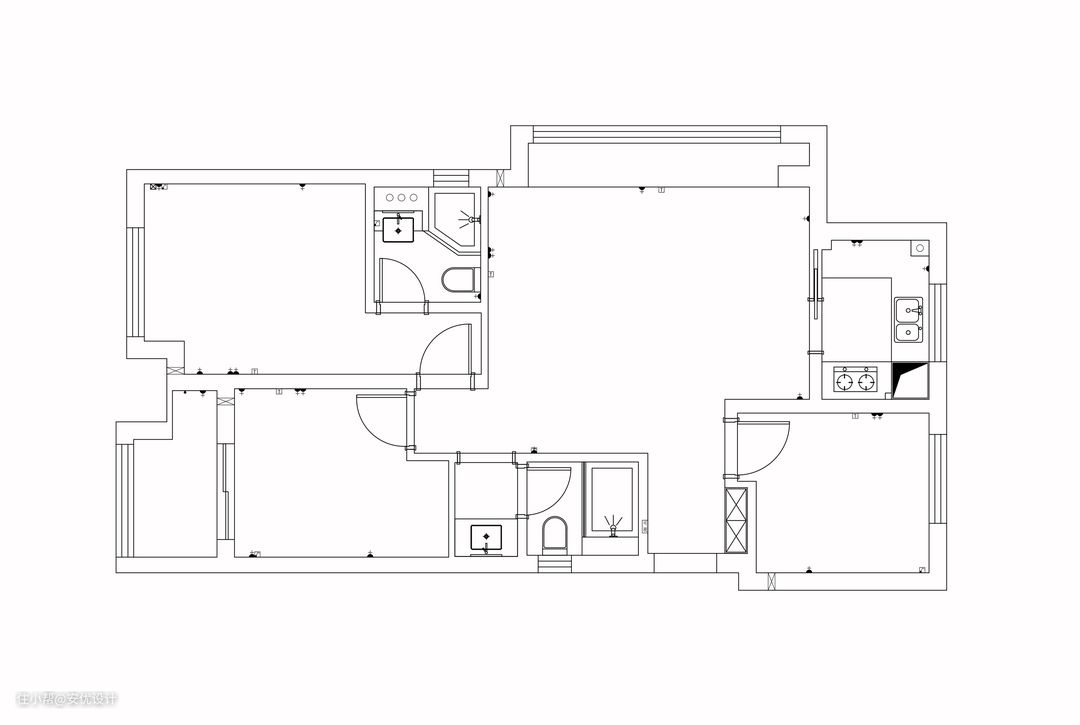
原始结构图

软装平面布置图
客厅

“春天把花儿留到了初夏 色彩把梦想漾成了詩篇”

通过大胆丰富的色彩碰撞 将精装房原有基础打破 重新定义家的温度 俏皮的艺术吊灯 古灵精怪的装饰画色块 充当整个空间的门面担当 回家成了翘首以盼的美好




收纳!收纳!我要强大的收纳功能 最大程度的满足了储物 实用和美观都能被设计所满足



餐厅
橘子汽水味的夏天

你就像天上的云朵我好想变成彩虹 橘子汽水的香味飘在空气中 你嘴角的奶油看得我好心动





主卧
主卧 艺术色块系列的壁画碰撞暖橘色家具 温馨之感无限蔓延





儿童房
仙人掌生长在什么地方 都以这个姿势矫健地挺立着 让baby迎着阳光/快乐成长



书房
书房不在单一、乏味 在这里尽情满足自由的亲子互动空间






玄关
开门见山的喜悦

衣帽间
江原来主卫改造成衣帽间,大大的增加的实用性

干货清单
可以参考下配饰清单,有需要的可以加微信沟通13372568500

