这是套建筑面积90平方的二手房,原房型是平层35平方+阁楼55平方斜顶结构,阁楼梁下最高点2.1米。 因为和屋主是很好的朋友,房子买来后一起去收的房。当时站在客厅里第一感觉很局促,进门右手边是卫生间门口,一进门就能看到厕所,左手边是楼梯,下面堆放了各种杂物,二楼是阁楼,平时主要作储物间用。整体感觉是典型的老破小,房子虽然寸土寸金,但使用功能不足,看起来灰灰暗暗。 房子是过渡过性住房,所以需要尽可能的控制成本。 预算有要求,又是过渡性住房,是不是意味着必须要舍弃一些本来的功能需求,勉勉强强入住? 不,我们从颜值,环保,生活的舒适度上都不愿意这样做,反而要对每个区域的功能要求更加严苛,将每一分钱的预算都利用到极致。

当时一起去收房的现场,这是客厅。

原来的厨房。

原来的卫生间。

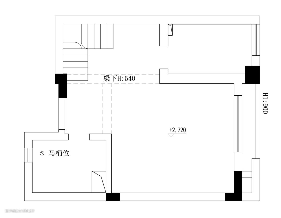
二层原来的阁楼。 户型缺陷: 1,实地站在客厅的时候,感觉整个空间十分局促。 2,同时满足包含父母在内一家四口的居住需求。 3,储物空间严重不足。 4,阁楼为斜顶且最高点2.1米,空间利用难度大。 5,整体装修好预算只有10万,包括基础装修,电器家具空调。

一层原始结构图

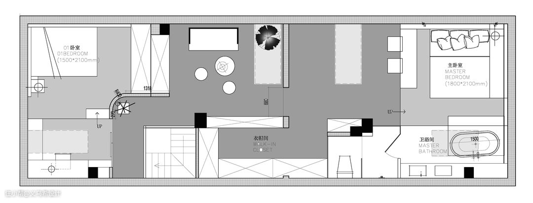
一层平面布置图 户型优化: 1,打通客餐厅厨房这一片区域,让空间开阔起来,自然光线也能够照射到每个角落。 2,改造卫生间,增加门厅功能区。 3,重塑楼梯区域,好看同时还实用。 4,由于预算不高所以定的装修主基调,除了必要的格局拆改外,基础装修能不动的尽量保留,把每一分预算花在家具家电,体验感强的地方。


改造前的客厅。 第一次实地站在客厅的时候,就感觉到空间十分局促,客厅厨房相互独立,采光优势也没有发挥出来。当时脑海里第一想法就是要打通这一片区域,让自然光线全部能够照射到每个角落。


外扩区域示意图,红色位置为一层客厅外的原设备平台。


房子的楼层高,无遮挡,自然采光和视野都极好。我们外扩设备平台,换成了落地大玻璃,同时打通厨房获得双倍采光,空间变得比原来敞亮很多。


墙面深色乳胶漆一般会建议用进口乳胶漆,颜色正而且还可擦洗。 但是餐厅厨房门厅这一块的黑色艺术漆算出来费用在4000以上,再三考虑后,决定用立邦黑色乳胶漆,为了方便打理,表面再刷上罩光油,最后这块做好工资+材料一共1000左右大洋,过程折腾了好久,光是上罩光油都好几次样,不过最终上墙后还是挺满意的。


顶上设计的无主灯设计,客厅的照明主要通过射灯,餐厅是吊灯,局部的点照明让家里更有氛围。

打开厨房墙体改成开放式厨房,将原本显得拥挤的三个独立空间融合在一起,以后饭菜做好不需要绕很大一圈才能到达餐桌,方便了不少。


厨房的橱柜保持原状不变,在顶部墙面地面上了三块改造: 1,厨房开放后,原顶部集成吊顶拆掉做上石膏板吊顶,和客厅的顶部连成一体更协调。 2,原来的墙地面砖因为使用年份久特别脏,墙面换成了水蓝色的小条砖,地面白色的水磨石,厨房瞬间整个感觉就不一样了。 3,厨房墙体拆掉后,橱柜连接墙体的背板露出来了,重新订门板颜色也有色差,就买了个黑色的装饰柜收口,台面装饰上一束花,又是美好的一天。

这是厨房的墙面砖,9.8块1片,当时淘宝上买的水蓝色砖样品,开始在选100*300mm的小条砖,后来发现价格感人,而且后期美缝费用也会多出很多,就直接买了200*600的长条形,实际效果贴出来也蛮好看的。


设计之初预留好冰箱的尺寸,砌墙时将冰箱刚好嵌入墙体。(看到厨房旁黑色的隐形门了吗,后面是秘密的储物间)

背景墙角落是原来卫生间管道的位置,有40公分的深度,刚好用钢板做了壁龛,平时用来放放书本,大人和小朋友的玩具。

餐区同时也与客厅、厨房形成互动关系,无论日常生活中在厨房备餐还是在餐区就餐,都可以跟在客厅的家人有个良好的互动体验,做饭的时候也可以瞧一眼小朋友有没有在写作业拉~

红色区域是门厅和楼梯区域的改造示意图。

入户门厅正中心位置的“喵先生”装饰画,是设计师亲自为家里的主角之一“蜗牛”精心挑选的主题。

来”蜗牛先生“出个镜~

门厅和厨房对地面材质要求高的区域贴的水磨石,客厅铺的木地板,因为贴砖的厚度和地板不一样,原本客厅要地面找平后贴木地板与砖齐平,预算的关系,就选了稍宽的4CM收边条来收口,颜色用的香槟金色,不盯着看是发现不少地砖和地板的厚度落差,省下了好几百大洋。

原始楼梯是实木踏步,镂空结构的成品楼梯

梯栏杆拆掉,保留了踏步结构

楼梯这个区域的意境是特地营造的,我们把原镂空的楼梯改造成了实体楼梯,踏步侧面木工板包掉面贴上木地板,整体感还不错。(请不要留意踏步上四个小孔,当时拆栏杆时留下的)

楼梯背后的“真实面容”是楼梯底部连同原厨房的公共空间一体变成超大的储物间,以后储备的 物品都有地方放了。

在中空位置,放置的日本吊钟更是“画龙点睛”,让空间生机盎然,每次朋友来做客,都会在这里打个卡~


一层卫生间,改造前的卫生间收纳不够,干湿区在一起,使用起来也不方便。

我们打开墙体,把原卫生间改造成了四分离卫生间,洗漱区,洗衣机区,马桶区,淋浴区,相互独立,这样避免里面有人入厕,外面洗手都要等的尴尬。

卫生间玻璃隔断的材质上选择了长虹玻璃,透光不透人,增强了采光又可以扩大空间。 淋浴房和洗衣区用的一开多用门,平时淋浴房的门可以打开透气,同时挡住洗衣区,避免看起来杂乱。 干区贴的墙砖稍微比洗手盆高一点,这样用水时不担心弄到墙漆上,还有贴半高砖能省贴砖人工费和砖的费用。
二层阁楼,坡面屋顶,结构杂乱,最高点2.1米,通风采光主要来自屋顶四个天窗。



我们在格局上以采光天窗分为五个区域,起居室,卧室,主卧室(衣帽间,儿童玩乐区,卫生间)

走上阁楼,迎面进入的是开放的起居室,天窗采光特别好,在这里放上一把躺椅,坐着看看书,抬头看看外面的天空,思考思考人生,非常惬意。


起居室靠近斜坡位置做上了一排书柜,书架摆上小朋友喜欢的书和玩具,小朋友喜欢涂鸦,给他准备了一个小黑板,这里是小朋友独有的小天地。

主卧室为套间,包括了卧室,衣帽间,卫生间,工作台,儿童玩乐区,五个空间都是独立但联通的,想要的功能都有。

主卧一侧的玩乐区,是小朋友的最爱,靠墙放了一个小帐篷,在天窗下铺上一张地毯,两组懒人沙发,平时大人可以陪小朋友可以在这里玩耍,也可以休息。

卧室的地面抬高是从工作台一直延伸到床边的,给人的感觉像就是把床包裹住了一般,这样的最大程度的利用了空间。 床头的光源采用间接照明,提升幸福的小壁灯光源折射打开,温和不耀眼,晚上看看书,空间静谧舒适,黑色层板的设计也让枕边书籍可以整齐摆放,干净整洁。

“蜗牛”先生再次出镜~

主卫生间,分成内外两个部分。 外面是洗漱区和浴缸,里面是马桶和淋浴间。由于坡屋顶的梁柱构造复杂,梳妆台和洗手台放在靠天窗位置,沿墙做了一个3.5米长的整体洗漱台,左侧留足梳妆台位置,下方安排了足够的收纳柜体,这样台面上不会被过多的物品覆盖,同时也会在日常使用中比较清爽整洁。

1.5米的成品浴缸倚靠着天窗,泡澡的时候,打开氛围小吊灯,放点音乐,抬头望着星空,小小的仪式感让人感到幸福。



如果装修预算不高的情况下,应该如何装修? 装修时在花大价钱买房以后预算不足就是常态,那这个时候就是将就的入住么? 不是,从好看,环保,后期使用的幸福度等等来说,我们都不建议这样做。 参考方法: 1,找到和自己聊的来,专业的设计师,这很关键。(装修过程很长,细节很多,聊不到一起双方都会很被动。) 2,开工前,和设计师一起做好合理的整体预算分配,把钱花在刀刃上。 (供参考:基础装修25-30%,主材25-30%,家具20%,家电20%) 3,硬装尽量少造型,设计时细化效果图,设计的内容有购买的渠道和合理价格,确定后期设计效果可落地还原。 4,基础装修用一线品牌的辅材,大品牌更放心。 5,环保类主材不能省。(油漆一定选大品牌) 6,品牌的标准品类可以选择网购,价格相差很多。(如灯具水龙头马桶洁具类),需要售后服务的建议实体店购买(如空调,全屋定制等) 7,空调,电器类选大众化品牌,地板瓷砖就选性价比高的,不挑品牌。 8,对整体预算不影响的,使用频率高体验度强的主材,一定要买自己承受范围内最好的,可极大提升幸福度。(如智能马桶,LED魔镜,凉霸) 9,”推迟购买“,不能省又超出自己承受范围,但不影响日常生活的推迟购买。
