项目地点:佛山顺德容桂 项目性质:室内设计,建筑修缮,庭院改造 项目设计:筑加团队 绘图:谢曾权 主要材质:黑白根大理石,岩板,铁锈漆,瓷砖,木饰面,烤漆板 设计说明: 顺德——一个有着浓厚生活气息的城市 在这个很老的岭南风格的村子里 1990年,房子的屋主用尺子和铅笔绘制了平面图,开始自己动手 石米外墙皮、水磨石地面见证着这家人的成长 随着时间的推移 2018年,我们团队到现场量尺,开始着手改造这个老房子 家庭成员的变化与成长,原有的格局已经不适用于当前 我们将居住空间重新去定义和塑造 加入西厨,在原有的院子里从新建造了一个多功能工作室 运用更多符合当代生活格调的材料,大理石、岩板、铁锈漆、深灰色烤漆板 老人们可以看到这个他们亲手盖的房子焕发新的生命。

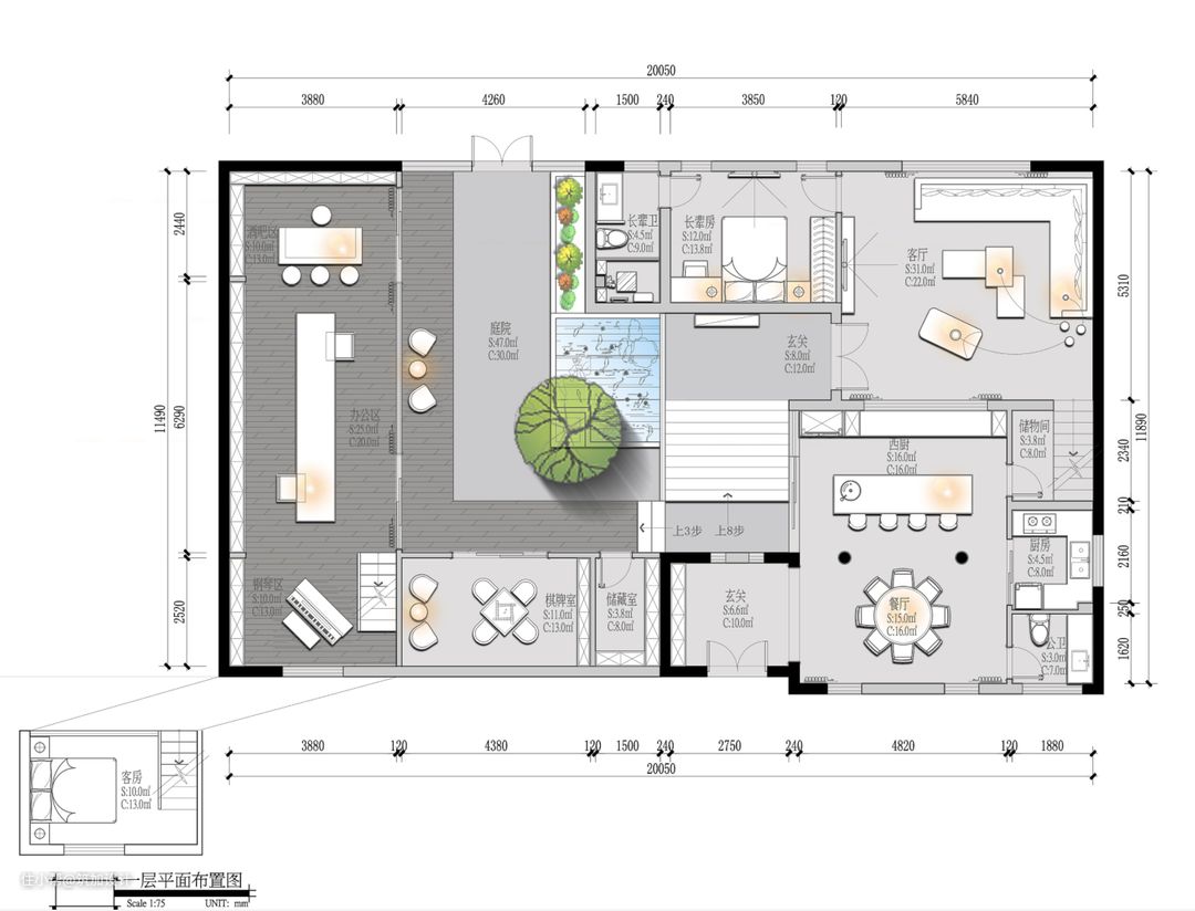
一层,在庭院的鱼池边,种一棵树,老人们可以坐在鱼池边喝茶

二层、主人房

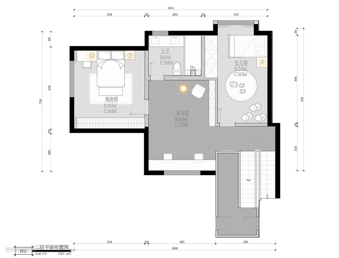
三层、小孩房与学习区

改造前,原来的客厅电视墙比较窄,右边的门后期被改成隐形门

改造后,完完全全的隐形门,门背面安装了闭门器,所以不需要锁

原来客厅的大门,后期也改成了隐形门

大门虽然也是隐形门,但是门锁还是暴露了它的面目,因为大门使用频率比较高,所以在实用与美观之间,我们选择了前者

入户玄关

工厂定制的深灰色鞋柜,烤漆门板,厂家定制的柜子很重要的一点就是,要注意他们用的顶封板与侧封板的尺寸,很多柜子安装上后很土很难看是因为他们把顶封板与侧封板做的太宽了,我们审核厂家出的图纸,都会要求他们原来10公分的顶封板只能露出2公分,同时再内凹2公分,这样才能体现出极简的现代感,就如同现在流行的窄边框金属门一样,柜子的边框一样也需要极窄。

红色部分是外墙,外墙漆大面积是灰白色真石漆,用了一些跳色,业主在建筑外观修缮方面并不想投入太多的预算,如果有更多的预算空间的话,完全按照我们原来的外观设计做会做的很有意思。

电视背景墙实际是带储物功能的,门板都用按弹的方式打开,这样保留极简的视觉观感的同时又具有储物功能,电视背景墙的右边是一个隐形门,安装了闭门器,所以不用门锁拉手

隐形门打开的状态,木饰面的分缝也很重要,比例、关系、每个细节都不能忽略


楼梯是素水泥楼梯,工业风的元素用的非常克制,只有两个铁锈漆柱子与素水泥楼梯,因为毕竟是家装,舒适度才是第一重要的

这两根铁锈色的柱子,是两根钢柱,先刷防锈漆,批腻子然后在刷铁锈漆,原设计是圆柱贴木饰面,因柱子的直径不大,贴木饰面难度大,造价很高,所以改成了现在的圆角方柱然后上铁锈漆。





工作室,原来我们建议业主的预算分配是:这个长桌用两块木头,一整块的大木头太贵了,包括运费都会贵很多,两块木头效果也不差,节省一些预算用于购买后面的货架,我们在淘宝已经找了物美价廉的货架,就是那种在咖啡厅经常能看见的工业风的,然鹅,结果就是你们看到的这样,业主看到了一块大木头,太喜欢了直接买了,然后后面的货架只能砍掉一部分预算,所以,这个货架就是一个真正的货架。






客厅效果图

客厅效果图

餐厅、西厨效果图

餐厅、西厨效果图
问:装修这套房子最大的难点是什么? 属于旧房改造,已经很老旧了,建筑也有点倾斜 问:如何有效控制装修预算? 与业主跑了几趟佛山瓷砖批发市场 问:最满意的设计亮点是什么? 木制定制柜子很好的还原了效果图 问:最值得推荐的软装好物有哪些? 客厅的地毯是宜家的
