
▲改造前平面布置图- layout chart 原始户型,就是一个上海人常说的“条头糕”户型。总体面积小、格局窄、采光差、功能空间缺失、动线单一、墙体不能改,是大家公认的棘手、难改类型。

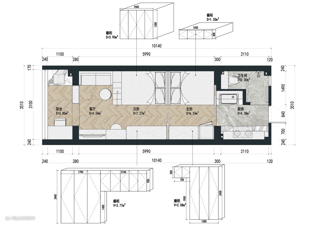
▲改造后平面布置图- layout chart 设计要点: 1.重新划分进门空间:卫生间做干湿分离,外置洗手台兼顾厨房清洗功能; 2.将原本的极小空间做分割:老人卧室 - 孩子卧室 - 客厅区 - 收纳区 - 化妆区; 3.把阳台一分为二:一半书桌区域,一半晾晒区域; 4.一侧墙体全部做成储物空间:根据各自空间分别存放物品; 5.全屋重新布线:增加室内的开关、插座,考虑到老人起居安全,增加智能感应。

▲原来的家中,一进门就是厨房、卫生间。厨房面积不到3㎡,台面堆满了锅碗瓢盆,几乎一半的台面都无法正常使用。卫生间非常小,坐在马桶上,膝盖直接碰到门。缺少收纳功能,抬手就能碰翻物品。

▲极小的房间承担着客厅、四口人的卧室、书桌等功能。沙发床睡觉时候拖出来,白天收回去。陈女士晚上加班,只能坐在爸妈床尾,借用电视柜的小空间。阳台挂满常用的衣服、物品,拿取非常不便。

▲进门处,就是厨房和卫生间的空间。设计师适当调整了两块区域的大小,把厨房的部分空间调整出来改造成了一个洗手台,也完成了卫生间的干湿分区。

▲进门处,就是厨房和卫生间的空间。设计师适当调整了两块区域的大小,把厨房的部分空间调整出来改造成了一个洗手台,也完成了卫生间的干湿分区。

▲进门处,就是厨房和卫生间的空间。设计师适当调整了两块区域的大小,把厨房的部分空间调整出来改造成了一个洗手台,也完成了卫生间的干湿分区。

▲厨房动图。长虹玻璃移门,保证采光通透的同时,也不会过多占用空间,又给整个家增添了现代的美感。

▲厨房动图。长虹玻璃移门,保证采光通透的同时,也不会过多占用空间,又给整个家增添了现代的美感。

▲客厅,打造成了一个功能复合的空间。“复合空间”是本次的改造亮点:外公外婆一个卧室+妈妈和女儿各有一张床+客餐厅+化妆区+办公区。让原本的使用空间极大扩大。

▲客厅。客厅电视背景墙收纳功能强大,一侧的位置做成了书桌的形式,这里也是孩子的学习区和妈妈的办公区。

▲客厅。实现餐客厅多功能兼顾,这个要用到时间维度、使用维度及复合维度做出分析,同时满足收纳、观影、聚会、就餐等功能。

▲客厅变餐厅。

▲父母卧室。厨房再往里走,是父母卧室,老人经常起夜,距离卫生间的动线越短越好。

▲业主和孩子睡觉晚,基本上在客厅活动,增加移门,就不会打扰老两口的休息。透光不透明的玻璃进行隔断,保证每个房间充足的采光,又不增加压抑感和闭塞感。

▲左边靠墙一侧做顶天立地的柜子,高处空间全部做收纳,外面看不到任何杂物,增加收纳空间,是小房子越住越大的法宝。

▲业主和女儿房间是上铺,上铺是一张2m的双人床,下面是储物间,能够存放陈女士和孩子的衣服。

▲沙发,拉出来就是沙发床。可以供女儿长大后使用。现在家里来个客人,也可以留宿。楼梯下的小空间,是一个猫窝。

沙发变沙发床

业主爸妈卧室的隔断。

▲阳台的采光是整个房间的唯一自然光源,将阳台功能一分为二,一半书桌,女儿和陈女士都可以使用。阳台的另一半是晾晒洗功能,两全其美。

▲卫生间。不足3㎡的紧凑型卫生间,设计师巧采用防水的软隔断,把淋浴区和马桶区分隔开,实现了另一种形式的“干湿分离”。

▲卫生间排水系统做的是地面抽槽,不管淋浴还是冲洗卫生间,都方便。淋浴花洒下面的小水池,可以洗漱使用,避免早上的使用冲突。

▲大理石纹墙砖,搭配深灰色地砖,简约的造型,时尚的现代感。

▲卫生间蜂窝帘隔断动图。洗澡的时候把蜂窝帘拉上就可以起到挡水的作用。
灶具——老板 瓷砖——Fans 整屋定制——芝麻开门 长虹玻璃金属门——芝麻开门 地板——卢森
1.为了满足客户的个性化需求,你在设计过程中做了哪些事情? 首先是量了他们家的平均身高,因为房子原始层高只有2.65,所以需要根据身高来决定业主和孩子床的高度,现在的高度让他们能在上面坐着而不弯腰。然后,为他们家造出了200%的储物空间,充分考虑了三代人不同的储物需求。 2.对平面布局做了哪些优化改动,为什么? 进门处是厨房的位子,原先的台盆和灶台是一个平面上的,我们把台盆放到了卫生间的墙面。卫生间,做了简易洗手盆,把内部空间舒适度提高了。卧室,把床横过来后,增加了大量的储物空间。增加了小型的床下储物空间,还有了沙发床的位子。 3.原始户型难点: 原本的房子用两个词就可以概括:混乱和拥挤。这是上海比较典型的条头糕户型,面积小、格局窄、采光差、功能空间缺失、动线单一、墙体不能改,算是设计师们公认的棘手、难改类型。 除了空间不足之外,如何保证三代四口人的隐私空间又互不打扰,也是个很难解决的问题。 4.针对业主需求提供的解决方案: #一家人的改造需求: 1)增加两个卧室、一个客厅、书房、给妈妈一个化妆间;2)厨房、卫生间使用便捷;3)增加收纳功能、隐私性(空间和隔音隐私) 设计师在墙体不能改动的困难下,决定通过四维设计来解决这一系列的改造难题。 ▲重新划分进门空间:卫生间做干湿分离,外置洗手台兼顾厨房清洗功能;2、将原本18㎡空间做分割:老人卧室-孩子卧室-客厅区-收纳区-化妆区; ▲阳台一分为二:-半书桌区域,一半晾晒区域 ▲一侧墙体全部做成储物空间:根据各自空间分别存放物品; ▲重新布线:增加室内的开关、插座,考虑到老人起居安全,增加智能感应。
