【项目地址】:南京 ✦ 星叶 瑜憬湾 【项目面积】:147㎡ 【项目面积】:袁 熙 【施工单位】:南京✦✦飞日强装饰 【设计理念】:生活是创意的来源、创意源于文化、创意来源于自己。

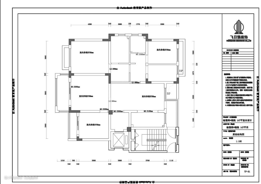
本案是坐落于南京市栖霞区星叶御璟湾小区,户型建筑面积147㎡,每个空间分布比较均匀,功能划分还可以,就是空间比较零碎,需要调整一下,卧室空间面积适中。💖💖💖 🌈🌈 原始结构图

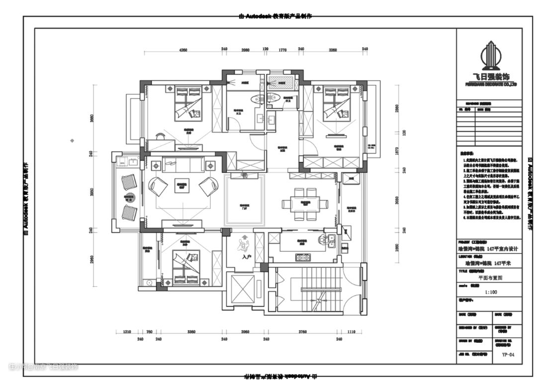
📢 户型局限 ❓ ◆ 户型拐角有点多,空间比较零散,赠送面积多,需要做调整 ◆ 厨房空间不够大,南北阳台需要调整一下 ◆ 卧室面积适中,收纳功能不够全面,南北卧室空间相差比较大 🌈🌈 平面布局图

📝 屋主需求 ◆ 整体风格定位新中式风格,常驻人口夫妻二人,对房间要求不是特别大,保证足够的收纳空间就行。 ◆ 保留两个卫生间,客卫做干湿分离。 ◆ 全屋中央空调,希望设计吊顶时不要太复杂,不喜欢暗藏灯带设计 ◆ 厨房需要考虑嵌入式蒸烤箱,洗碗机。家里冷藏比较多,双开门大冰箱,还有一个大冰柜。 ◆ 次卧需要足够的收纳空间,整个空间做大 🥇 设计改造思路 ◆ 👠 入户门设计玄关柜,整体美观度更高,电梯入户可以设计一整面鞋柜收纳柜。 ◆ 🎸 餐厅位置设计一组餐边柜,厨房尽量做更多的收纳空间,洗碗机,蒸烤箱全部嵌入式设计。冰箱冰柜放北阳台,让厨房空间充分利用起来。 ◆ 👗 主卧室做了一个入户小型衣帽间,保留足够的空间过道。次卧把北边两间小卧室打通做套间,增加一组衣帽柜,中间做了一组电视墙拉近电视机的距离,整体动线比较流畅。
💌 入门玄关:

入户玄关柜整屋定制,中间做镂空设计;门厅与吊顶呼应起来做了简单的造型设计。

💌 客厅设计: 设计师与业主合影

客厅吊顶以简单的双眼皮吊顶,中央空调内机放在客厅沙发上方,做了加长风口处理,整个客厅地面设计了简单的波打线设计,区域划分很明确。

电视柜整屋定制组合柜,侧边做了超高门板,增加收纳空间电视柜台面设计了浅色石材,整体效果更好。

整个家具基色定位胡桃木色系。整体软装以素色为主。简单大气,又不失品味

房主是一对中年夫妻,整体喜欢简单的修饰,电视背景墙是白色乳胶漆墙面,增加了一组收纳柜和电视柜整体定制。大理石台面方便打理。

简单的双眼皮吊顶,弱化了客餐厅中间的一道大梁。
💌 餐厅设计:

餐厅位置设计了餐边柜,中间做挑空设计,收纳一些小家电,吊柜做了玻璃门板,收纳一些酒品珍藏,整体美观不藏污垢

餐厅配的1.6米抽拉式餐桌,四把木椅加一条长凳,方便厨房出入 餐边柜做了挑空设计,上方做了玻璃柜门,收纳一些藏品,整洁又方便清理卫生。

整体地面是灰色大地砖,地面设计了波打线呼应顶面造型,区域划分也非常明确。

厨房做了两扇超宽移门。简单光线视野好。整个餐厅不会太拥挤,整体配色不杂乱,整个空间视觉感非常舒适。


💌 厨房设计: 厨房嵌入式洗碗机,柜体门板选择的是双饰面木色门板,暗藏式拉手。整体简单大气。

U型橱柜靠墙一侧做了高柜增加收纳,嵌入式蒸烤一体式机。提高整个生活品质

💌 主卧设计: 主卧室地面地暖专用多层实木地板,整体色调以胡桃木色,软装以素色为主。简单大气。 顶面简单的回字形吊顶,暗藏式窗帘盒不藏灰,使用也非常方便。



床尾设计了电视柜与书桌功能,书架做了半敞开式设计,也是整个房间活动区域比较多的空间,男主是一位高管,平时也会在此办公。不喜欢太多零碎花哨的修饰。简单舒适最好。

床头柜设计也是非常精巧,一半镂空,方便放一下书籍办公文件,也不会影响台面的功能使用。
💌 次卧设计:

次卧室把两间小卧室打通做了套间,整个空间变大了,收纳空间不少。动线也比较合理。业主非常满意

套间过道设计,动线流畅,也能满足看电视的需求,整个距离是比较合适的。

次卧室小阳台是原来放空调外机位的地方,整屋考虑中央空调设计,所以原机位的地方就可以做为休闲阳台来利用啦,早晨起来可以呼吸新鲜空气啦。


💌 卫生间设计: 次卫干湿分离设计,宽度够宽,洗漱台对面设计了一组收纳柜,增加卫生间的收纳空间

卫浴柜设计台下盆,卫生打理非常方便不残留水迹。

卫生间地面是300*300防滑地砖,淋浴隔断是不锈钢包边联动淋浴隔断,方便淋浴时水迹不外流。

主卫淋浴房内部设计了壁龛,增加洗化用品的收纳,整体性非常好。
问:装修这套房子最大的难点是什么? 如何把零碎的空间规整好,每个空间功能和视觉感要考虑到位。 问:如何有效控制装修预算? 前期做好预算和效果规划,施工时按步骤购买材料。
