兴起于20世纪二三十年代的Artdeco风格 常以严明的轮廓、几何形体等特征出现 是介于新古典和现代主义之间的一种 时尚而摩登的装饰设计风格 在性冷淡风盛行的当下 本案运用到的色彩竟然多达17余种。 接下来,请看设计师如何玩转色彩吧 ▷▷▷

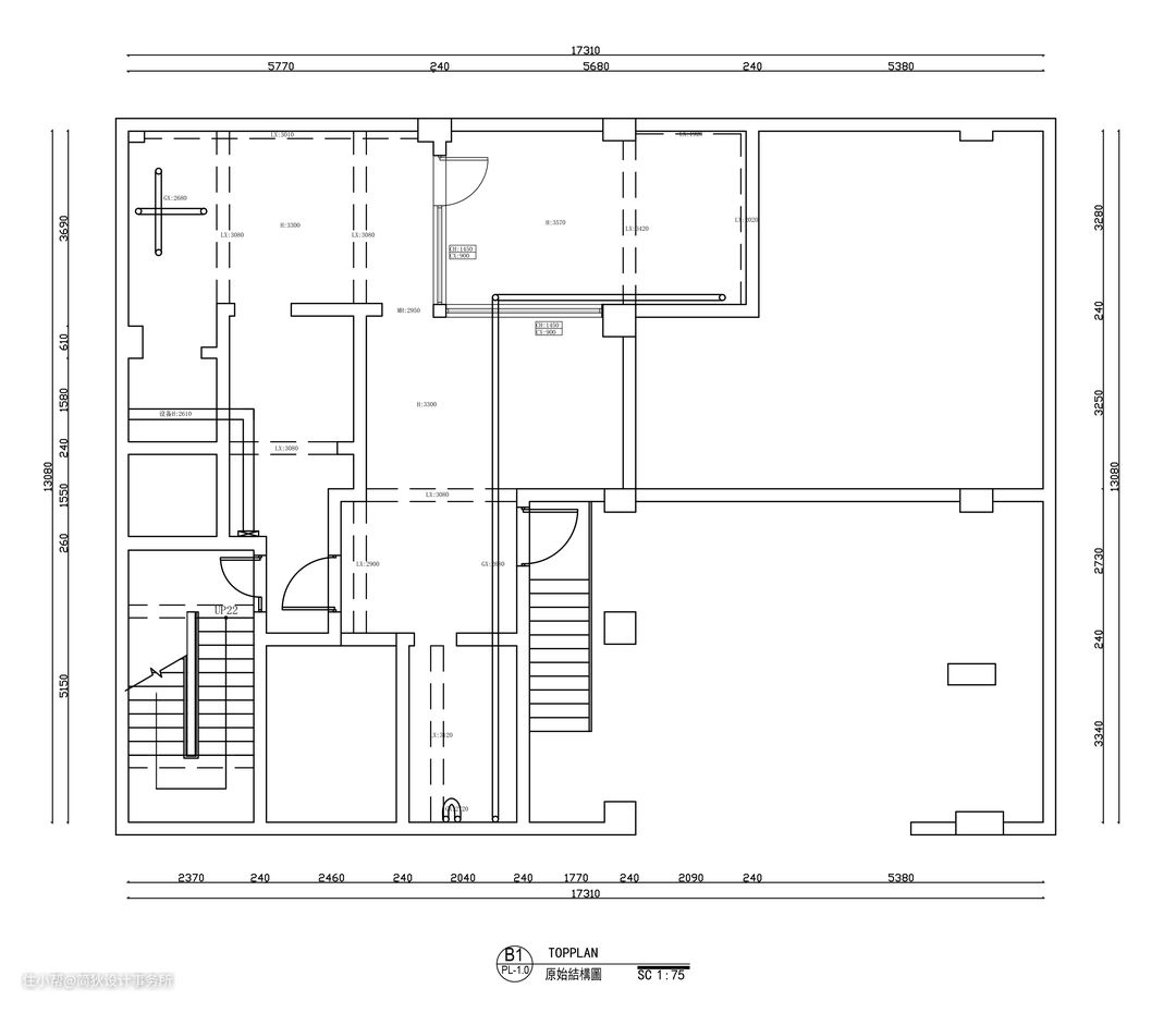
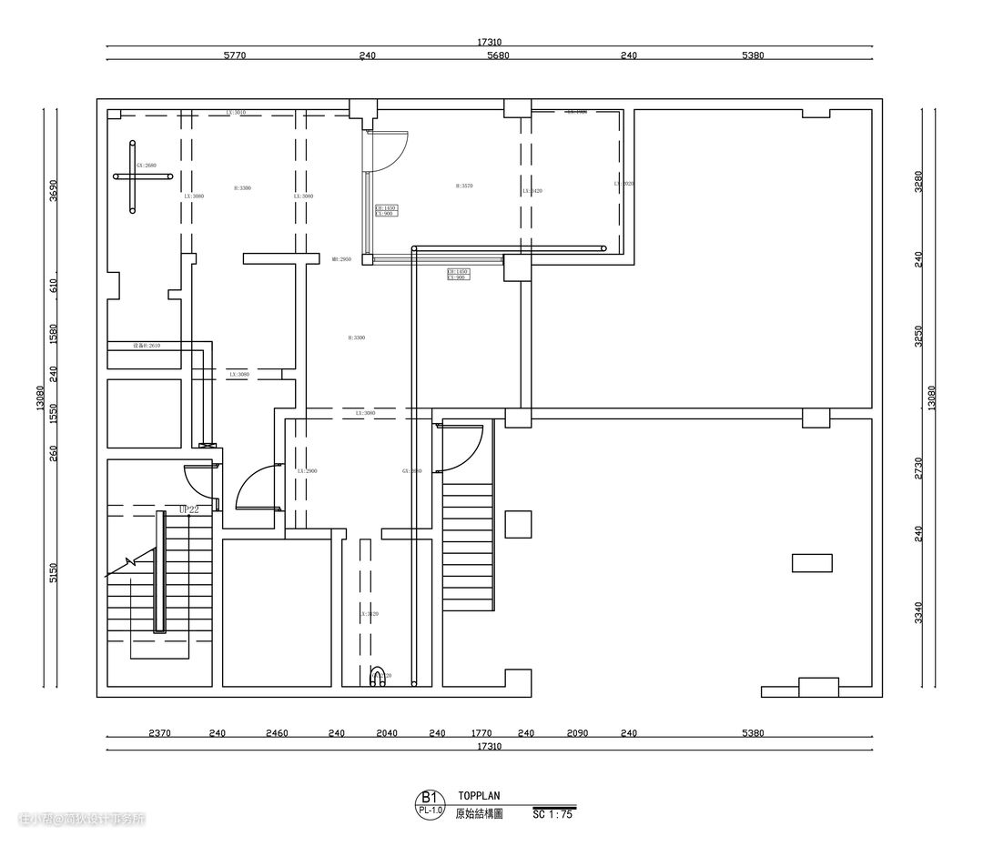
原始结构图|The original figure|B1

平面布置图|Floor plan|B1 地下室空间功能划分非常丰富,囊括了会客、影视、喝茶、办公、收纳等功能,还设计有麻将室、卫生间、洗衣房、临时客房和保姆房。各个功能区的大小比例以及动线关系,都设置得比较合理。

原始结构图|The original figure|F1

平面布置图|Floor plan|F1 一层为客餐厅和中西厨,且保留了一间父母房,设有公共洗手间。客厅6.5米挑空设计,别墅的大空间尺度体现得淋漓尽致。

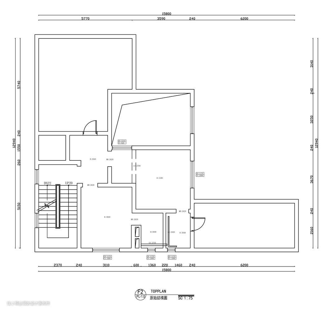
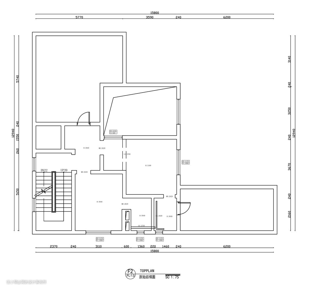
原始结构图|The original figure|F2

平面布置图|Floor plan|F2 我们将二层主卧空间划分为半开放的起居室和卧室两部分,两个空间自由开启与关闭,同时起居室又直接位于挑空的一层客厅之上,与客厅可随时互动;卧室直接连接露台。玻璃栏杆内巧妙地安装了对开的艺术玻璃折叠门,更显精致奢华。

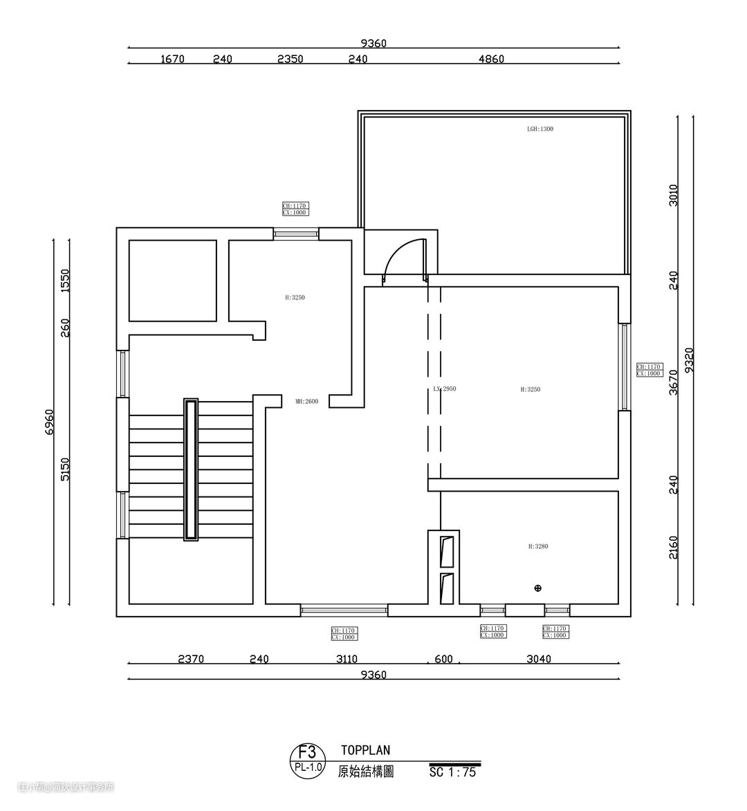
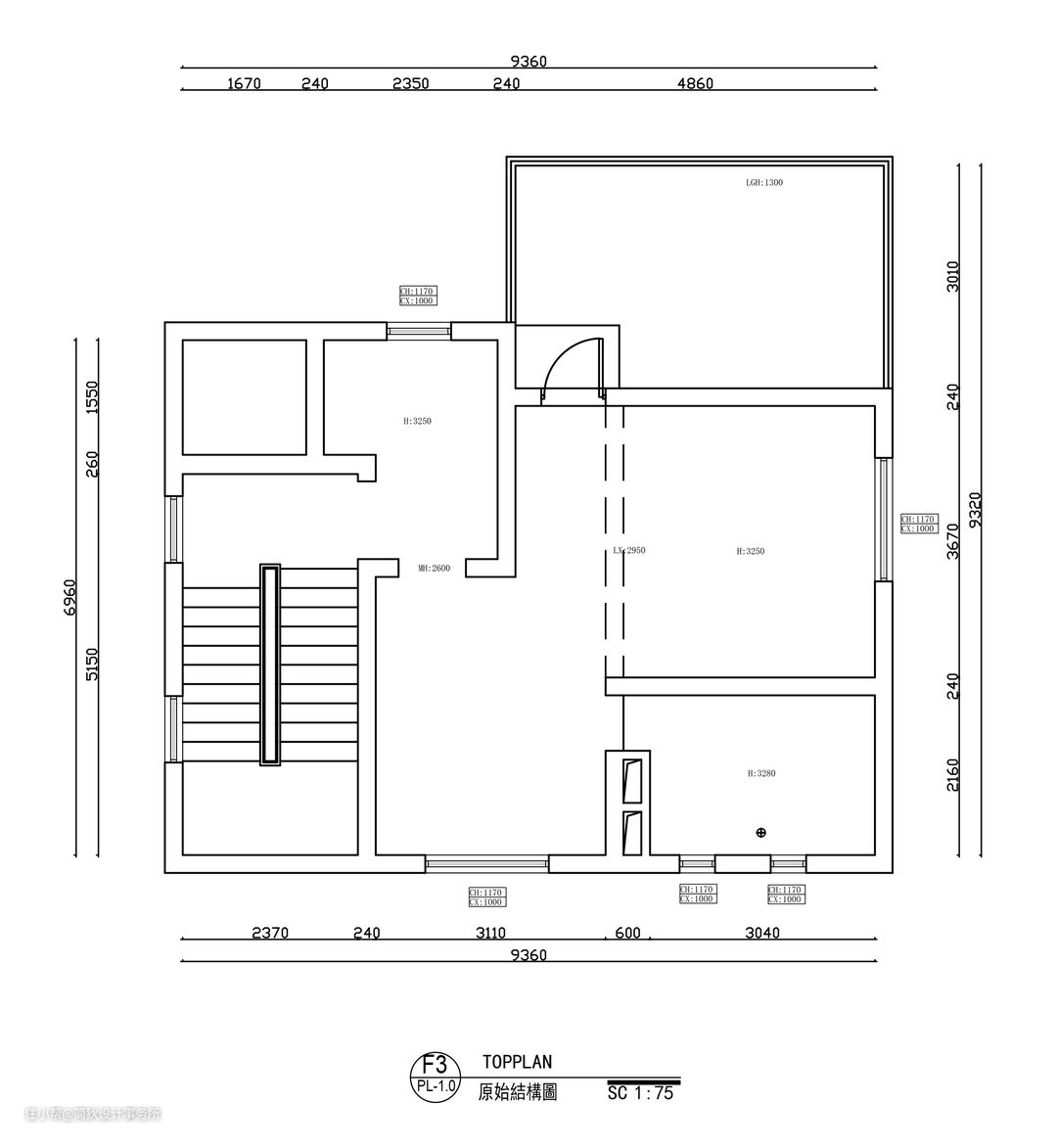
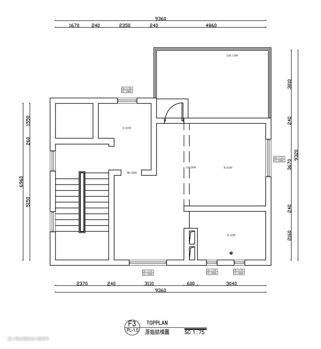
原始结构图|The original figure|F3

平面布置图|Floor plan|F3 三层则为两间女儿房,因为房屋本身为错层设计,楼层越高空间随之减少。为了给孩子预留更多活动空间,我们卧室的设计也比较趋于自由和休闲。



















一楼的空间主要规划有客餐厅和厨房功能,设计师通过悬挑设计手法打造出门厅的形式感和艺术冲击力。透过玄关可见挑空的大客厅,激情的色彩撞击出令人震撼的艺术美宅。

由于门厅柜体大部分为原有结构柱,设计师利用柱体设计成玄关的一部分,兼具了储物功能。局部用维多利亚蓝来贯穿全屋,并延续到地下室空间。

为了使得空间更具纵深感,门厅处理上也选择半遮挡的设计。悬挂的艺术画可以360度旋转,业主可以根据心情喜好更换艺术画,为门厅营造不同的感觉。


本案原始建筑存在窗户太小的硬伤,与室内设计非常不匹配。为了达到风格上的整体性和完美度,在不破坏外立面的情况下,我们选择拱形门套窗套的处理手法,视觉上放大了窗户比例,形成了完整统一的格调。

沙发选用意大利著名进口品牌Cantori,搭配 Gallotti Radice 贵妃椅和橙色单椅,浓烈的色彩调和出一幅时尚家居大片。丝滑细腻的质地散发出与众不同的高级感。

高达6.5米的挑空客厅气势恢宏,挑空部分侧面做了分色设计,让蓝色贯穿两层空间,更具延展性。纯白的基调下局部点缀华丽的色彩,充满Artdeco的摩登感。一面带有中国风的巨幅马赛克山水画璀璨夺目,让空间独具一格。白色大理石壁炉看似简单的造型,实则有多个转折面与一公分的转折收口,加之天然石材与金属结合的工艺十分考究,设计感十足,彰显出业主的高雅格调。



窗户一侧的墙面往室内另加了一层,以安装超高的拱形金属窗套,这样的设计是为了将两层的小窗“变”为整面的拱形落地窗,而且窗帘被完美的收至夹层中,不仅免去了安装窗帘盒,造型上也极为简洁更富层次感。



琉璃般璀璨的壁画,精致的壁炉,温暖的炉火……宛若一幅浓墨重彩的后现代油画,摄人心魄。




宽敞明亮的餐厅被拱形门洞所围合,金色的不锈钢门套让整个餐厅熠熠生辉,多了几份奢华与高贵。

吊顶的处理颇为考究,设计师运用真假梁结合的手法,设计了完整的吊顶造型,且每根梁都做了直角弧形的工艺,消除了直角的尖锐感,让线条变得柔和富有弧线美。


一款花鸟暗纹的仿古餐边柜,搭配金色拉手和充满设计感的摆件,浓郁的意式格调扑面而来。



厨房分为中厨和西厨两部分,全部选用德国柏丽的橱柜。大象灰的台面搭配灰紫色橱柜,高雅而不失浪漫格调。


清晨或午后,在岛台料理早餐或者享用下午茶,望着窗外大自然馈赠的阳光雨露,每天的幸福凝结在此刻。



推开二楼的主卧大门,首先是外间的起居空间:依然是纯白的色调,配以鱼骨拼的木地板,一把舒服的单椅和圆几,打造出一方安静温馨的阅读休憩区。

内间为主卧空间,主卧和起居室之间用双门洞加双移门的形式来区隔,创造出开合自由灵活的居家空间。


具有Artdeco装饰艺术风格的木质框架搭配超白长虹玻璃移门



两间次卧分别是双胞胎小姐妹的闺房。两间卧室均摒弃了传统的床,采用地台加床垫的方式,打造休闲、舒适、自由的休息空间。

卧室依然选用统一的拱门造型,除了与整体空间相呼应外,木质的拱形纯白门套让人联想起童话世界里的公主房,充满温馨又浪漫的复古气息。另外和墙面同色,也更具整体感。

小女儿的房间以牛油果绿为主色调,清新自然充满童趣。




大女儿闺房以白色为主调,点缀脏粉色窗帘单椅和床品

背景墙选用一幅复古梦幻壁纸,打造出与众不同的浪漫复古氛围。




庞贝红的马赛克墙砖颇为抢眼,黑白红的搭配酷劲十足。

虽然安装了家用电梯,但楼梯作为别墅上下空间的纽带和设计重点,依然占据了重要地位。

设计上我们力求简洁利落,材质上选用和墙面统一的纯白烤漆钢板扶手搭配黑灰色大理石,强调了黑白对比的设计效果。


每层阶梯下都安装有感应灯带,暖黄的灯光炽烈地跃动着,烘托出楼梯的质感。


地下室不仅是整套别墅的主入户通道,也是汇集娱乐、休闲等各种功能的重要空间。本案地下室集会客厅、茶室、棋牌室、书房/客房、影音室、衣帽间、卫生间、洗衣房、保姆间、杂物间等为一体,提供了丰富而便捷的各种分区功能。为了最大限度引入自然光,我们对原采光井进行了扩大处理,得到一个半户外的天井,大大提升了整个地下空间的采光。


轻质玻璃移门被大量运用,使空间更为通透明亮。


设计师特意为经常加夜班的男主人设计了一间独立书房,并贴心的在书房里规划了睡眠区,避免晚归打扰女主人休息。




带有流水纹路的浅灰色地砖充满现代格调,蓝与白的经典搭配令人耳目一新。经典的 Gallotti Radice 弧形沙发,营造出舒适而围合的会客氛围。品茶区位于半露天的天井内,毗邻宽敞的会客厅,中间有玻璃移门分隔,减少能耗损失。



极赋感染力的战马壁画,是由工人师傅一块块拼贴而成,是整个地下室空间的视觉中心。


下沉式家庭影院位于地下室采光偏暗的区域,高达5.5米的层高在家庭影院里非常少见。17.2杜比全景声+Auro3D兼容的私人影院配置已经达到发烧级。视频设备选用SONY顶级VPL系列4K激光投影,声频设备则选用美国PolkAudio全嵌入式音箱,完全媲美线下专业影院的观影影效果。



天井被设计成下沉式庭院。一株幸福树尽情伸展绿意,阳光透过书房的落地窗洒进来,带来温暖惬意的自然气息。


通过采光井的改造,使得居者可以尽享室内外互通的墅居生活。天井庭院极大提升了居住体验及房屋本身的价值。



尽显仪式感的地下室入户门厅,依然延续蓝白相间的配色。纯白的墙面和蓝色门套,比例搭配得恰到好处。地砖做了条纹拼花的处理,视觉上拉伸了门厅的进深。


Q&A Q: 装修过程花了多长时间? A: 18个月 Q: 说说是什么给了你灵感,打造出现在这个作品的? A: 在极简和性冷淡风大行其道的当下,设计师反其道而行,希望运用装饰主义及多种色彩来打造一套不一样的家居空间,为业主带来耳目一新的愉悦感。 Q: 你对这套作品最满意的地方在哪里,为什么? A: 对色彩的把控,各种色彩的反差和比例运用得比较满意。 Q: 对平面布局做了哪些优化改动,为什么? A: 经过优化后,一层的客餐厅更为通透宽敞;保留了一间长辈房的同时还保留了客厅的挑空区;地下室的功能布局也更为合理; Q: 在整个装修设计期间遇到最大的挑战是什么? A: 本案色彩非常丰富,且很多是反差较大的色彩,对色彩搭配及比例的拿捏非常考验设计师的审美和眼界。 Q: 回头再看这套房子,设计当中有什么遗憾的地方吗? A: 如果工期允许,一些细节还可以更完美。 Q: 为了满足客户的个性化需求,你在设计过程中做了哪些事情? A: 本案业主对设计师非常信任,几乎100%配合设计师的落地,因此案例所体现的每个部分也是设计师个性的表达。
