户型解析
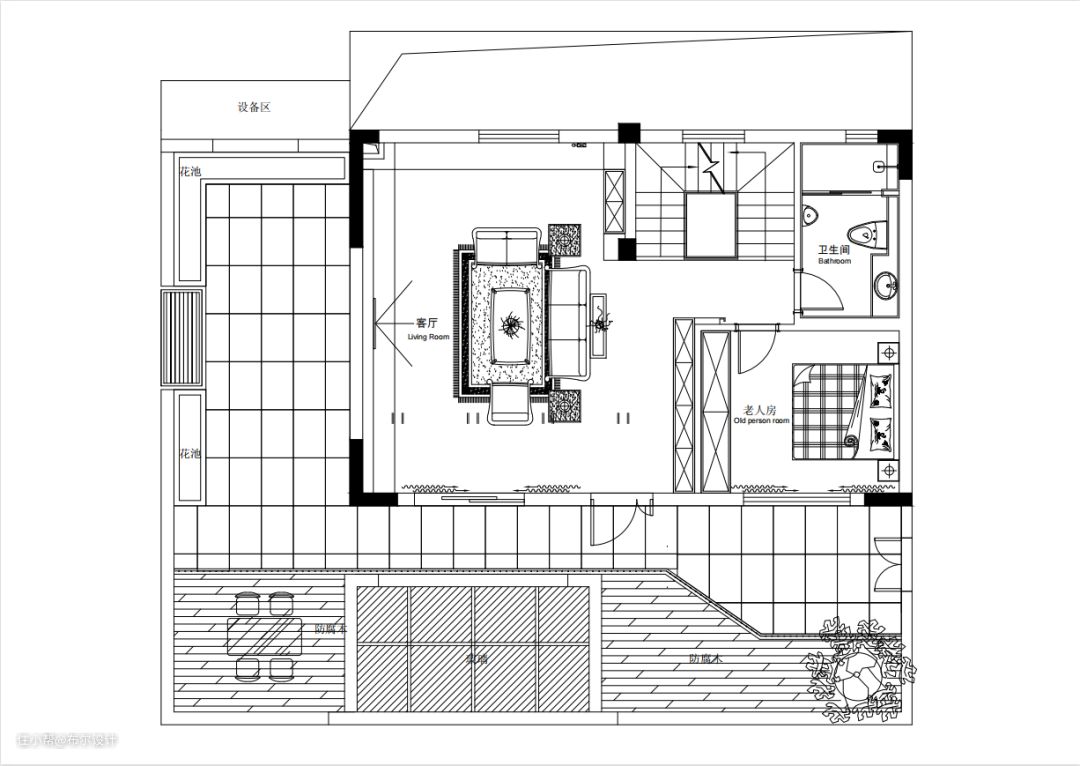
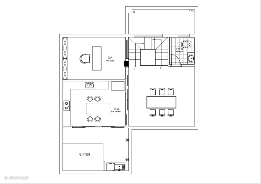
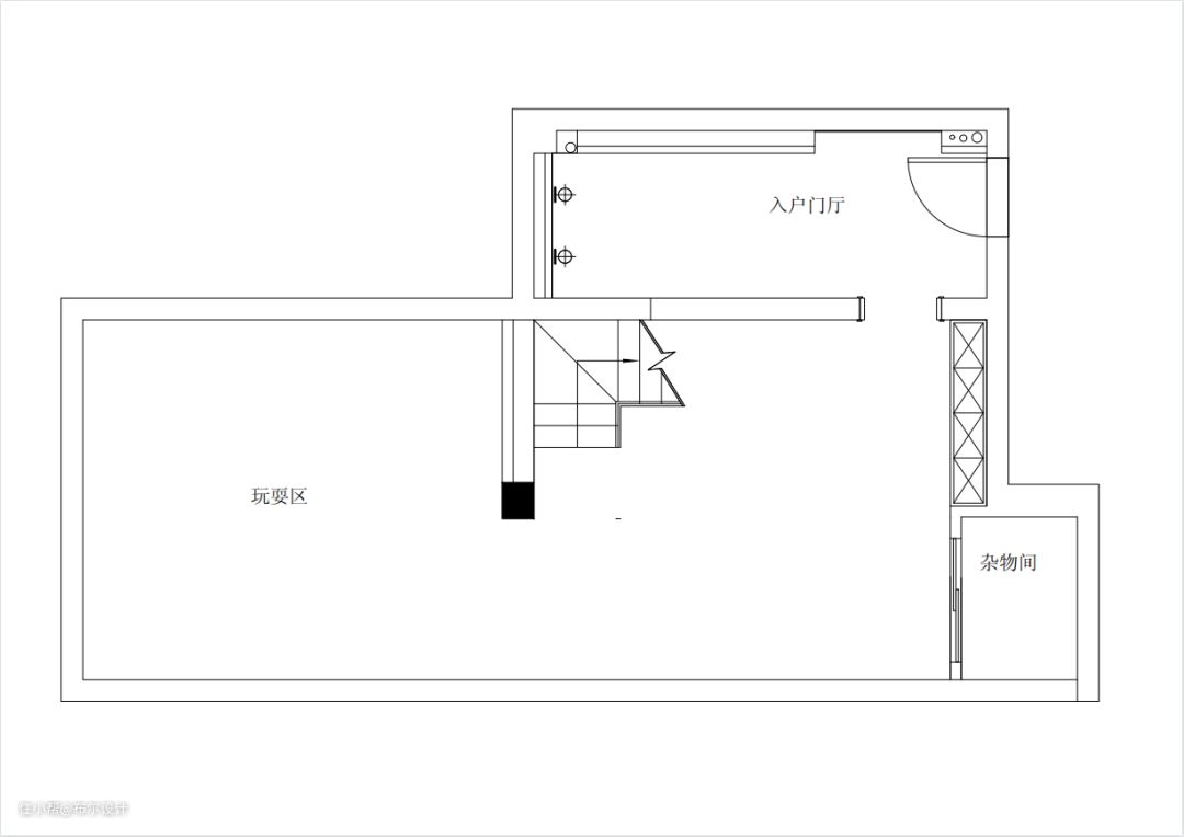
设计改动: 1、一楼原始厨房拆除改到负一楼 扩大客厅空间。 2、二楼三个卧室的结构根据实际需求改为两个套房。 3、负一楼变成厨房空间和下层院馆空间。 4、负二楼变成亲子活动空间。

二楼

一楼

负一楼

负二楼
玄关
一壶清茶,一段光阴。入户即是“家”!

客厅
整体采用原木风,不需要刻意的去选择风格,随心所欲又理所当然的看起来那么和谐,偶尔适当的留白让这一切恰到好处;墨绿色的沙发加上绿植让整个空间产生呼应,让整个空间不那么沉闷。




餐厅
透明的落地窗能够很好的隔绝厨房的气味,原木的吊顶加上灯光让整个餐厅充满了温暖;没有常规的全部采用靠背的椅子,而使用了两个长凳,增添了别样的乐趣。



厨房
开放式的厨房,纯白色的打造让整个空间显得简约又宽阔;一家人可以一起在这里准备美食,既增加了动手能力,又能够和家人增加多交流的时间。



主卧
床没有使用原木,而是采用和柜子门把手一样的颜色,让整个空间看起来更加协调;两个带有一点复古的落地灯,给整体增添了色彩。



儿童房
儿童房采用简洁明了的设计,把常用的书桌放在床边。墙上的画让整个空间充满了童趣;阳关透过窗帘传来,整个空间变得明媚。



书房
同原木色的风格让整个空间统一,整个书房没有采用常规的大书桌,而是使用了相对较小的书桌,方便小朋友学习画画。




阳台
整个休闲区都充满了植物,偶尔和家人一起在这里,我看你笑,你看我闹,让整个空间充满了乐趣。



卫生间
把车水马龙的世界隔绝在外面。

其他
注重每一处“小景”,留下来享受一段“慢”生活。











干货清单
想要把车水马龙的世界隔绝在外,让家里充满了休闲的气息。 本案业主觉得生活和工作是分开的,希望能够在这个城市的喧嚣里能够拥有自己清净的空间,让家人都生活在自然里。
