这是一套总面积127㎡的二手万科精装房改造案例,这套房子之前一直处于闲置状态,装标也比较老旧。屋主Z先生在外地工作,因为时间和精力都比较有限,所以希望可以找到提供全面服务的装修公司,在多方对比之后通过网络平台找到我们,经过沟通,发现我们的服务模式与他“省时省心省力”的需求很契合,当场便决定交由我们来完成这套精装房的改造。 考虑到预算问题,我们将此次改造的重点放在了软装设计上,硬装部分基本不做改动,只是在原有基础之上做了修补。结合屋主的日常生活习惯、需求喜好等,我们以简约的黑白灰作为主色调,以局部的墨绿色、蓝色为点缀,搭配木质元素,为屋主打造出一个舒适大方的简约风新家。

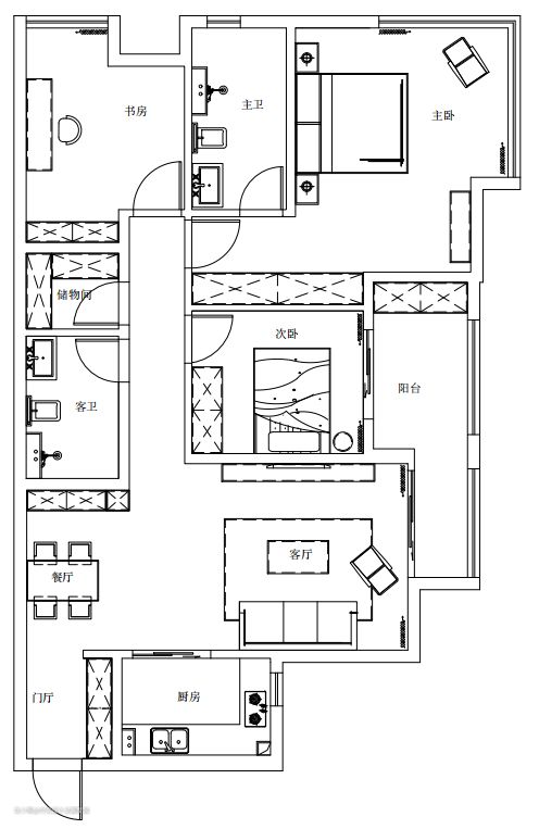
户型改造亮点: 1.全屋墙面根据整体风格重新贴灰色壁纸; 2.拆掉原电视背景墙,利用双饰面板和壁布做造型; 3.餐边柜位置新加吊顶,两侧做延伸墙板,让整体墙面看起来更加和谐; 4.主卧入户端景墙处做边柜用于储物,搭配挂画做装饰;

▲ 改造前后对比图

综合考虑屋主的喜好与需求,我们以简约的黑白灰作为基调,墙面选用灰色壁纸做基础装饰,搭配同色调的地毯、沙发等软装,营造出一种素雅的氛围感。

电视背景墙处,我们选择以木饰面上墙,两侧做对称墙板,中间位置贴仿艺术涂料壁布,搭配两侧的壁灯增加装饰感,下方位置选用大理石纹板材定制个性错层设计电视柜,增加收纳空间,满足屋主的储物需求。



▲客厅软装方案,所有家具配饰均可落地


在软装搭配上,我们以“简约”为核心,灰色麻布双扶手三位沙发、大理石台面茶几等软装家具与整体风格相互呼应。

▲餐厅软装方案,所有家具配饰均可落地

为了满足屋主收藏红酒的喜好,我们定制了餐边柜,柜体选用胡桃木材质,纹理细腻,凸显高级质感。过道两侧做延伸墙板,让整体墙面看起来更加和谐统一。

餐厅延续整屋简约的格调,选取黑色岩板台面餐桌搭配马鞍皮餐椅,舒适大气之感油然而生。

▲主卧软装方案,所有家具配饰均可落地

考虑到预算问题,主卧空间没有做复杂的造型,背景墙选用深灰色墙咔做简单设计,搭配水泥材质小吊灯提升空间质感。


主卧L型的窗户,视野广阔,采光也很好,搭配低调沉稳的墨绿色床品、黑胡桃木色床头柜,偏深色调的软装不仅没有让室内空间显得沉闷枯燥,反而增加了整体空间的静谧感。

入户端景墙位置,新增了绿色边柜用于储物,搭配简约的装饰画,提升了主卧空间的实用性和美观度。

次卧主要是留给父母偶尔来住,在硬装方面并没有做改动,背景墙面粉刷蓝色乳胶漆,米白色床品搭配造型别致的青古铜色吊线灯,简约且不失温馨感。



书房空间主要是用于屋主的日常办公,考虑到书房空间光线不是很好,我们定制了浅木色书架及书桌,搭配一些小物件做装饰,增加了岁月静好的生活氛围感。


从屋主的喜好与需求出发,在原精装基础上做调整优化,品质、颜值、实用性并重,打造独一无二的品质好家,这一直以来都是我们为大家提供的精装房改造配套服务,我们也始终坚持初心,力求为更多精装房屋主提供满意的服务,打造理想的家。
Q:装修过程花了多长时间? A:90天。 Q:说说是什么给了你灵感,打造出现在这个作品的? A:这是一套总面积127㎡的二手万科精装房改造案例,这套房子之前一直处于闲置状态,装标也比较老旧。屋主Z先生在外地工作,因为时间和精力都比较有限,所以希望可以找到提供全面服务的装修公司,在多方对比之后通过网络平台找到我们,经过沟通,发现我们的服务模式与他“省时省心省力”的需求很契合,当场便决定交由我们来完成这套精装房的改造。 考虑到预算问题,我们将此次改造的重点放在了软装设计上,硬装部分基本不做改动,只是在原有基础之上做了修补。结合屋主的日常生活习惯、需求喜好等,我们以简约的黑白灰作为主色调,以局部的墨绿色、蓝色为点缀,搭配木质元素,为屋主打造出一个舒适大方的简约风新家。 Q:对平面布局做了哪些优化改动,为什么? A:1.全屋墙面根据整体风格重新贴灰色壁纸; 2.拆掉原电视背景墙,利用双饰面板和壁布做造型; 3.餐边柜位置新加吊顶,两侧做延伸墙板,让整体墙面看起来更加和谐; 4.主卧入户端景墙处做边柜用于储物,搭配挂画做装饰;
