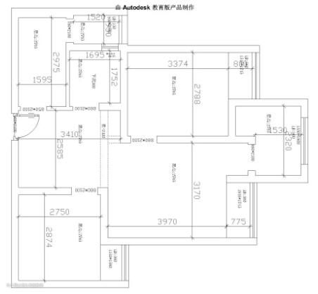
户型分析: 1、入户就是餐厅,没有玄关,进出以及储物都不方便,采光不佳。 2、次卧面积小,放置床、书桌、衣柜比较局促。 3、客厅电视背景墙太短。 户型优化: 1、入户靠墙设计整墙的收纳柜,增加储物功能。 2、次卧定制榻榻米和衣柜,高效利用空间。 3、电视背景墙一侧的卧室门做隐形门处理,增加电视背景墙的视觉感。

业主邓女士是个内心极其追逐时尚的女性,既希望有家的温馨舒适,又希望有时尚主题的表现。在整体基础风格定调到美式的时候,设计师也不断的尝试把丰富的色彩融入其中,以追求低调个性中的张扬。麻雀虽小,五脏俱全”,整体空间虽小,但功能俱全,大面的亮色使空间有较强的延伸感,恰到好处的大版面分割给予各功能区的融合与连贯性,让小宅也有大惊喜。

入户既是餐厅,为了增加储物空间,方便进出,入户右边靠墙做满整墙的柜子,中间留空,既是鞋柜也是收纳柜。

客厅采用吊顶加筒灯加灯带三种光源设计,美式吊灯素雅大气,筒灯设计让空间光源分布更加均匀,灯带选择4000K的色温,营造温馨的气氛。

客厅地面使用的是仿古地砖,淡黄色的质感,即温馨又能体现怀旧的情怀。美式风格的装修中经常会用到仿古的元素。

电视背景墙是用蓝色乳胶漆、白色乳胶漆两种,搭配石膏线造型来装饰。考虑到小户型的收纳问题,留出足够的动线后,尽量选择了一款储物空间够多的电视柜。

从客厅看向餐厅,通铺的淡黄色地砖既温馨又自由舒适的感觉。斗柜的设计尽可能的增加空间的收纳能力。家居有的是在网上买的,有的是在实体店买的,购买的时候保持了色系的统一,以免破坏装修的整体效果。

从餐厅看向客厅,阳台原本是一小块的凸出去的区域,设计成飘窗,装饰上浪漫的窗幔和布艺,客厅里一道浪漫的风景线。

沙发旁精致的小装饰。

沙发背景墙是蓝色的乳胶漆背景墙,白色的石膏线,蓝白经典配色清新舒适。

餐厅区域比较狭窄,正好放下四人餐桌,满足一家人的生活所需。

餐厅也是吊灯加灯带家筒灯的光源设计改善餐厅采光不足。

白色实木餐桌,看起来普通,在使用过程中才能体会到它的魅力,质感非常好,重量也不轻,值得注意的是,吃饭的时候是不是会给下面的住户产生噪音。

厨房面积小,L型操作台尽可能多的操作空间。白色橱柜加石英石台面清爽干净。仿古地砖墙砖,温馨舒适的空间设计。

主卧的设计和整体空间保持一致,石膏线加乳胶漆背景墙,唯美浪漫的飘窗,非常的小清新。

美式风格的家具都是经典耐看的,工艺精致的床架和床头柜,经典的美式风格。

飘窗上用布艺装饰,柔软舒适,白色窗纱蓝色布艺,清爽舒适。

次卧做了书房,同时设计了榻榻米,可以作为临时的客房来使用。延续了白色柜子的风格,与整体比较统一。

卫生间外面是阳台,把墙拆了做成推拉门。
设计永远是为生活服务的,生活的细节不仅是家居的实用舒适性,还包括颜色的调配,每天生活的空间,自己喜欢的颜色,必然会带来不一样的心情。颜色的选择也是设计重要的一环,筑家的路程,必然色彩纷呈。
