这是屋主位于南京中山陵附近的一套改善住房,家里一直在商量需要换一个大房子,换在哪、换什么样,前后看了有一年时间,最终确定了这套带地下室的住房,完全符合屋主对新居的各种设想。 屋主是一对中年夫妇,钟意有文化底蕴且不过多约束的美式风格,希望未来的家自然随意,优雅温馨,有迷人的休闲气质。希望家人精致美好的生活态度能一直陪伴左右。与莫匠设计师沟通一次后就有了意向,深入沟通交流后,达成共识。本案整体设计以软装搭配为主,勾勒出精致的质感。一个雅致、纯美、精致的美式家就这样展现出来。

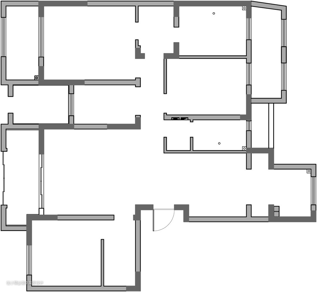
原始结构 1,进户空间没有得到很好的利用,空间浪费较多。 2,屋主对楼梯位置不满意,要改。 3,厨房相对较小,屋主已采购的洗碗机、蒸箱烤箱、冰箱、咖啡机等各种锅需要地方安置。 4,书房太小,满足不了屋主的需求。 5,次卧客卧空间都较小,没有衣柜的位置 6,收纳空间较少, 7,地下室的设计。

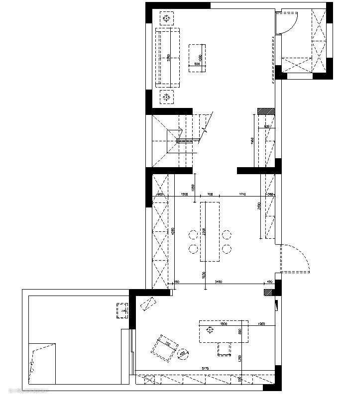
户型优化 1,原始户型浪费了进门处宽敞的空间。设计师改变了进门布局,用玄关柜包裹的方式新增一个小门厅,增加区域之间的独立感。门厅的改变,让客厅与餐厅也分隔开来,整体动线更好。 2,对原楼梯进行拆除,打通原客卧和楼梯中间墙体,改造后的空间作卧室用,满足屋主放书桌和衣柜的需求。 3,打通餐厨之间的墙体,扩大餐厨面积,我们将厨房空间延伸至餐厅做了西厨柜,冰箱外放、屋主的各种电器都能妥善安置。餐厨之间无法拆除的承重窄墙,设计西厨柜时顺势包裹了进去。厨房餐厅客厅动线合理,连成一体却又相对独立。 4,书房空间较小,我们对此处空间进行了扩建延伸设计,改后的空间敲定当楼梯位置来用。 5,拆除主卧窗户改成移门设计,对主卧门洞位置进行调整,将主卧设计成套房,满足卧室+衣帽柜+独立卫生间的功能需求。双面柜设计的精细巧妙,主次卧合用双面柜,为次卧增加了储物空间。 6,拆除客厅阳台部分墙体,设计单独的洗衣房。用来安置洗衣机洗衣柜等生活设备。书房空间较小,我们对此处空间进行了扩建延伸设计,改后的空间敲定当楼梯位置来用。 7,拆除次卧窗户,改成移门直通休闲大阳台。 8,地下室拆除多余墙体,实现独立大书房+衣帽间+休闲娱乐区的功能需求。

地下室结构

地下室拆除多余墙体,实现独立大书房+衣帽间+休闲娱乐区的功能需求。

阳光透过明亮的玻璃门,穿过有精致立柱的圆拱门廊,融入了大气雅致的客厅,纯净的白色背景下,辅以洛可可风的花纹壁纸点缀,柔和了深色古典实木家具的沉稳感,更添一分活泼的意境。

客厅的色调和搭配优雅别致,沙发款式、茶几边几摆件有些许美式古典的影子,电视背景墙简单大气,与纯白造型吊顶浑然一体。纯白色调中点缀花纹壁纸不会显得单调,起到了很好的装饰作用。休闲榻能够让人很好的放松下来, 午后,手捧闲书或小憩片刻,给自己的心灵一个休息角落。

新古典主义的花鸟实木柜、凹凸层次的背景墙、浮雕立柱、处处可见审美的用心。

开阔客厅营造出温馨恬静的舒适环境,给人带来清爽明快的视觉感受。沙发背景墙做了创意的审美元素,搭配了暖暖的灯光和深色复古家具,使空间饱满而有格调。


沙发背景墙简洁的腰线分割了墙面,丰富了层次,我们没有选用常见的护墙板元素,而是颇具创意性地采用了壁纸+彩色乳胶漆的组合搭配,让人眼前一亮,让全屋的空间都呈现一种慧心的别致。

装饰的意义便在于丰富空间层次感,美式经典的线条运用,体现在各个细节中,石膏造型吊顶、门廊等装饰达到了很好的效果。也因为精心挑选的软装饰品的出场,精致的生活态度便完全展露出来。

原始户型浪费了进门处宽敞的空间。设计师改变了进门布局,用玄关柜包裹的方式新增一个小门厅,增加区域之间的独立感。门厅的改变,让客厅与餐厅也分隔开来,整体动线更好。门厅地面是仿古砖的拼花,既起到了美观装饰的作用也划分了空间。玄关兼顾美感与功能的造型表达,完成了客厅和餐厅的过渡。并承担了一定的储物功能。华贵的太阳镜成为玄关的标志性美物,为整个门厅渲染一种神秘、古典的氛围。

为了满足屋主研究美食的爱好,我们打通餐厨之间的墙体,扩大餐厨面积,将厨房空间延伸至餐厅做了西厨柜,冰箱外放、屋主的各种电器都能妥善安置。这里有茶水吧台、有烘焙天地,既可以在此日常就餐,也可以随手泡一杯咖啡,在此闲谈阅读。西厨柜的延伸设计拓展了厨房操作空间的同时,也与整个色调及风格相呼应,完美融合于整块区域中。条形实木餐桌搭配曲线柔美的餐椅,稳重中不失雅致,精致的吊灯丰富了餐厅的层次感,更有一种生活闲适感。厨房餐厅客厅动线合理,连成一体却又相对独立。

餐厅墙面延续了客厅壁纸+彩色乳胶漆的组合搭配,用简洁的腰线进行分割。美式实木餐桌椅细节处理十分考究,雕花线条处凸显着家居生活的品质感。餐桌旁别具一格的陈列架,实用而美观。餐厅吊灯意境十足,用餐时间都变得美妙起来。

采用对称方式挂画,有一种安然而静稳的感觉。

中厨延用美式风格,橱柜为U型设计,地面选用富有质感的仿古砖,墙面选用美式小方砖进行拼贴,非常活力。米灰实木橱柜与暖色瓷砖上下过度,空间尽显开阔敞亮,造型柜门更是被精心设计的最佳证明。餐厨之间无法拆除的部分承重窄墙,设计西厨柜时顺势包裹了进去。实木材质的运用让空间轻盈而有质感。

设计别致的端景桌散发出优雅的气质,使整个空间又多了一道风景线。

原书房空间较小,我们对此处空间进行了扩建延伸设计,改后的空间敲定当楼梯位置来用。简洁腰线+壁纸+乳胶漆组合产生柔和色差,给小小的空间带来耐人寻味的明净。纯白造型石膏吊顶在棕色扶手的衬托下更能增添空间的明亮轻盈, 楼梯的一角抓取特别的风情用来装饰,摆上描金浮雕巴洛克风格玄关柜,带来一丝丝低调的奢华感。

主卧在风格上以偏爱的原色入手,温润的暖色质感更靠近人体易于放松的表面环境。套房是屋主夫妇居住,有独立的衣帽柜和卫生间,床头背景采用凹坑加纽扣复古软包造型,大气华丽,见之惊艳。高靠背的床头气势和舒适度都更胜一筹。

卫生间的仿古砖,美式经典搭配色。浴室柜延续了主卧空间基调。深色镜柜与台面的厚重感被一抹亮色中和,黄铜色五金配件提高了整体空间的颜值。

简洁大气的吊顶下挂将休闲轻松引入次卧,墙面贴近自然的碎花壁纸,宁静而舒适。

男孩的卧室,以蓝白色系为主调,营造清爽与活力的感觉,带抽屉楼梯的儿童上下床可以同时满足睡觉、娱乐、收纳等功能。通过对空间的合理规划,临窗安置配套书桌椅,让孩子在成长中所需的娱乐、学习硬件一应俱全。


书房的整体布局简洁利落,极具美式情怀的书桌书柜,配上纯手工地毯,便是理想中舒适悠闲的办公/阅读空间。L字型飘窗开阔明亮,摆上蒲团和小几就可以成为休闲一角。
1,装修花了多长时间? 八个月 2,说说是什么给了你灵感,打造出现在这套作品的? 这套新房是三代同堂居住的,也算是家里老人的养老房,屋主夫妇也已到中年,美好的期待这个家能自然随意,优雅温馨,有迷人的休闲气质。家人精致美好的生活态度能一直陪伴左右。 3,你对这套作品满意在哪里,为什么? 我比较满意整体的软装和配色效果。洛可可风的花纹壁纸、深色古典实木家具、暖暖的灯光、创意性的沙发背景墙、美式门廊及经典线条运用、凹坑复古床头背景、都体现在细节中。 新古典主义的花鸟实木柜、凹凸层次的背景墙、浮雕立柱、描金浮雕巴洛克风格玄关柜、处处可见审美的用心。精心挑选的软装饰品的出场,精致的生活态度便完全展露出来。 3,你对平面布局有哪些优化,为什么? 1,原始户型浪费了进门处宽敞的空间。设计师改变了进门布局,用玄关柜包裹的方式新增一个小门厅,增加区域之间的独立感。门厅的改变,让客厅与餐厅也分隔开来,整体动线更好。 2,对原楼梯进行拆除,打通原客卧和楼梯中间墙体,改造后的空间作卧室用,满足屋主放书桌和衣柜的需求。 3,打通餐厨之间的墙体,扩大餐厨面积,我们将厨房空间延伸至餐厅做了西厨柜,冰箱外放、屋主的各种电器都能妥善安置。餐厨之间无法拆除的承重窄墙,设计西厨柜时顺势包裹了进去。厨房餐厅客厅动线合理,连成一体却又相对独立。 4,书房空间较小,我们对此处空间进行了扩建延伸设计,改后的空间敲定当楼梯位置来用。 5,拆除主卧窗户改成移门设计,对主卧门洞位置进行调整,将主卧设计成套房,满足卧室+衣帽柜+独立卫生间的功能需求。双面柜设计的精细巧妙,主次卧合用双面柜,为次卧增加了储物空间。 6,拆除客厅阳台部分墙体,设计单独的洗衣房。用来安置洗衣机洗衣柜等生活设备。书房空间较小,我们对此处空间进行了扩建延伸设计,改后的空间敲定当楼梯位置来用。 7,拆除次卧窗户,改成移门直通休闲大阳台。 8,地下室拆除多余墙体,实现独立大书房+衣帽间+休闲娱乐区的功能需求。
