设计,旨在创造一个承载当代都市生活的自由空间。设计师以简炼、艺术的手法塑造空间美感,令空间内蕴自由地穿梭于人文、建筑之间,构筑一个蕴含自由精神及人文诗意的都会栖居地。 本案是一个三代同堂的案例,屋主想要自己的家有更多的艺术氛围,并且需要有一些展示作品的地方。除此之外,业主希望整体空间设计简约高级,不需要太过复杂的色调。另外,业主想要拥有更多的互动空间,由于平常工作比较忙,也希望能有更多的时间来陪伴家人。

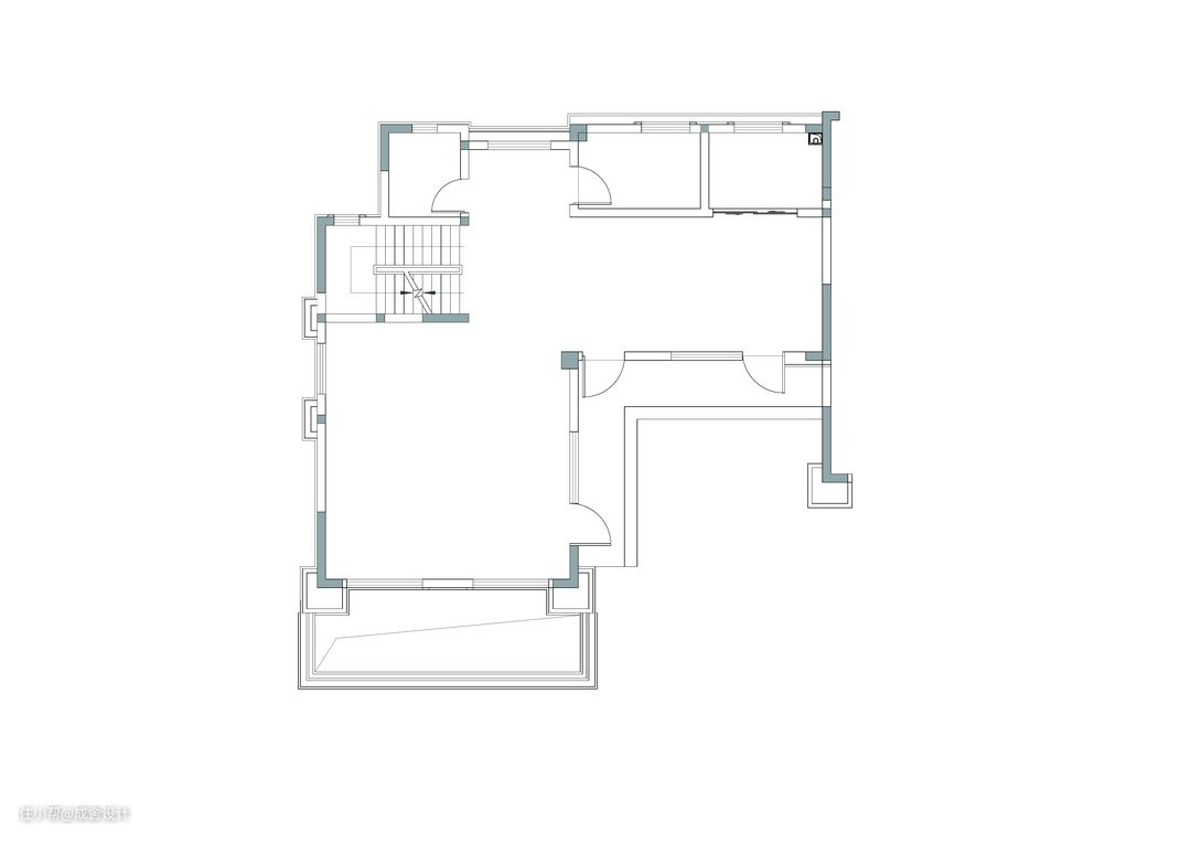
-1F原始平面图: • 入户门厅空间不足,没有办法容纳鞋柜,收纳功能缺失。 • 空间不够通透,采光不太好。 • 需要有收纳衣物以及杂物的房间。

-1F修改后平面图: • 拆除了入户对门的房间,只保留了电梯的空间,其余都留作玄关门厅,为鞋柜也留下了足够的空间,同时也避免了“门对门”的忌讳。 • 拆除了楼梯多余的墙体,让整个空间更加通透,也更符合动线组织规律。 • 增加墙体,单独分隔出储藏旧衣物与杂物的房间。 • 增加了一排宽39.5cm的柜子,足以容纳大多数的收藏物。

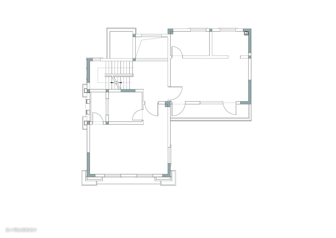
1F原始平面图: • 厨房空间比较小,用具又比较多,比较拥挤。 ▪ 业主想要在餐厅空间加入吧台和餐桌,但空间会显得比较狭窄。 ▪ 入口处的空间需要改造成电梯间。

1F修改后平面图: ▪ 牺牲了卫生间的部分空间,纳入了厨房,拓展了厨房的操作空间。 ▪ 巧借外部庭院空间,加大了餐厅的空间,消除了狭窄的感觉。 ▪ 餐厅拆除了部分墙体,采用了大面积的落地窗,增加了空间的采光,让整个空间更加通透敞亮。

2F原始平面图: ▪ 除了卧室的空间,其余空间都偏小,而业主想要一个书房,能够自己学习的空间。 ▪ 二楼只有一个卫生间,但却和卧室是处于同一空间,需要与卧室分离开来。 ▪ 卫生间空间太小,业主需要有单独泡澡的空间。

2F调整后平面图: ▪ 去除了阳台,调整了整体布局。阳台空间并入书房和衣帽间,让空间更加舒适。 ▪ 调整了卧室的入口位置,将卫生间独立出来。 ▪ 拆除了主卧的衣帽间,让卫生间有足够的空间可以放置浴缸。 ▪ 每个卧室都备有充足的衣柜,保证了日常的服装收纳。 ▪ 主卧采用大面积的落地窗,可以充分吸取自然采光,更有益于身心健康。

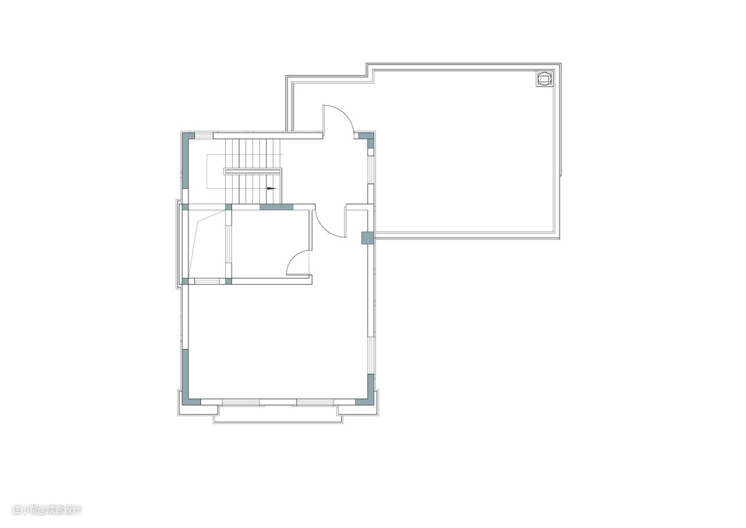
3F原始平面图: ▪ 没有电梯的通道,需要增设一个。 ▪ 过道空间长度不足,显得空间比较狭小。 ▪ 卫生间空间比较小。

3F调整后平面图: ▪ 增加了电梯的通道,满足了空间的需要。 ▪ 改变了休闲阳台的入口位置,扩大了过道的空间,也能容纳更多的展示物品。 ▪ 拆除了卧室多余的空间,并入卫生间。

玄关配以悬空柜,更加美观大方。别致设计的换鞋凳,简约时尚,与空间的几何图形相呼应,很好的划分了空间,打造了一个和谐的居家环境。

展示柜以白色为装饰,美观的同时也与地毯色块呼应,营造了一个高级的空间质感。生活的仪式感,便从此刻开始。


客厅天花板上没有安装吊顶灯,安装了无数筒灯,小巧雅致,照明效果也非常好。灰白色调的沙发宛若知性的女性,在精美藏品的映衬下,于雅致的氛围中散发着脱俗与端庄的气质。餐厅艺术色彩的加入,也赋予了空间更多的变化,让空间变得灵动且有活力。


客厅的设计以极简白与原木的融合为基调,表达一种安静、纯粹的生活美学,同时也寻求着艺术与生活之间的平衡。在闲暇的时光里,感受绿色的生命力,温暖的阳光从落地窗投射进来,泡上一杯浓茶,欣赏着每一件藏品的精雕细琢,探索着古今中外的匠心独运,生活变得温暖而惬意。





就餐区,休闲水吧与实木餐桌的结合,充分利用了空间,同时在色调上也拉近了人与自然的关系,呼应了整个空间的主题。大面积的落地窗将自然景观引入空间,让人足不出户便能感受着四季更替的岁月佳景。 色彩奇妙的艺术画和粉色的满天星相映成趣,从色调上柔化了空间几何尖锐的线条感,搭配现代的艺术装置,让空间更加温润和谐。


餐厅是一家人交流的核心,在餐厅设置一个吉他放置处,让空间的艺术氛围得到最大的发挥,同时也让家人之间的互动更加丰富有趣。



厨房柜体的门板选择了雅黑的色调,与空间的白色调呼应,配合多彩的艺术画,不会因为黑色让空间显得深沉压抑,反而因为这些色彩和冷暖的配合,展现出屋主细腻的艺术品位。另外,橱柜采用无把手设计,可以避免油污粘在把手上,难以清洗,也让整个空间更加美观,整齐划一。

简洁硬朗的艺术楼梯,减去冗余的形式表达,将活跃轻快、温润质朴的空间特性予以充分的还原,运用原木材质,打造了一个典雅的过道空间。



顶层的茶室,被质朴的木面所包围,创造了开放自由的起居情境,烹茶煮酒,随心而为。 将日式茶道的宗教之礼与中式茶道的修身养性融于设计之中,深刻诠释了屋主对“茶禅一心”的向往之意。


淡泊宁静的绿植荷叶,柔和的室内生活,两者映射在落地窗之上,似一副天然的壁画,阐述着人与自然的浪漫诗意。
问:你对这套作品最满意的地方在哪里,为什么? 答:首先是满足了客户的需求,包括最后确定方案后,业主有新的想法,也能最终实现。另外在实现业主要求的同时,加入了我们自己的创意点,例如软装的搭配,家具的选择等等。因为设计师不仅是要制定一个方案,更重要的是需要对材质,尺寸,风格,色调等等方面都有把控,才能为业主打造一个理想的家园。 问:对平面布局做了哪些优化改动,为什么? 答: • -1F拆除了入户对门的房间,只保留了电梯的空间,为鞋柜也留下了足够的空间;拆除了楼梯多余的墙体让整个空间更加通透,也更符合动线组织规律;单独分隔出储藏旧衣物与杂物的房间。 ▪ 1F 牺牲了卫生间的部分空间,纳入了厨房,拓展了厨房的操作空间;扩建,加大了餐厅的空间,消除了狭窄的感觉。 ▪ 2F 去除了阳台,调整了整体布局。阳台空间并入书房和衣帽间,让空间更加舒适。调整了卧室的入口位置,将卫生间独立出来。拆除了主卧的衣帽间,扩展了卫生间。 ▪ 3F增加了电梯的通道,满足了空间的需要。改变了休闲阳台的入口位置,扩大了过道的空间,也能容纳更多的展示物品。 问:在整个装修设计期间遇到最大的挑战是什么? 答:在厨餐厅的方案落实中,业主一直也在纠结选择哪种方案,包括确定方案后,最终还是决定延续原先的方案。这对于装修过程中各方沟通协调会有一定的难度,并且需要迅速调整方案,因为即使工程需要调整,也要确保施工时间在业主的预计之内。
