从业主的需求,到方案设计,户型改造,这个案子最终花了一年半的时间才完全结束。除了过程漫长艰辛外,最后成果的完美展现,也是让它一跃成为让设计师最难忘案例之一。 业主找到设计师的时候,说想要装修成工业风,并给了一些的参考案例,经过详细沟通后,确定要实现业主的设想,会要在房屋格局上做很大的改变,对一共四层的户型做了颠覆性的改动,再依据屋主需求,实现了这套不一般的户型改造设计案例。

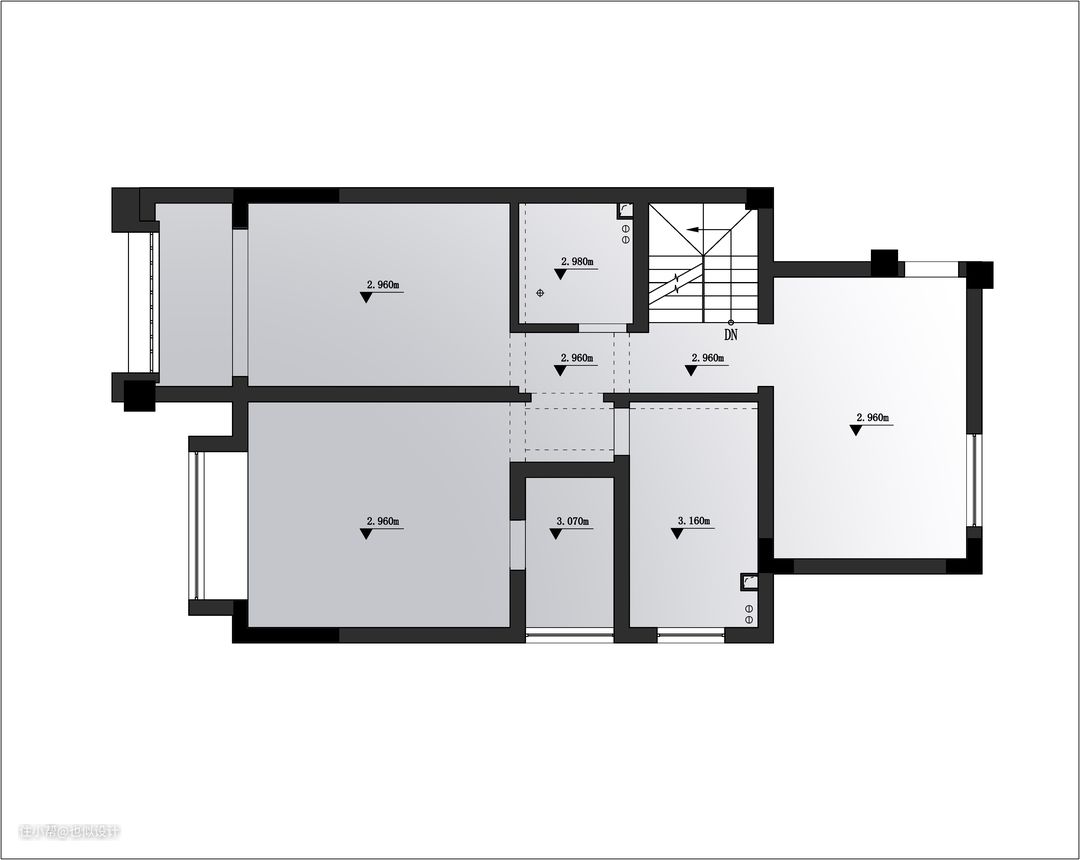
B2原始平面

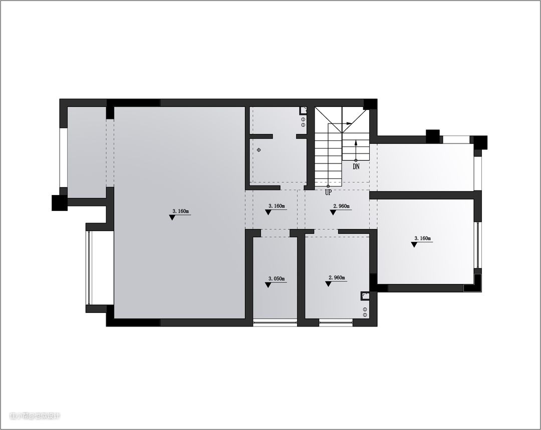
B1原始图

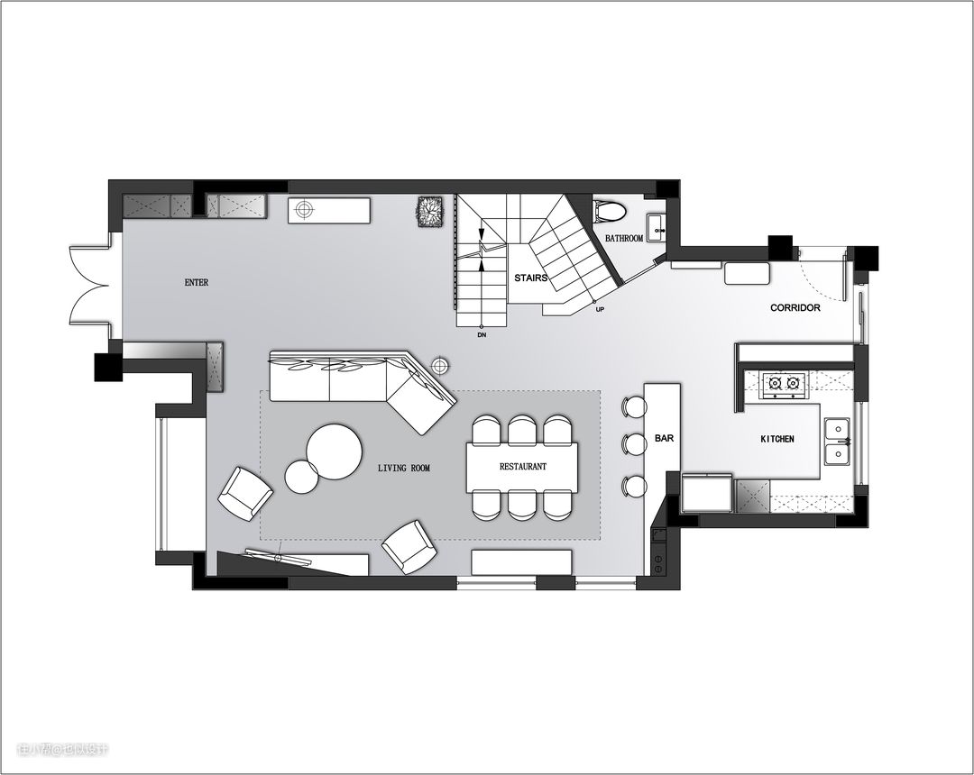
1F原始图

2F原始图

B2平面图

B1平面图

1F平面图

2F平面图

把室内多余墙体拆除后,空间视野开阔了许多,原层高限制导致空间狭窄,在部分挑空的设计下被化解,挑空区域被设为影音室,旁边悬挂式壁炉穿过负一层直达最底部,增加空间的延伸感。


一侧墙壁铺贴天然石材,打造粗粝原始的工业感。一块石头便重达20-30斤,运输问题导致此项施工工艺难度骤增,但设计师仍一丝不苟地细致落实,最终呈现出良好效果。


原层高区域同样利用得当,靠墙设为工作阅读区,顶天立地柜方便收纳藏书。中间设吧台,便于日常使用。局部吊顶和分色处理使视觉上拉高层高,看起来不会过于低矮。








挑空区的墙面设两层通高收纳柜,具有强烈工业风格的错位设计,让这面足够两层高的开放展示柜视觉感异常壮观。幕布盒藏在收纳柜腰部,收起开放自如,大荧幕的享受与藏品的收纳展示完美契合。

一二层打通后,楼梯选用Y字形,铁艺镂空材质增添空间通透感。楼梯踏板间的镂空可以让自然光线透过天井更多地到达地下二层,原本踏板也要选择更为通透的镂空款,考虑到业主家养大型犬,最终还是选用实心踏板,更加安全。

原本直上直下的楼梯改造成拐角式,搭配镂空踏板和扶手,避开传统楼梯的逼仄感,空间通透感更好。楼梯整体左移,一层与二层原楼梯位置均改造成洗手间,合理利用空间,走水电线路也更为方便。






负一层走廊处同样选用钢结构镂空楼板,把天井光线引入地下,增强负二层整体空间的采光。地下室墙面全部选用水泥漆,营造原始的工业氛围,通往储藏室的谷仓门同样选用做旧岩板,整体风格保持高度一致,达到视觉统一。

浅色系的水泥漆墙面与水泥砖地面,搭配钢结构的镂空板,延续完整的工业风氛围,一层同样选择全部打通,使暗黑系的工业空间仍旧采光良好、明亮通透。全屋采用极简吊顶,无复杂装饰,空调出风口选用细窄无边框样式,让顶部视觉更加干净简练。入户侧门到洗手间墙面,打造顶天立地柜,墙面外推与柜面平齐,观感更为简约。




电视背景墙选用定制的黑色木格栅,装点空间,营造独特的神秘感。客餐厅之间无明显界限,木格栅与水泥墙面隐隐划分功能区域,不遮挡视野同时起到划分效果。定制的六人位铁艺餐桌,契合空间氛围。






厨房与餐厅之间用吧台隔断,定制的超薄台面同样为岩板材质,不影响采光进入,使空间通透感更好。厨房墙体背面对着侧门,于是靠墙打造鞋柜,同时可当做换鞋凳使用,下方悬空方便摆放日常的拖鞋之类,节省空间。

卧室将原有的主卫和客卫打通,纳入室内范围,洗手间靠卧室这面装玻璃落地窗,平时收起百叶帘,保证洗手间内采光更好。次卧延续整体的工业风,床头背景墙无多余装饰,选用水泥漆营造原始质感。



洗手间内部干湿分离设计,墙面铺贴黑色纹理砖,定制黑色极简款式开关,细节上也同样注重整体风格的完整感。选用黑色玻璃隔断,保证采光的同时有一定的视觉遮挡效果。选用极细长条形排水槽,颜值与实用并存。

改造成开放衣帽间和主卫,衣柜门选用黑色玻璃材质,保护隐私的同时可以反射光线使空间通透感更好。


