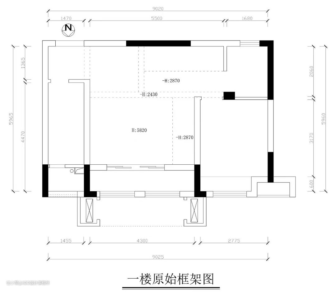
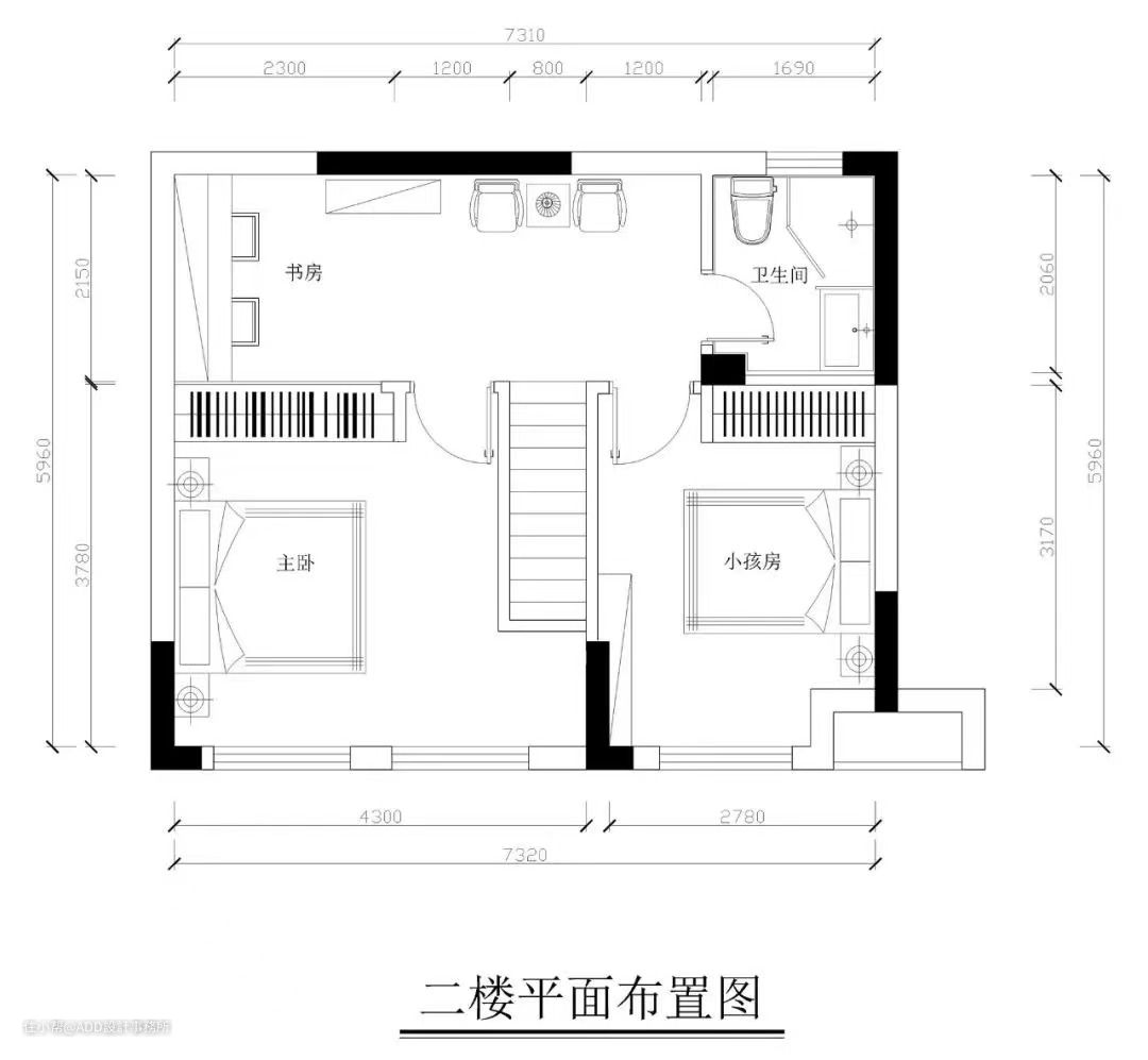
户型解析
这套户型虽然为跃层,但是每层的空间都不大,而且承重墙体偏多,一楼餐厅区域偏少,楼体采用采光拉丝边框黑色玻璃进行隔断,既可以把它作为扶手来使用也不会影响到过道的采光并且把阳台和客厅之间的隔墙打通,这样也增加了客厅的活动空间。 二楼过道因为后期要隔出一个小房间,所以没有多做什么改变暂时以活动家具为主,先制定为一块儿童的玩耍区域,如果以后户主有办公的需求,这块富裕的区域也可以在以后调整为一个书房。




客厅



用浅蓝色的墙面作背景,跳跃的挂画增加活跃的氛围,用素雅的沙发和简单的座椅灯饰来画出了一简约自然又清雅脱俗之美
餐厅



原木的座椅给人一种视觉上的舒适之感,餐桌线条的独特品出了对生活的享受也让餐桌不会显得那么死板
厨房

黑色的橱柜配上白色的流理台显得格外稳重自然,收纳架的使用不仅杜绝了空间的浪费,而且还提升了厨房的格调让厨房变得更加大气
主卧



内部风格采用原木来做背景,让房间整体都充满着一股自然的风情,床头的灯饰和墙上的挂画让房间简约又不失格调
次卧


房间整体的色彩都是舒适宜人的,占据一整面墙的立柜让储物变得不再烦恼,柔软的靠背也让老人在使用时更加舒心安全,雅致的挂画也为房间增添不少格调
儿童房



用蓝色椭圆形状的床靠做装饰拒绝了方正立体的常规形床靠,使孩子的房间更加自由化自主化,花团模样的灯饰也让房间变得愈加有精致起来
