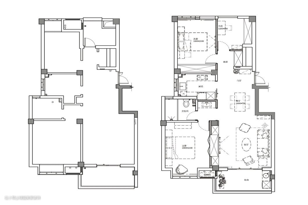
户型解析

北欧设计、理想的生活设计。
玄关

浅系藕粉色鞋柜精巧,线条轻细却有力,足够收纳日常换下的鞋子;右边柜体内部设计了衣架,方便换取衣物。新式大理石面板的时钟极具创意,配上灵感乍现DIY的装饰画,清新淡雅。
客厅

全屋色系使用浅灰色,用特有的明度与柔光缓解疲惫。用浅灰色的温柔缱绻容纳年少的率真,既要生长也要守住初心。

米色短绒几何图案地毯清爽整洁,且不易藏污垢和灰尘。

皮质坐凳、黑白撞色金属框茶几、青葱的绿植、抽象的装饰画,每一个细节都饱含对生活的热情和对艺术的欣赏。

磨砂玻璃移门的设计将室内天然采光做到极致,同时保护了用户隐私,更添朦胧意境之美。

电视背景墙延续简约的风格,内嵌式蓝色储物柜特意设计成对称格局,达到均衡整个地域重心的目的。纯色以其特有的开阔爽朗和澄净,给人一目明了的舒心。
餐厅

餐厅,散发着浪漫优雅的气息。将全身镜融入挪动轨道安置在餐厅墙面上,安美遮挡了强电箱。

镜面的反射,借用光学原理让处于中部的餐厅亮堂起来,让视线所及之处更通透,心情也随之变得宽敞明朗起来。一盏暖橘色的吊灯以最明媚欢快的光辉,点亮斑斓的餐桌时光。
厨房

设计了U形厨房,为美食爱好者准备了充足的空间,呈现了客户理想的效果。
主卧

卧室设计简约舒适。


床头做了特别的硬包处理,绒布材质更易于日常打理,而且价格实惠。


优雅的蓝色散发着恬静的气息,将身心投入沙发的柔软怀抱,愈静心愈净心。
次卧


设计了一整面的衣柜,有足够的空间来收纳。

书房


在蓝紫和橘黄的冷暖色碰撞下,是精致与活力的并存。
阳台

阳台更注重实用性,铺设的六角地砖,把思绪带到回忆万花筒的画面,满满的细节感。
