We're sorry but react app doesn't work properly without JavaScript enabled. Please enable it to continue.
访问APP
目录
01 户型解析
02 客厅
03 餐厅
04 厨房
05 主卧
06 次卧
客厅
餐厅
主卧
次卧
厨房
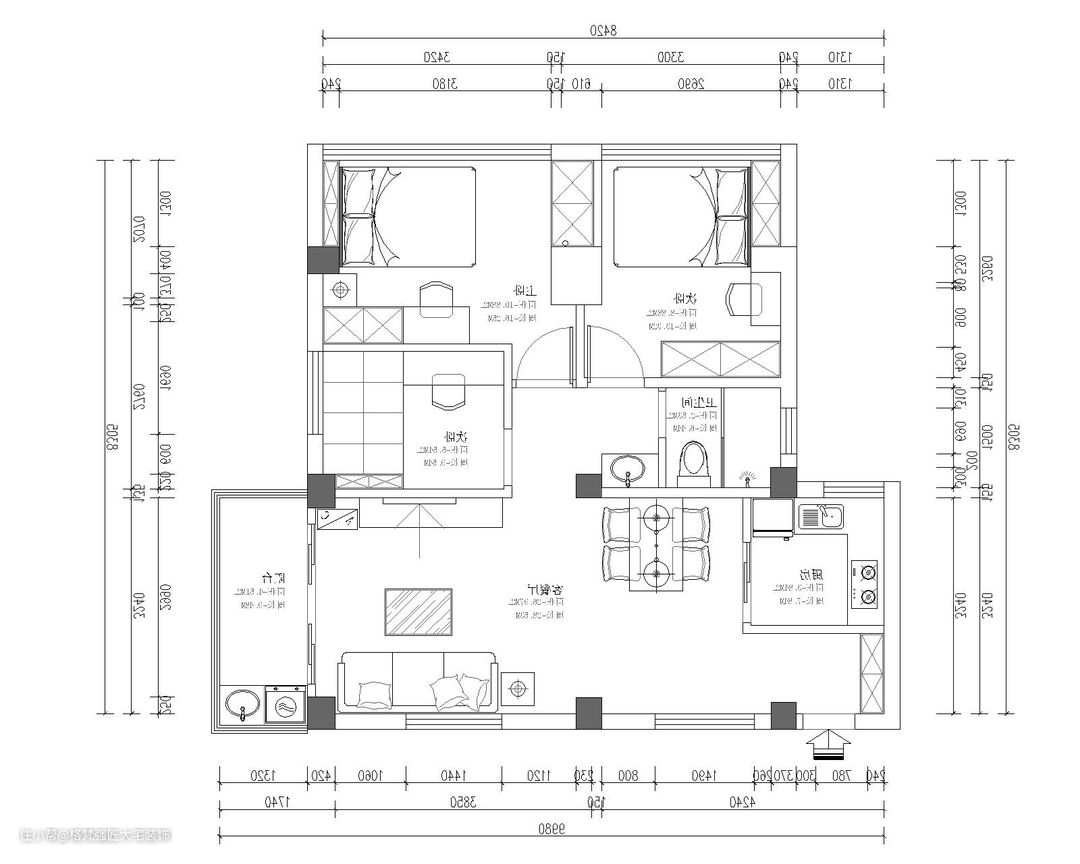
户型解析
118m²现代简约风,清新充满了全屋!
格梵强匠大宅装饰
关注
户型
三居
风格
现代简约风
面积
118㎡
位置
广州市
方式
半包
预算
16万
户型解析
这是一套现代简约风格的装修案例,设计师与业主不约而同的想法:从简约时尚出发,抛却繁琐的装饰,打造舒适惬意的家居生活。
客厅
餐厅
厨房
主卧
次卧
相关标签
小户型装修
四室二厅装修
别墅装修实例
三室一厅装修
复古风装修风格
中式装修风格
欧式装修风格
美式家装
小户型60平米装修
小户型30平米装修
110平米三室一厅简装
120平三室两厅简约装修