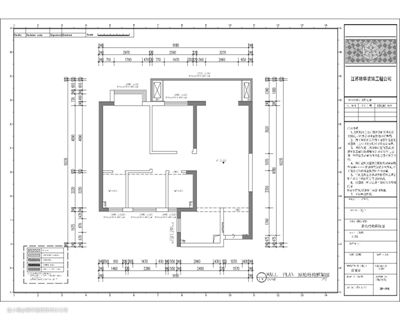
业主目前是个独立单身男性,一人一狗,过着精致的单身生活,有追求、有想法、热爱生活。原本的三房两卫,对他而言,房间只要保留两个就够了,卫生间也只一个就够了,然后他对卫生间的整体比较在意,一个是希望再大点,原始的外卫满足基本功能,但是舒适度活动空间都不够满足他的想法和使用。

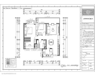
设计师根据业主需求把原本的三房两卫,化繁为简改成现如今的两房一卫,把空间最大话的同时增加一个衣帽间,营造宽敞舒适的生活环境。

整个房屋呈南北格局,敞亮通透,动线明朗。

木质地板元素为客厅带来成熟稳重的质感,低矮的家具产生更多的留白,并拉伸空间的高度。

绿植向阳而生,叙述空间的故事。设计师将阳台原有的墙体拆除,扩大阳台空间感,又增强了采光效果。

同时在阳台设置了储物和洗护区,充分利用了这一空间。


厨房和客厅紧挨,让烹饪和用餐的人更能产生互动和交流。

厨房安装了玻璃移门,以此来扩大空间感,同时也隔绝了厨房的油烟气体。

主卧空间设计简单大气,原木家具更显原始气息,让人身心恬静舒适。

采用软装配色来突出设计感,窗帘、床品、装饰物在配色上高度统一。


根据业主的需求牺牲掉的卫生间和小房间改造成了衣帽间,增强了房屋的收纳功能也让业主的饰品、衣帽有了栖身之所。




卫生间采用干湿分离,木质的卫浴配合颜色简单清新的墙砖,更能体现业主对生活品质的要求。


