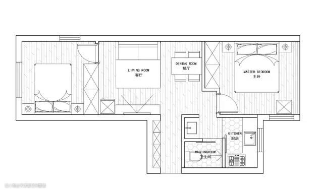
&屋主需求 1.屋主想要简约的风格,让小平米的空间显大 2.要有独立的儿童房,给孩子打造一个独立的成长空间 &房屋信息 面积:50㎡ 风格:简约 户型:两室一厅一厨一卫 装修成本:8万 &户型解析 //户型优缺点 1.户型偏长,南部带有突出的空间 2.南北通透,采光良好 3.两个卧室在房屋的两侧,中间是公共区域,动静分区不合理

▲原始户型图 //设计方案 1.将卫生间和厨房之间的位置调换,让卫生间的面积更大,打造开放式的厨房 2.客餐厅的立地窗方格设计,明亮通透又时尚 3.L型厨房设计动线合理

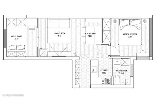
▲平面布局图

白色的玄关基调,隐形柜门设计,底部悬空设计通风防潮还可放置鞋子。




房顶白色的大面积留白,只有简约的轨道射灯,高级灰沙发和轻盈造型桌椅,空间很通透。高架椅上摆放绿植,鲜活的生命让房间更有活力。 餐厅延用白色,两盏简洁的吊灯,多人餐桌满足日常需求。墙角架子摆放小饰品,更有空间立体感。 格子落地窗通透的空间增加一丝优雅时尚。



L型厨房设计,白色简约基调,倒挂桌子式开放储物架很有空间立体感。瓷砖用六边形蜂窝设计和方格,清新活泼。




蓝色的墙面亮眼吸睛,细栏杆床头架简约轻盈。白色推拉门顶天立地柜简洁优雅。一个小桌上吊几顶复古简约灯泡温馨明亮。


床头架分层错落设计很有立体空间感,一个简约的架子随意搭放围巾衣帽。 学习桌和栏木透气座椅,轻盈美观。



磨砂玻璃推拉门保护隐私可透光线,淋浴区用防水帘隔离,洗浴不会外溅。洗衣机嵌入洗手池延长台面之下,洗澡换衣一步到位。
Q:装修这套房子最大的难点是什么? A:厨房空间有限,设计了L型延伸吧台的设计,虽然小,但是功能齐全。 Q:如何有效控制装修预算? A:及时关注装修公司和商家的打折信息,了解全面一些,有计划进行装修,控制预算。 Q:最满意的设计亮点是什么? A:最满意的就是卫生间设计,盥洗台完美嵌入设计了洗衣机,很不错
