这套别墅位于上海市松江区,房屋总面积达到500平,屋主家是三代同堂,家庭成员有屋主夫妻俩, 快小升初的女儿,屋主父母和一位保姆,男屋主事业有成,是一名景观设计师,平日的工作比较繁忙,喜欢舒适有质感的生活环境,希望庭外能增加小花园;女屋主则是一名和蔼可亲的幼教老师,更注重儿童房的设计,希望能给孩子提供休闲与学习一体化的空间,对中西餐的文化兴趣浓厚,希望有各自独立的中西厨空间。 设计师在对接屋主需求过程中,先考虑到承重墙的原因,对可改造空间做拆除处理,优化空间增强整体的利用率,其次考虑到屋主父母年龄都偏大,设计师再根据老年人的生理机能变化情况,做无障碍设计,满足二老的生活便捷性需求。

一层原始户型图问题: 1.玄关和客厅原本是一体化设计,空间区域划分不明显,无法满足室内正常的采光,且空间得不到合理的利用。 2.原始客厅吊顶是斜面的状态,使整体空间结构看上去非常奇怪,无法很好的跟屋主想要的风格融合在一起。 3.餐厅空间单一封闭,无法实现屋主的中西厨需求,且面积过小,收纳储物无法达到屋主一家人日常的使用需求。

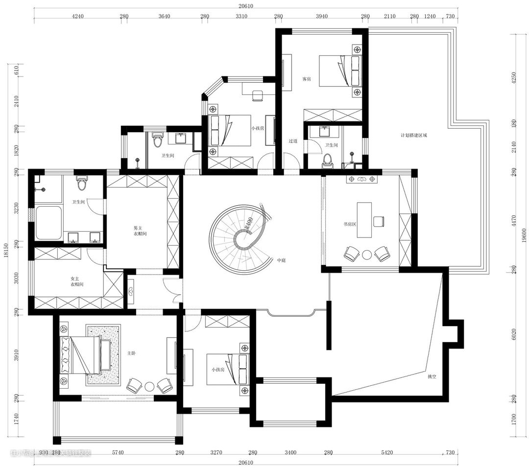
二层原始户型图问题: 1.女屋主希望增设自己的衣帽间和梳妆台,但原始户型只有一处空间,无法满足双空间的需求,且门洞位置与卫生间靠近,体验感很差。 2.主卧阳台区空置,虽然面积很大,但是空间得不到合理的利用,晾晒和休闲功能双重缺失,如何合理规划布局是个问题。 3.卫生间的潮气太严重,会直接影响到屋主一家人的健康,且在布局上,屋主希望能同时实现淋浴区+浴缸的双功能需求。

一层平面布置改造: 1.在玄关和客厅处的墙幅,设计师打造了一块从地到顶的主体背景,形成了玄关和客厅的墙面,让空间的动线更流畅,增加空间的使用度。 2.保留客厅原始的建筑特色,结合现代轻奢风的特性,搭配水晶吊灯,增强结构的线条感,营造出空间的不同层次感。 3.设计师拆除部分墙体后,增设出西厨区,满足屋主中西厨的需求外,西厨区还能做多功能的空间利用,如吧台或茶水间等。

二层平面布置改造: 1.设计师打通了主卧与外侧空间,用隐形门做隔断,外侧空间做整面墙的嵌入式通天柜打造衣帽间,打通后的剩余空间则直接改造成了独立的化妆间。 2.考虑到屋主生活和休闲的双重需求,设计师在阳台一侧放置生活家电,满足晾晒功能,另一侧则做休闲区域供屋主休闲,放松身心。 3.卫生间的布局上,设计师考虑了屋主的淋浴区+浴缸的双重需求,做了三分离设计,以及在适老性上,增设了防滑椅和专门的老人扶手。
设计师考虑到屋主平时喜欢种一些花花草草,便在入户门厅处做了小花坛,再用石材做简铺,从点到墙角处做围合型设计,最终形成了门厅区的小花园。 而运用到的石材,无论是从强度还是抗污染性能上,都非常不错,同时还具备雨天防滑的特性,避免了很多安全问题。

由于主入户区域的门廊位置特别高,所以设计师在房屋外观上选用的是浑厚石板,搭配深色的面砖,整个相拼而成,加上整面弧形落地门窗的设计,放大了别墅整体的挑空效果,看上去更加的气派!

设计师在挑高的吊顶上做透光玻璃设计,让室外和室内的景色完美相融,满足了整体的室内采光;双开门的设计,除了把开关门的声音降到最低之外,还不占用门洞两侧的墙面,且使用周期长,防尘性能也比较好。

地面选用天然大理石铺贴设计,大理石天生的自然纹理具备强大的装饰性,让空间看上去更有质感;且经过打磨后,屋主在后期维护上也不会太费劲,便于打扫。 虽然玄关空间很大,达到6米的挑空高度,但还是需要解决基本的储存需求,所以设计师在玄关一侧做了整面大幅的储物壁柜,功能收纳非常强;且壁柜中间和侧面均做了镂空设计,方便屋主放置平时穿的鞋子,进出的物品,和收纳快递的临时场所。

米白色作为空间的主色调,搭配挑高设计+落地式景观窗户,整个客厅区域视野宽敞极了;在动线上,设计师根据屋主爱好和习惯,在客厅两侧做了双开门,即使不装新风系统,照样满足通风条件,除此之外,门厅小花园和客厅的连接也更为紧密,方便屋主出入。

客厅地面选用浅灰色的瓷砖,搭配简洁性的线条围边,空间更显大气;在软装上,配以饱和度高的皮质沙发,迎合了当代人的审美和偏好,营造出空间的通透感。 原始客厅吊顶是斜面的状态,使整体空间结构看上去非常奇怪,设计师选择保留这一建筑特色,在基础上结合现代轻奢风的特性,搭配水晶吊灯,增强结构的线条感,营造出空间的不同层次感。

窗帘采用的是智能自动窗帘,双层窗帘白棕搭配与室内色调协调一致,以及搭配同样高饱和度的挂画装饰品,让人顿时眼前一亮。

原始客厅区域划分并不明显,得不到合理的利用,针对这一问题,设计师在玄关和客厅处的墙幅打造了一块从地到顶的背景,形成墙面后,整个空间的动线看上去更流畅,也让各自区域得到了合理的发挥作用。

屋主希望实现空间相互打通的效果,设计师在此基础需求上优化,考虑了区域划分的问题,所以在将餐厅和客厅部分墙面拆除后,选择保留了一根原有柱面。

柱面采用装饰面板做覆盖,不显突兀的同时做到了区域的明确划分,同时还实现了南北空间互通的效果,整体以木质元素为主搭配精致的吊灯,此时窗外的美景又映入眼帘,舒适且惬意。

餐厅延续客厅格调,采用直线型的线条框架设计,勾勒出空间的深度,搭配可延伸的圆桌设计,满足至少5人的落座率,皮质的软包餐椅,提升用餐的舒适度。

女屋主是一个上得厅堂,下得厨房的高知女性,对中西厨文化有浓厚的兴趣,设计师则取消了原本开放式设计的想法,考虑到中国的菜系油烟偏重,则一侧空间做封闭式厨房,另一侧空间则做敞开式西厨设计。

中厨空间,设计师采用了L型台面设计与整体橱柜结合,U型造型搭配顶柜设计,满足了厨房用品用具的日常收纳功能,打造干净清爽的烹饪环境;冰箱则选择外移至外区,敞开式的西厨区增设透明茶色顶面联排柜,收纳也毫不逊色。

设计师考虑到屋主的人口居多,父母的腿脚还不方便,所以平日里还能把这个西厨区当做茶水间或吧台使用,洗个水果洗个小茶具,走几步就能实现,再也不用大动干戈。 西餐厅利用岛台的概念,让厨房动线合理方便的同时,还能当作餐桌使用,屋主一边做饭,家人也能在一旁陪同互动,感受温馨的同时,让情感间的纽带更为紧密。

过道的旋转楼梯区,设计师做了圆形与弧形的整合设计,底部搭配智能化无主灯,灯源随着屋主的一步一个脚印而发生变化,提升趣味性的同时,也提供了便利。

中轴的旋转楼梯立面设计,设计师仅用形状的改变就体现了整个区域的空间张力,艺术感十足。

进门处同样采用的是双开门设计,大气而美观;主卧色调与整体风格统一,在米白色的主调下搭配粉白色做点缀,俏皮可爱,床头两侧的挂式壁灯,体现质感的同时又给卧室增添了更温馨的气息。

落地式的玻璃窗设计,很适合大面积的卧室,床尾搭配环绕式沙发凳,方便屋主放置脱下来的衣物,柔软的坐垫和靠背,躺在上面还可以很好的释放压力、缓解疲劳,非常实用。

主卧取消衣柜设计,在外侧做整面墙的嵌入式柜体,搭配部分透明的茶色镜面柜+中岛闲置柜,整个空间的收纳力直接爆棚。

次卧由于是给老人居住,所以在设计上,设计师相对保守了许多。窗户采用半拱的设计突显质感,奶奶的梳妆台和梳妆凳在入口处,床下、柜中,设计师均做了合理的收纳空间。

在通天的衣柜设计上,设计师分别对两位老人做了身高上的测距,在满足收纳的基础下,衣柜顶面的部分做自动化处理,只需按一下遥控按钮,内置的衣物就会像升降台一样缓缓落下,方便老人随时拿取。

同时设计师还考虑到老人睡觉一般比较浅,所以在窗户上安装了隔声玻璃,有效保证了室内的采光性。 从性能上考虑,夹层玻璃还可以减少冬季房间的暖气,夏季房间的冷气与外界环境的热交换,从而达到节能的效果。

儿童房所运用到的元素与其他空间无异,不过色彩上稍显丰富了一些,粉蓝紫的三元素让整个空间充满童贞感,定制的嵌入式衣柜一柜到顶,满足孩子的生活收纳需求,搭配粉色床品、原木书柜等,整体空间集收纳、学习、休息于一体。

考虑到屋主的女儿快小升初了,所以设计师在设计上会更偏向学习房,靠窗做定制书桌,墙面做联排顶柜设计,满足室内采光的同时,强大的储存功能还能提高学习效率。

床头墙面做了置物架,拼色设计,让整个房间充满了童趣。左边靠墙做了一面顶天立地的衣柜,用来作为儿童空间的收纳使用。

主卧卫生间整体做三分离设计,以浅灰色为基调,干净清爽明亮。考虑到潮气的问题,施工人员在前期的防水阶段,做了至少三遍的测试;布局上,台盆柜悬空设计更方便打理,马桶和淋浴一个空间,透明玻璃门做隔断,使整个空间更加通透宽敞。


同时淋浴室还增设了防滑椅和专门的老人扶手,不仅如此,设计师还在内侧做了智能化报警系统,如果老人洗澡一旦超过了预设的时间,系统就会自动报警提醒,既保证了老人的安全,又提高了防护意识。

考虑到屋主有泡澡的习惯,设计师分别做了单独的浴缸和淋浴的双设计,整体采用干湿分离,实现屋主的共浴需求。

而外移的整排台盆柜和镜柜,设计师在顶部镜柜部分做内柜,底部做悬空设计,让上下都有了充足的储藏收纳空间。

墙面和台面则用的是纹理石材,打扫起来毫不费力,一抹即净!

阳台作为生活阳台,设计师做了两手的考虑,一边放置烘干洗衣机,洗好就拿出来烘干很方便,可以解放阳台晾晒的空间,拥有更多的阳光风景视线。

另一侧则做休闲区,只需摆放两把编藤的造型椅和一个小茶几,无论是朋友聚会还是个人办公,都能在阳光静好的日子里,感受大自然带来的惬意与美好,悠闲地度过每一天。

在原始布局上,主人房虽自带衣帽间,但这两个空间却是各自独立的区域,动线上十分不合理,又考虑到女屋主早起会有化妆养肤的需求,设计师便在确认墙体为非承重的情况下做了打通。

打通后的衣帽间用隐形门的方式做了区域划分,而在打通后的剩余空间中,设计师也没将其浪费,直接改造成了独立的化妆间。 收纳上,设计师从男女屋主的衣物需求量上考虑,在一侧打满柜,满足了一家人的储物需求,同时柜体与台面做一体化设计,将空间利用到极致的同时,让整个衣帽间看起来更完整大气。


问:装修这套房子最大的难点是什么? 答:原始客厅吊顶是斜面的状态,整体空间结构看上去非常奇怪,无法很好的跟屋主想要的风格融合在一起,但设计师在后期却选择保留了这一建筑特色,结合现代轻奢风的特性,搭配水晶吊灯,增强结构的线条感,营造出空间的不同层次感。 问:最满意的设计亮点是什么? 答:设计师拆除部分墙体后,增设出西厨区,满足屋主中西厨的需求外,西厨区还能做多功能的空间利用,如吧台或茶水间等,缩短并优化了屋主的行为动线。 问:对这套作品最满意的地方在哪? 答:全屋从屋主的需求点出发,并在此基础上做优化升级,比如适老化和智能化家居的设计,所有的布局考虑都是为了给屋主一家人提供方便且舒适的生活环境。
