基 本 信 息: 坐标:魔都中心 建筑面积:4层别墅400m² 装修风格:工业mix轻奢 楼盘信息:金地白果林岭(中国最美的100楼盘之一)

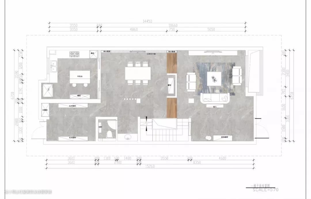
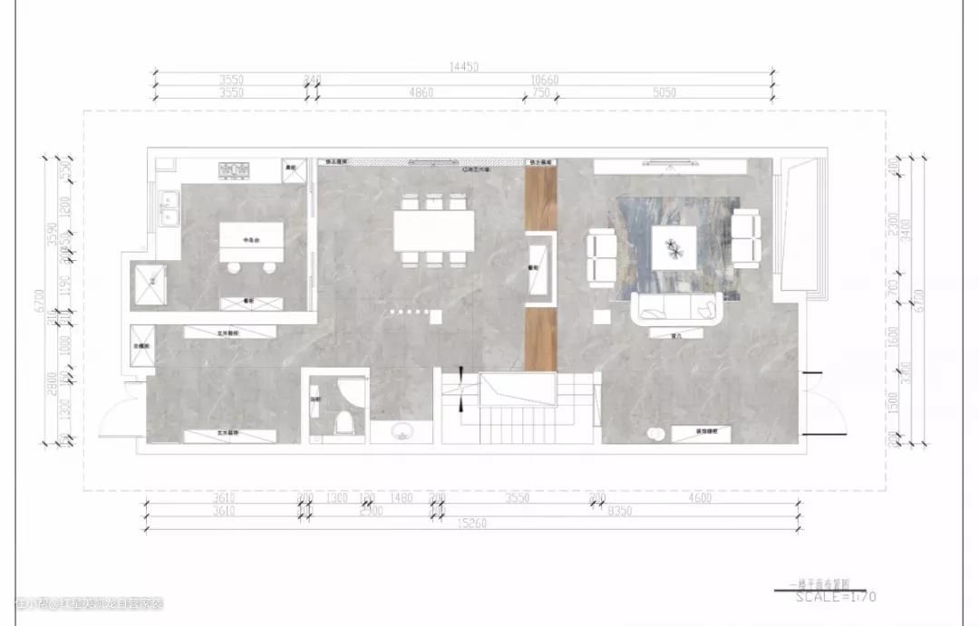
一楼

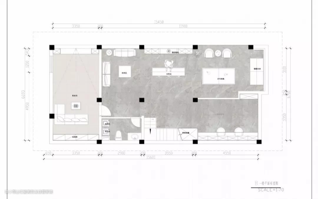
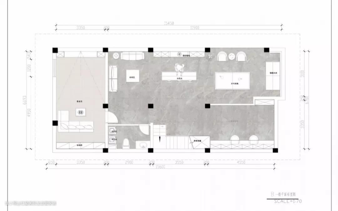
二楼

三楼

地下室
亮点:下沉式的客厅,空间层次鲜明;红砖与格状木饰面上墙打造纯正工业风,细心做了表面清漆处理,抚摸倚靠均无碍。

下沉式客厅,半高的红砖背景墙,即不影响餐厅方向过来的视觉效果,又起到了遮挡直接从台上直接俯冲下来的压迫感。

金属铁艺vs精致灯光,粗犷红砖vs绒质沙发,刚与柔之间的拿捏得益于极为苛求的配色。

背景墙配合工业风元素,采用了相近色系的几何图像墙纸,上下灯带让空间增添了魅力四射的质感。

壁炉嵌入在餐厅平台下面的红砖墙内,复古而有年代感,让粗犷的工业风之中增添了暖意。
亮点:隔断安装之前地面有预埋件,增加牢固度;干区的台盆考虑到开放性,腾空设置了墙排水。

拉丝古铜色铝方管隔断,划分过道与餐厅的分区,同时划分了干湿区域,镂空的设计把隔断做成了空间的装饰之笔。

亮点:电视做了嵌入处理,深度精准;壁灯的位置考究,不能影响看电视的视觉效果。 通体的红砖墙嵌入小电视,点缀精致的小壁灯,点亮了温暖温馨的生活日常。

亮点:开放式书房,书桌与书架也采用了镂空的设计,空间布局干净利落。

书房设置了整面落地窗,借景花园,情境与意境完美契合。在实墙挖凿的壁龛,嵌上不锈钢套框,在略显枯燥的水泥灰墙体上,多了丝生动的设计,又充分利用了空间。

亮点:二楼有长辈房和儿童房,此空间最为适合家庭互动,贴心增设水吧台,考虑到了不用下楼的便捷性。

趣味的定制墙纸,通透的视野,满足孩子玩耍的足够空间。
亮点:选用防腐木充分考虑到了露台位置的特殊性,增加了材质的使用寿命;电动遮光帘的设置为日常增添了科技之美,吊扇灯可以大大促进空调制冷的效果。

扶梯直上,沥青色的墙体与青葱的绿植,木头材质与文化石的点缀,令人转角便有误入热带雨林之感。
亮点:轮胎是业主车子上退役下来的,沿用至家装设计中更有故事感。

工业风的狂野,在地下室的设计中体现的淋漓尽致。集装箱造型的水吧台,豪放不羁,铁椅装饰的酒架,毫不矫揉造作,整个空间随性洒脱。

石膏板柱子造型墙面,搭配射灯营造立体感,欧松板直接上墙,加上复古电影胶片,让工业风的空间更为别致有味道。
亮点:影音室地面高低台设计,保证了观影的视线,墙面石膏板斜面造型,搭配暖色光源,避免光源对视觉的直射,极为人性化。

私属影音室,真皮软座,在家就能奢享顶级影音体验。


本案设计师:红星美凯龙家装设计师 黄力刚
