
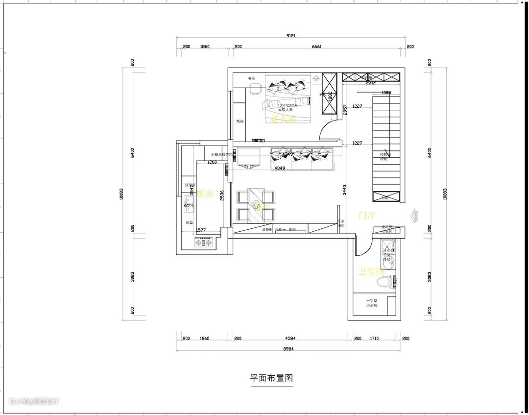
▲一楼平面布置图

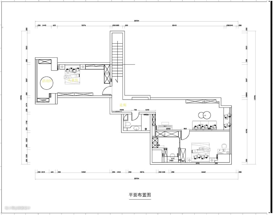
▲二楼平面布置图 房子原来是作为一个办公空间在使用,整个空间没有功能区域的划分,除了厨房、卫生间,其余空间都是敞开的大开间。 此案是一个复式户型,有三世同堂的五口人居住,一对知书达理的夫妇和一个8岁的可爱女儿,还有温文尔雅的两位老人。设计师通过多次沟通了解到,业主既希望三代人同居一室,相互照应,又担心同在一个屋檐下,相互打扰,尤其老人和孩子,老人喜欢安静的读读书,而孩子天生活泼好动。 房子分上下两层,总共180㎡,房子原来是作为办公空间在使用,每层都是一个开阔的空间,没有任何功能区域的划分,且一层是开门见厅型,视线从入户门穿过客餐厅,直接能看到厨房全貌。因为有五口人居住,收纳空间的规划,对设计师是一个不小的挑战。

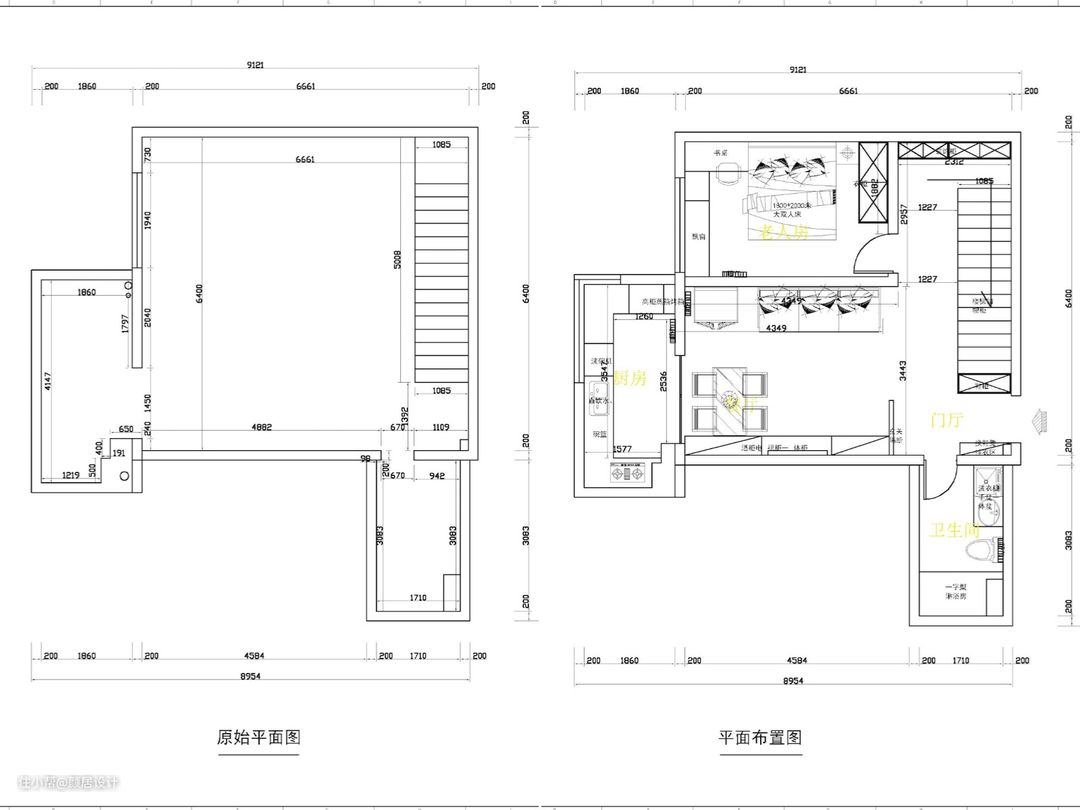
▲一楼Before & After

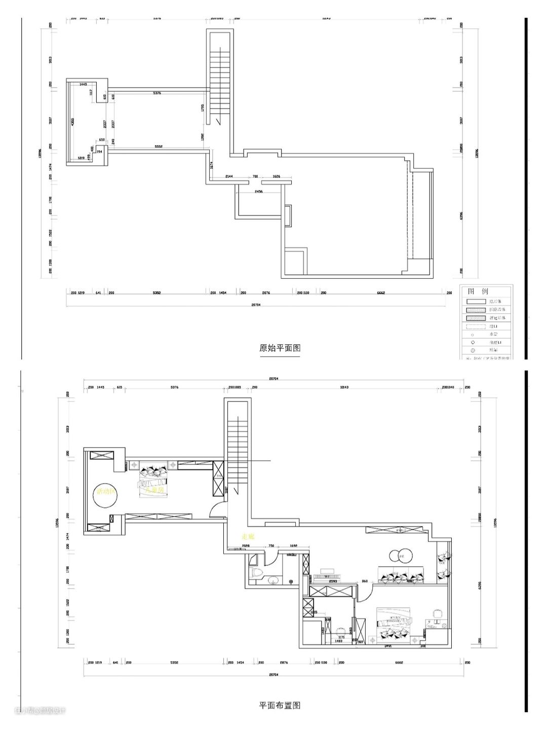
▲二楼Before & After

二楼客厅没有过多繁复的装饰,大面积的留白,通铺的木地板、悬空电视柜、极窄边框的画框幕布、墨绿色三人沙发,仅用几件成品家具来点缀整个空间,加上分子灯与筒灯的光源组合,让这个简约的空间百看不厌,越看越舒服。

二楼客厅是细长型的,主要分为两个区域,一个是休闲娱乐的沙发区,另一个就是女儿的主场,钢琴区。在设计中,设计师更多考虑空间的互动与沟通,并没有刻意去做区域的划分,只是通过家具的摆放与陈设来做区分。

设计师在这面墙内嵌了一组收纳柜,柜子中安装洞洞板,可以收纳日常生活中的各种小工具,真的超级实用。

▲二楼客厅入口处的一面展示墙

主卧灰色的软包床头,突显细腻的生活品质,淡蓝色的床头背景墙,澄澈明亮,让人眼前一亮。一体定制的悬空床头柜,和谐统一,也更方便日常打扫,无卫生死角。

在主卧的阳台为女主设置了梳妆台,女主每天起床都能在阳光的沐浴下,将自己打扮的美美哒。

主卧的另一侧是衣帽间,衣帽间安装了超流行的长虹玻璃门,极窄的边框,具有朦胧美的长虹玻璃,让人有一种神秘感!

衣帽间是L型,定制了L型衣柜,由于房屋结构原因,正前方有一组柜体只能做薄柜,设计师设计成了黑色玻璃柜门,用作女主的包包收纳柜,展示女主各式各样的美丽包包,成为衣帽间一道靓丽风景线。

在衣帽间中还隐藏着一个小小书房,偶尔藏身于此,沉浸于阅读的快乐之中,也是一个不错的选择。

每个公主梦的女孩子,心里都会有一个粉色的梦幻世界,女儿房的墙面选择了淡粉和淡蓝的双拼色设计,搭配暖粉+雅白的床头和床头柜,满屋的高雅。

女儿房同样设计了顶天立地的衣柜,用于收纳女儿的衣物,衣柜的旁边安置了女儿的学习桌。

沿床尾的墙体,一边设计了涂鸦墙,让孩子用画笔来描绘属于她的童真世界,另一边定制了错落有致开放格的书柜,用于收纳女儿的📚画册,浅粉浅蓝色的点缀,充满了活泼灵动的气息。

儿童房阳台也做了收纳柜,增加儿童房的收纳能力,吊顶在阳台做了一个可爱的花型收尾。

二楼卫生间马桶原来在一进门的位置,不但影响美观,留给浴室柜的空间很小,设计师直接移了马桶的位置,并改了墙排,还在马桶上方设计了壁挂洗衣机,方便清洗贴身衣物。

▲二楼卫生间独立淋浴房

原始户型是看门见厅型,没有独立的玄关区域,也没有安置鞋柜的空间,设计师利用楼梯底部空间,定制了一组通顶的鞋柜,上下是鞋柜,中间镂空方便放置随手物品,另外还设计了两组抽屉,用于收纳一些小物件。

入户门的另一侧墙体,利用极窄的空间设计换鞋凳,换鞋凳与墙面背景一体成型,和谐统一。墙面吊挂穿衣镜,穿衣镜自带衣帽杆,榉木材质,黄铜挂钩,皮革挂袋设计,充满了文艺范。

在入户门的正前方设计玻璃屏风,选择超流行长虹玻璃,若隐若现,避免了进门一览无余的尴尬。

客餐厅做了一体化的设计,沿一面墙体定制了整面墙的柜体,一半用作餐边柜,一半用作电视背景墙,满足全家人的收纳空间。

客餐厅整体为暖灰色调,沙发背景墙没有过多的装饰,大面积留白,让整个空间显得更加干净整洁。分子灯、筒灯加吊灯的光源组合,让空间氛围更有层次感。

楼梯底部空间也合理利用,设计了四组抽拉柜,增加全屋的收纳空间。从客餐厅看向玄关,长虹玻璃屏风也是很美的,黄铜色的边框加上朦胧美的长虹玻璃,宛若一个高挑的美少女。

对于有老人的家庭,厨房是装修的重中之地,厨房是一个小U型厨房,靠边的位置设计了高柜,嵌入蒸烤一体箱,剩余橱柜空间遵循洗、切、炒的功能动线,合理规划布局。


厨房有一个超大的窗户,吊柜的空间受限,为弥补厨房收纳空间的不足,在烟机灶台的对面设计了一组通顶的窄柜。

老人房面积不大,设计师对空间做了合理的规划,沿门口的墙体定制了整面墙的大衣柜,床头柜与衣柜一体定制,整体统一,悬空设计,无卫生死角。床的另一侧舍弃床头柜,定制了书柜和书桌,满足了老两口平时读书写字的爱好。

老人房以奶咖色为主色调,奶咖色是温暖的颜色,能够带来温馨舒适的家具氛围,蓝色窗帘与之相撞,使得整个空间清新脱俗。

洗衣柜与浴室柜一体化设计,干净整洁,美观大方。

▲卫生间最里面设计了独立淋浴房。

浴室柜做悬空设计,马桶也改了壁挂,更便于卫生清洁。

▲网红踏步感应楼梯,每一步都充满了浪漫。

利用楼梯前的空间设计了展示柜,用于收纳世界各地出差旅游带回的纪念品。
