位于温江新城的金河谷,在老城区的正东方,是整个温江区版图中最靠近市区的位置。几年前,张老师把青羊区的老房子租了出去,和妻子一起搬到了这里。女儿大学毕业后留在了上海,工作恋爱结婚,整日奔波在生活与梦想的十字路口,一年难得回来两三次。 分隔两地的四口之家,逢年过节时才能在成都团聚,200平带有入户花园的三室两厅,刚好装得下他们的生活。

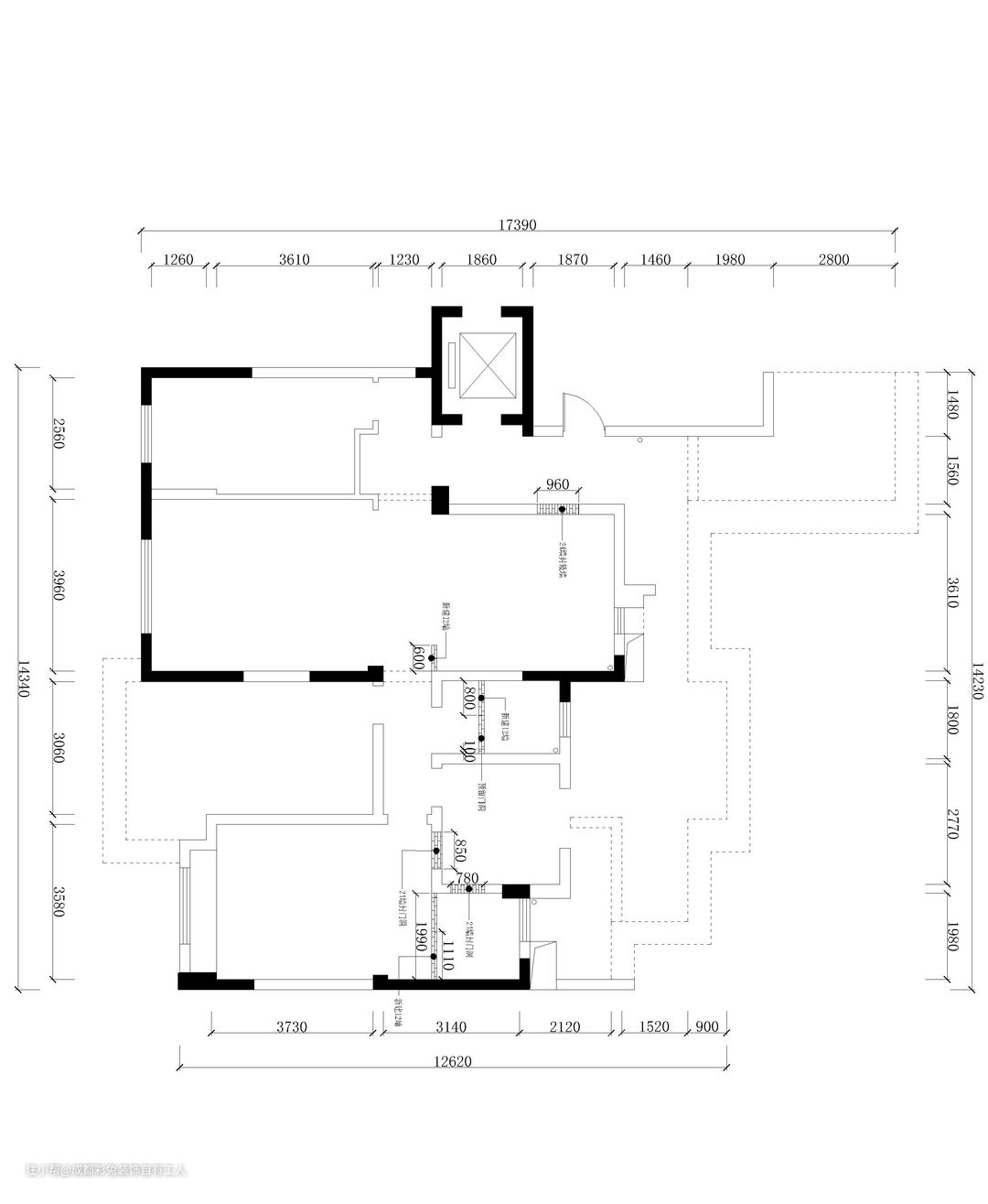
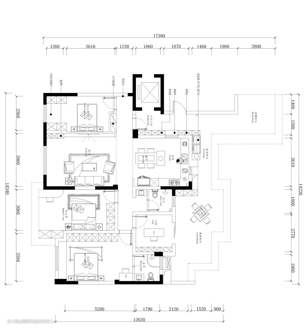
原始户型图 本套户型因为处于一层,有很多赠送面积,所以整体动静线较为混乱。 根据业主需求解决: 1、业主想要在主卧设一个衣帽间。 2、因为处于1楼,整体采光和房屋通透性一定要好。 3、父母房不需要套房,一个老人居住。

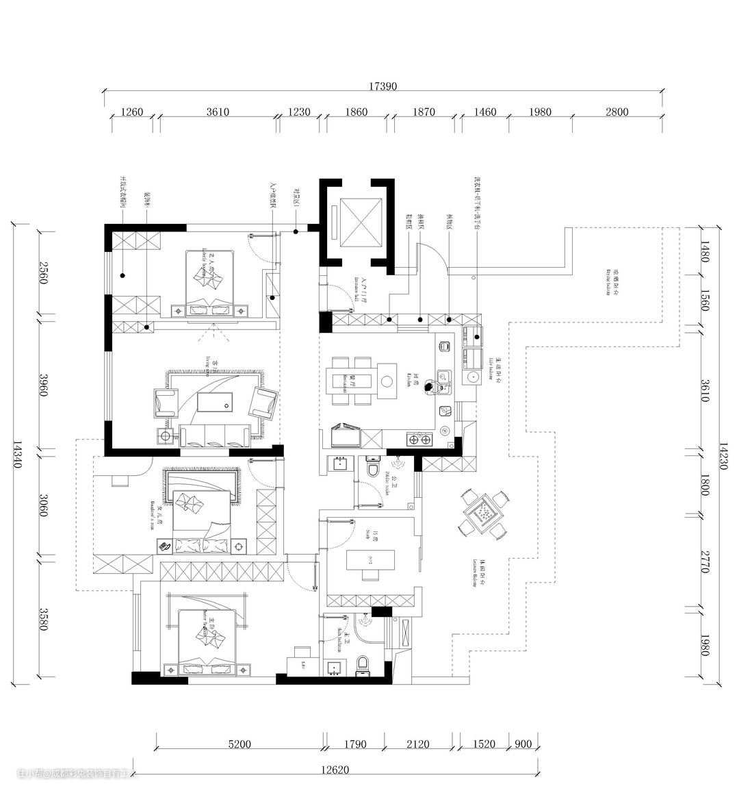
平面布置图 1、主卫不需要浴缸,相对的可缩小部分主卫空间做衣帽间,同时主卧走廊部分做微调使得主卧使用空间增加,能够容纳梳妆台的功能。 2、拆去原本空间隔墙,增加整体房屋采光度和通透度 3、父母房单独设置在入户门位置,一是因为三代人相互作息时间不一致,容易打扰老人休息,二是因为老人房使用率不高。

玄关处整体采用浅色墙漆,墙面凹陷处正好放置鞋柜,因为本套案例储藏空间足够,所以鞋柜没有选择整体到顶的鞋柜。过道空间较为狭窄,且鞋柜正面则是入户门,鞋柜选择挂画则可以在一定程度上缓解整体空间带给人的压迫感。

一进客厅可以发现,整个空间运用了金属条、木饰面等大量的轻奢元素,四周吊顶+灯带的组合,在满足功能性的同时也很好地丰富了客厅结构的层次感。

简单的木饰面电视墙,白色与原木色相配的收纳柜,灰色多人+黄色单人的皮质沙发,高低错落的金属小圆几……不同材质的时尚单品,简约而不浮夸,在大理石地板的映衬下凸显了空间质感,为客厅整体营造出更加高级的精致感。

简单的木饰面电视墙+白色与原木色结合的收纳柜的组合,采用不同材质的单品,凸显空间的质感;再结合时尚的装饰品,极大地满足了现代人对时尚与实用性的追求,简约不浮夸,营造高级雅致的空间!

本案的原始户型中,功能区域较齐全,动静分区良好,但某些区域的面积分布还是不太合理,比如餐厅偏小,它虽与客厅相连,在视觉上有一定的延展性,但实际还是过于拥挤。所以设计师重新规划这块空间,将原有的隔墙拆除,让餐厅与厨房“共处一室”,整体没有拘束感,开放式空间更显轻松自在。

无把手设计的黑白橱柜,纯黑木质餐桌与色系和谐的细脚餐椅,精致餐具,花卉绿植,还有墙上挂着的装饰画,浑然一体的艺术气息扑面而来。再细品其空间布局的实用性,厨房与餐厅相互融合,冰箱也采用外置嵌入式设计,合理利用了每一寸空间。 女主人是一名会计,和数字打了二三十年交道的她精明能干,在家庭和工作的两种角色中努力平衡,这样开阔的餐厨空间设计正是她的提议,可以很好地满足她爱给家人做饭的习惯,边做饭边聊天,认真对待房子的人,一定会感受到来自生活的快乐。

设计师将原有的部分过道和次卫拆改填充进卧室,扩大了主卧的实际使用面积,并结合承重墙留出了更多的收纳空间。水蓝色床头背景墙搭配浅粉色床品,古典与现代相结合的黑白梳妆台,暗棕色的木质地板,整体呈现出自带滤镜的高级感。

主卧墙面漆颜色做了颜色分区,左面为衣帽间和化妆柜,右方则是就寝空间,因为业主是和父母一起居住,设计师设计改造后,满足了业主的私密性和方便性。

因为本套案例位于1楼,考虑到后期绿化生长起来的遮光性需求,所以整个设计师选用了白色墙漆,用于提升整体亮度,整个房间的设计均考虑到老人的生活习惯,在墙面上安装电视,满足老人不会使用智能设备的娱乐需求。

这是张老师夫妻俩为远在上海的女儿布置的房间:将卧室中间的两道隔墙拆除,并与小阳台打通,不仅提升了整体采光,还让原本被划分成几块的空间得到了最舒适的完善。虽然女儿早已长大,一年也难得回来几次,但在父母的心中,她永远都是那个长不大的小女孩。

儿童房衣柜采用底部做抽屉,内衣、袜子分类装储物更方便,上面空间放棉絮,中间和侧面为挂衣和折放区。

干湿分离的卫生间,在注重空间的实用性的同时,增添了仪式感,浅色系的台面与墙面搭配出时尚质感;玻璃隔断的淋浴房在黑色边框的点缀下,极简而又不失格调。

拥有一座花园,而且这座花园就在家里,应该是大多数人的梦想了,忙碌于快节奏的现代生活,人们渴望带着花园的理想家,在那里可以放松地呼吸,感受平静。张老师家书房外的入户花园,浸满了自然气息,在这里品茗作画、闲话家常,确实非常惬意,不用外出游玩,就可以邂逅令人心动的诗与远方。

了解到屋主喜欢视野开阔的空间,于是全屋多处都进行了打通改造,调整之后,采光变得更好,通透性更高。居家风格的最高境界是温暖,诗与远方,带着花园的理想家,平淡的日子里带着烟火气,有阳光的地方就很美好。
