家,是最能体现生活品位的地方,交互的空间、包容的色彩、自然的光影、文化的陈设……无一处不展现你的格调。 本期设计师范儿,小百就带你看一个空间设计、颜色搭配、材质组合都接近完美的设计!美式复古与北欧风情混搭,社交娱乐空间与生活起居空间动静分离,还有开放式中西餐厨、会客厅、运动房、独立衣帽间……想打造人类高质量家居,你必须来抄作业! 本案是一幢改善型的联排别墅,三代同堂而居,一家人希望通过这次装修,不止能改善家居,更能改善生活,享受家庭的温暖和幸福。 不要浪费开发商赠送的双地下室,合理利用起来; 家里人口多,东西多,需要有大量的收纳空间; 钟情美式的复古,喜欢北欧的家具,就连细节处也要体现生活品质。

设计服务于生活。在空间布局上,我们充分考虑到业主及其家人的生活方式,将空间利用率和功能分割做到极致。 ▲地下室平面布置图 地下室一层做隔层处理,开辟会客休闲区和健身区,并在车库上空改造出一个K歌房和一个客房的空间,使空间利用得更加彻底; 非承重墙都采用玻璃落地窗,将采光井的光源最大程度引入室内,让地下室空间更加通透明亮。

▲一层平面布置图 一层是会客娱乐空间,客、餐、厨、庭院四点一线,动线清晰流畅; 客厅为横厅户型,采用下沉式设计丰富空间层次感,沙发后方增设收纳柜改善空间长宽的协调性;

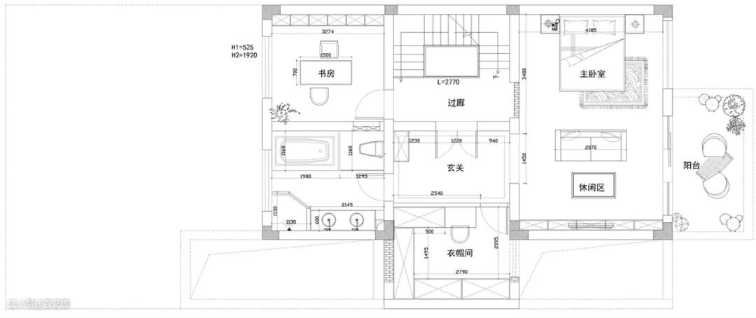
▲二层平面布置图 将原挑高客厅增加隔层,使二层多出一间含卧室、书房、露台、独立衣帽间和卫浴空间的套房。 共享卫生间三段干湿分离设计,洗漱区、放松区和淋浴区互不影响。

▲三层平面布置图 三层同样设计为套房,各空间保持独立,又相互连接,自成一体。 中堂特别打造玄关,保证卧室、卫生间、衣帽间三者之间的居住隐私性。 在整体设计上,则以高雅低调的白、黑、墨绿三色串连起空间的艺术格调,同时用鲜活灵动的自然元素激发出融于生活的雅趣之美,让人进入空间就能感受到扑面而来的温馨愉悦氛围。

踏上前院的台阶,客厅空间一眼可见。全明采光设计让阳光最大限度洒满房间,洒进生活里。

客厅主要功能是会客交友,在整体上要显大方气派。运用大量的黑白对比基调,体现空间的古典和文化气息。考虑到黑白色的运用会增加空间的冷硬感,于是在地砖的颜色上选用温馨的米黄来柔化空间氛围。软装上再混搭蕴含优雅复古气质的墨绿,打造出极具生活感的时尚气息。

原客厅上方挑高空间被隔出二层的套房,客厅多出了两个横梁。为了解决这个问题,设计师别出心裁,将吊顶做成现代美式风格中较流行的九宫格设计。中心灯具选用跳跃的玫瑰金欧式古典吊灯,打造出天花板白色线条中的亮点。

客厅的格局偏长较窄,便特意在沙发背景墙打造立顶靠墙的收纳柜,拉近客厅距离,增大空间收纳,同时遮挡楼上排水排污的管道,提升空间美感。

客厅与其他空间进行台阶错层,形成高低不同的空间立体感,让整个家更加有设计感。

餐厅与厨房相连,空间延伸、相互借用,令整体空间更加通透明亮,采光度也大幅提高。

黑色大理石餐桌搭配墨绿轻奢餐椅,彰显居者气度与待客礼遇,在这里会客聚餐、娱乐休闲,都能从容有度。餐边柜选用白色木饰面,清清浅浅中呈现出现代美式风情,颇有质感,还满足了收纳需求。

厨房白色的橱柜与餐厅餐边柜、客厅收纳柜相呼应,厨电嵌入其中,完美隐形,聚合中西厨两种功能。

中岛台半边悬空,将料理台、吧台合二为一,不仅延伸厨房功能、增加收纳空间,更方便一家人围坐在一起做饭聊天,增强家庭互动。

为了提升厨房的明亮度,洗菜池一侧橱柜中间墙面开凿出两扇采光窗,外连后庭院,让室内空间与大自然亲密接触。

主卧的设计淡然而素雅,床头艺术画、银色美式床具、藕粉色布艺沙发、玻璃双层茶几、素色地毯,都营造一种轻松纯粹的格调,目光所到之处,又能被其散发出的艺术魅力所感染。

主卧旁的房间狭长,于是被装修成为II字型布局的衣帽间。挂衣区、叠放区、鞋包区等不同的收纳区域井井有条、干净整洁。梳妆台沿用床具的美式古典风格,椅子上坐垫的墨绿色又与一楼的软装色调遥相呼应,构造家居自然和谐感。
满足业主一家对于居家功能和生活质量的丰富需求,地下室空间设计了多个功能房。

会客厅作为男主人接待朋友或事业伙伴的专属空间,在装修风格上更加厚重沉稳。全屋通铺暖棕仿古砖,细心切割四角星形砖穿插点缀,再结合黑色铁艺吊灯和美式沙发,纯正的美式复古风情扑面而来。

墙边放置收纳格子,这个角落又变成了孩子们的“秘密基地”,获得的荣誉奖杯、常看的书籍、常玩的玩具,都在这里“栖身”。

不浪费车库上方空间,隔层打造出一间K歌房。全屋原木色调,木质吸音板上墙,搭配柔软沙发和摇椅,让家人在家也能沉浸式K歌,放松身心,愉悦生活。

宽阔的运动房沿用了美式风设计。保证运动效果,运动区域采用墨色运动专用地面。同时为了缓解地下室的压抑感,天花板吊顶采用白色栅栏式设计,营造空间的开阔感和呼吸感。

阳台花园为两层挑高的空间,上层玻璃墙和玻璃屋顶让让阳光无遮挡地撒入空间,下层木色横向围栏上墙,搭配同色仿古砖,丰富空间层次,增加活跃感。
