沿海浙商靠着生生不息的浙商精神富甲四方。当有了财富,有了头衔,有了权力之后,那么还追求什么呢?业主对事业精益求精,对生活精雕细琢,同时对美有强烈自我主张,注重舒适高于奢华和自然情怀。也希望通过别墅的打造来传承贵族的精神,同时也凸显业主的涵养与品味

地下室原始结构图

地下室平面图:地下室原始结构方正,但是隔间比较多,不够整体,无法凸显大气。所以团队做了整体的规划,定位为娱乐会客区域,特别是南边,重新规划成家庭影院、台球室、酒窖。同时北面考虑家里车比较多,做了重新调整,可以停放4辆车。

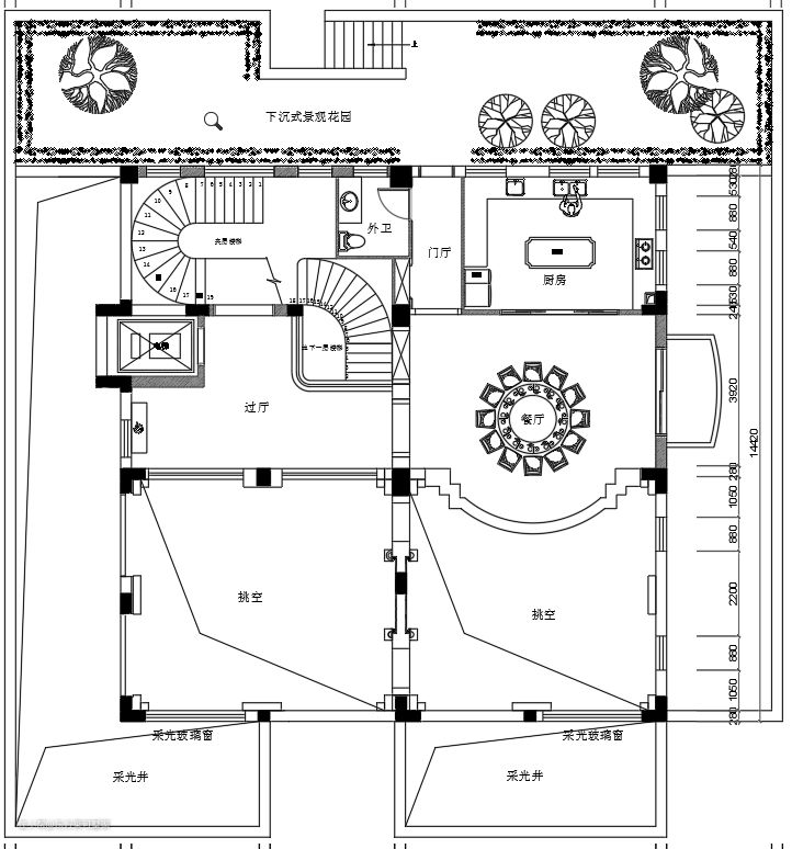
夹层原始结构

夹层平面:夹层没做过多的调整,整层定位为用餐区

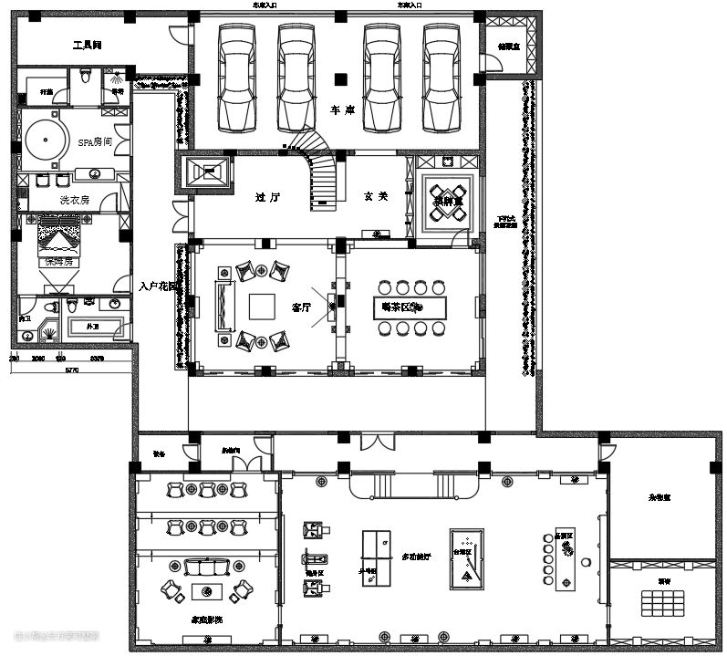
一层原始平面

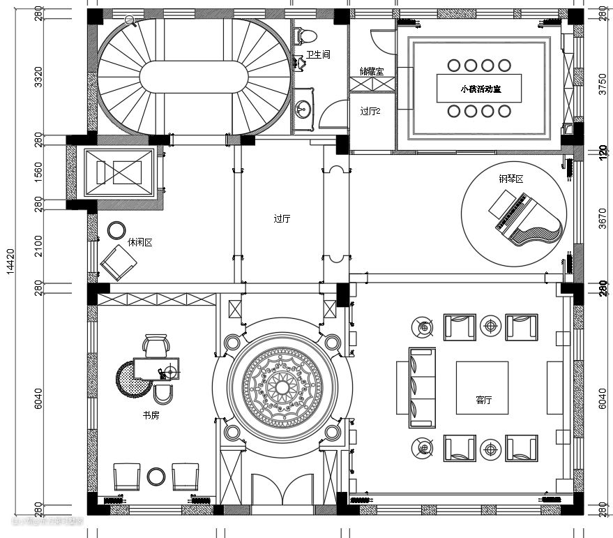
原有的建筑楼梯与电梯井的尺度与位置不适合使用,改造后将电梯和楼梯的位置都移到了一侧。增加了空间的舒适度。此外进门后整体空间比较大,团队合理的做了规划,通过玄关的一个手法打造,两边分别为书房和客厅,使得整体相贯通又显得大气。

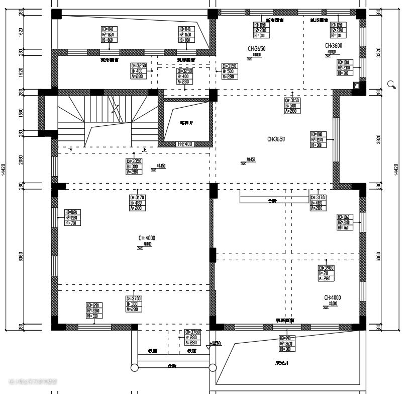
二层原始结构

二层平面:二层主要做了重新规划,考虑了两个主卧套间的打造,方便日常的生活

三层原始结构


装修前

装修后

推门进入一楼,映入眼帘的门厅能让你感受到府邸在现代时尚和其蕴含的历史之间的对话,花团锦簇的百合花地面拼花,寄寓着业主家族的未来,繁荣昌盛。高雅的居住内涵由内而外,彰显出家族精神的传承。

万神殿的穹顶,宙斯神庙的四根大柱,在岁月的淬炼与法式的文化传承下加入时尚元素。整个门厅以穹为顶,以圆为底,聚风聚气,意为富贵不断,生生不息。空间四方,以欧式经典罗马柱为支撑,气势恢宏,配以整个氛围,营造出有底蕴而雍容华贵的贵族之府邸。

领袖人群随着财富的积累,开始为自己的No.1寻找生活方式的匹配,来回应逐渐趋向圆满的人生。门厅的右侧是一楼的客厅,开放式的客厅时尚大气,于不经意间传递出业主的品味和涵养。

BentleyHome(宾利家居)——居拥奢华,坐享极致。百年来一直以全手工传承贵族血液,完美的契合对于财富的极致尊重。客厅选用宾利家具完美的与空间气质相契合。

客厅结合顶层人士向往尊贵舒适的生活方式,通过对家具尺寸与布局调整,延续了无可比拟的开阔感,为高阶人士打造专属的精神领地,尽显顶级奢侈品般的精致设计感。

门厅的左侧空间,团队特定设置为行政书房,用于日常的行政办公和阅读。设计团队之所以考虑在此设置,是考虑到当有人来处理办公事务的时候可以谈完就直接走,区分生活和办公区域,使之互不打扰。

在书桌的选择上选用了TURRI的书桌,有别于传统的办公桌单一且单调,而是呈现奢华如艺术般的生活方式,于无声处凸显业主的品味。

高山流水觅知音,轻轻弹起,音乐的魅力,文化的熏陶,在精神世界里,贵气得到升华。地面的大理石拼花如流水又如音符悠扬,与空间的气质无比契合。

钢琴是尊贵身份以及艺术修养的表达,更是对美好生活的一种向往。钢琴区设置在客厅和孩子活动室之前,当孩子弹起钢琴,那是业主对子女的期待,也是修养和内涵的一种传承。

在孩子的活动室位置的选择上,优先考虑孩子空间的舒适性以及安全性。团队将活动区域设置在采光通风良好的区域,将光线自然的引进室内,柔和的阳光洒在孩子身上,是一种家的安心触感,一种温暖的满足感,亲近自然,满足孩子对世界的探索与好奇。

同时设计从成人考虑的安全性、儿童使用的体验感双重需求出发,从动线和材质上满足安全性,让儿童处于家长的视线范围之内,即使坐在客厅也能看到孩子们的一举一动,完美的解决了安全与舒适性的问题。

夹层的厨房打造成西厨,西厨与岛台的完美结合表明业主是对日常饮食有着特殊的要求,所以厨具一定齐全,追求一定极致,白色的橱柜使得空间在视觉上变得更大也显得更加干净利索,灯光的营造、厨电的形态、橱柜的渲染,这种悦己的生活态度不能不说是一种境界。

餐厅设置在夹层的挑空处,视野开阔,用餐氛围浓郁。以优雅礼遇生活,刺绣精致的桌布,品质至臻的餐具,就餐时光仿佛梦回唐顿庄园,演绎生活的仪式感。

餐厅传递的不只是用餐的礼仪准则,更在于传达一个人的阶级风貌和显赫气度,真正的优雅源自于内心和灵魂的高贵。在此用餐,仪式感刚刚好,温馨感也恰到好处。

地下室区域定位为会客功能区,由会客厅、茶室、娱乐区、影视厅、酒窖等组成,深度挖掘精睿阶层文化内涵与精神诉求。大宅的地下室,留了一个偌大的空间给业主,交友,悟道,放空自己。

5.3米高的地下挑空会客空间,身处其中能获得精神与心理上的放松。客厅上方的水晶吊灯与地面的大理石拼花遥相呼应,让观者感觉到空气在流动,空间在转换。在这里分享生命的传奇、交换事业的甘苦、迸发活力与激情、拓展事业的社交版图。只有站在同样的高度,生活的价值与品质才能促成彼此交流睿智的话题

以“定制化”和“舒适感”,将时尚与轻奢巧妙融入家的每个角落,突显细节的品质感,通过对有限时间与空间的提炼,享受时光传承的精致与价值,私享优雅慢生活。

会客厅往里走就是茶室。因为茶室整体空间比较大且高,所以在茶桌的选取上选择了整木的一个茶桌,使得与整个空间的气质相匹配,在电视机背景墙也特意做了个黄铜的背景,与旁边的两个小圆窗相呼应,自然而气派。

地下室的窗帘也选用米黄色与大理石相匹配,顶天立地的罗马柱彰显空间的大气磅礴,与朋品茗静心于此,静享悠然时光。

真正的奢侈,不过优雅从容享受当下时代的人生百态,那是源于生活的一种智慧。主卧的打造是在对极致反复的探索中,通过舒适度的最大化与精神层面的自由释放,祝愿业主在未来的每一天享受生活的尊贵与雅致,感受家人的温情与爱意

主卧采用了无主灯的设计,这样是提升了整体的空间感,并用间接照明提升整体氛围,特别适合休息与入眠。


主卫也是延续了传统的法式造型。回家了,脱下战袍,换上最舒服的睡衣,走进浴室,放下高冷,就只剩下最放松的自己,泡在圆形的冲浪浴缸享受一个人的狂欢,那是最舒适也是最惬意的生活。

主卫在细节上也做了精心的考虑,在配置上也选择了双台盆,方便日常的洗漱,并在装饰镜旁配备了化妆镜,很贴心。莎安娜大理石的墙面与地面五角星拼花,加上翡翠绿的台面,让整个空间显得大气又不失精致

自然、自信是现代女性的标签。女儿房也是采用了套间的形式,紫色,给人高贵典雅的感觉。设计以时尚、个性的态度,诠释现代女性无惧时间和外界侵袭,在自己的王国里尽情绽放秀美瑰丽的魅力。


紫色的电视机背景墙与床头背景墙一致,首尾呼应,在壁灯的照耀下,犹如闪耀的紫水晶,闪闪发光。白色的电视机柜个性且设计感十足,无形中显示出女儿的个性与品味

楼梯作为嫁接垂直空间的构件,被设计团队设计成一个艺术品,伴随光与影的旋转,以有序的节奏盘旋而上。木色的扶手温润,金属的栏杆充满质感,在水晶吊灯的照耀下,有强烈的视觉温度。

楼梯承载着上升与延展的空间感,墙面白色的木饰面与白色的大理石踏步浑然一体,使得整个楼梯间显得宽敞大气




1、说说是什么给了你灵感,打造出现在这个作品的? 客户对于法式文化的追求以及对于贵族文化的青睐,所以团队量身定做“卡萨新贵“的主题”——让洋溢着幸福的卡萨布兰卡花,绽放在新贵族之家,在细水长流里传承贵族精神,并收获着爱、幸福与成功。这也是我们对业主美好的祝福。 2、对平面布局做了哪些优化改动,为什么? 主要是对楼梯和电梯空间做了调整。因为原楼梯不够大气,位置也比较靠近中间,而原电梯位置则是放在中间,不利于整体空间的布局和规划。所以设计团队将楼梯放置在北面,将电梯井的位置也移到西面,这样使得整个别墅的空间利用率提高而且舒适性也大大增加。 3、为了满足客户的个性化需求,你在设计过程中做了哪些事情? 因为业主对于欧洲的贵族文化有特别的感情,所以团队特意3次奔赴欧洲各国去深入了解贵族文化和骑士精神,以便能用更纯粹的设计去呈现客户对于墅家的期待。