方案解析
本案为145平米的精装房改造,一家三口加一只贝灵顿梗。业主平常上班都很忙,双方对原有开发商的设计不太满意,房间太小,收纳空间不足,没有档次,后期改造需要尽可能多的收纳空间,女主人衣服非常多,喜欢浴缸,养宠物。在本设计过程中通过平面优化给业主带来惊喜,后期设计效果图更是以现代简约的调子,给业主营造出一个时尚简约、简洁大方又温馨的家。 原先的开发商交付的精装房非常的素,除了基本天花墙面地砖外都有没做,于是业主联系到我们,想要对房子重新做装饰设计。

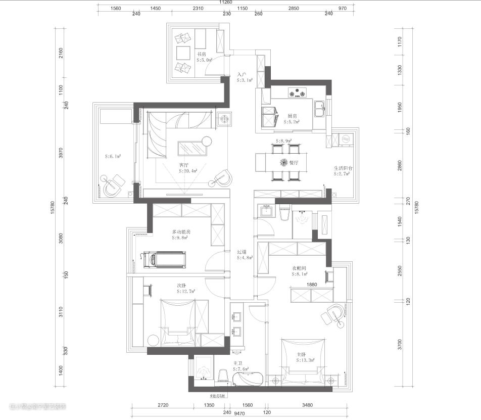
▼设计布局平面图 本案原本的空间结构不做大的改变,只对一些装饰布局上做设计变动,房子原先有两个阳台,业主想要宽阔的客厅空间,在与设计师沟通后选择将两个阳台全部打通重新铺砖,餐厅位置重新定制储物柜和吧台,利用好每一处空间。

3D全屋

客厅
▼客厅原貌 原本的房子不做天花,在天花沿着墙边做灯槽,隐灯的设计咋一看还不错,但是开槽太大容易藏污纳垢,业主也很不喜欢,并且计划做中央空调,天花是要重新设计的。

▼改造后的样子 天花不做吊顶,而是在边檐做半圈线灯,中央做三筒射灯保证主要区域的照明;客厅墙面做浅灰色金属墙板,电视机背景墙使用同样风格做一套橱柜,使用与格调都非常完美。



餐厅
▼餐厅原貌 餐厅原先空间过小,还有一个小小的阳台,实用性上就小了很多。

纵向空间做了拓展延申,增强空间上的纵深感,在墙面做储物柜,合理利用每一处空间,定制的储物柜,也符合整体的 色彩格调。

餐厅窗帘导轨设计在墙面后,这样天花视觉上整体和谐一致,窗帘离地1cm左右,这样做可以把房间的整体视觉感拉高,更加简约统一。


厨房
厨房布局L型,一侧作为操作台,按次序安排了“洗、切、炒”,动线合理不会来回跑。

主卧

次卧

卫生间

衣帽间

