
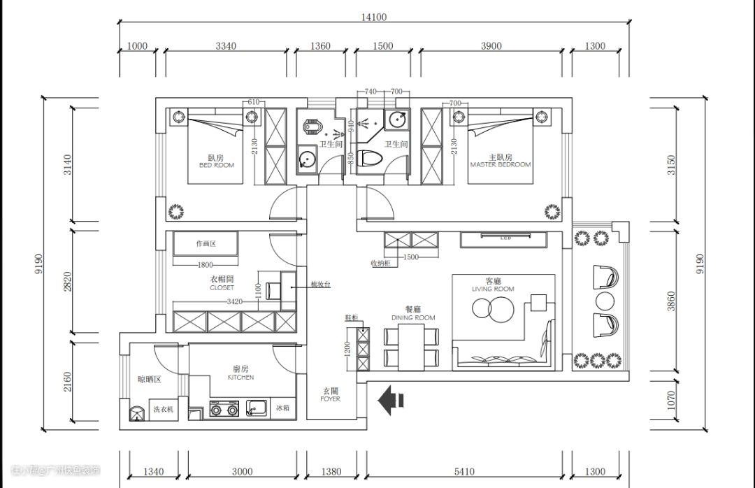
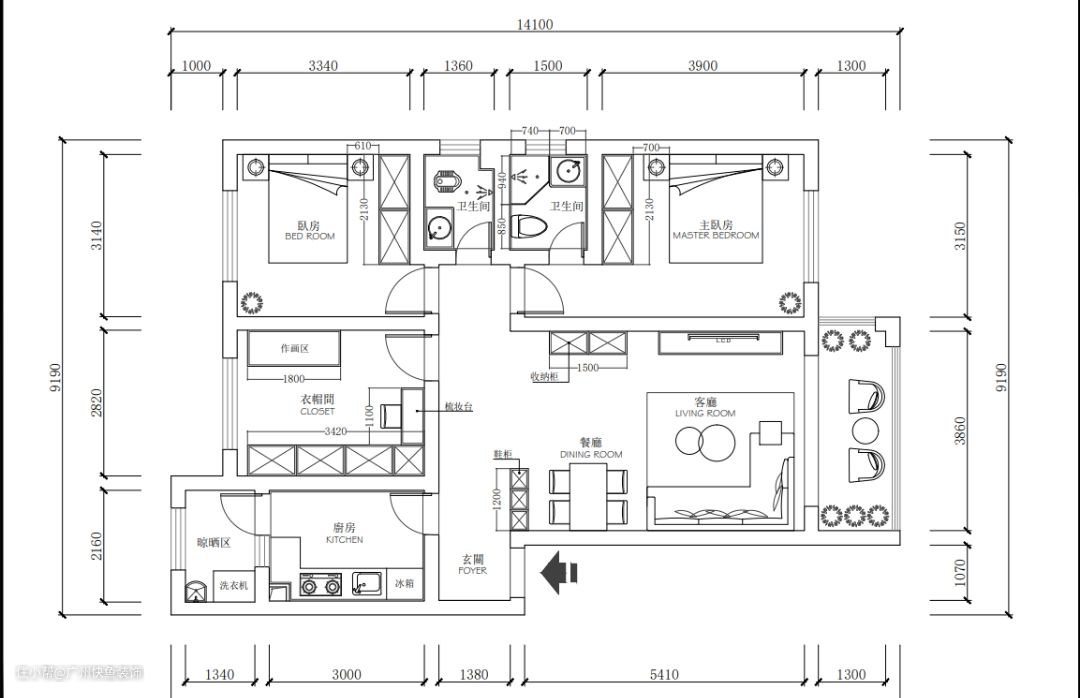
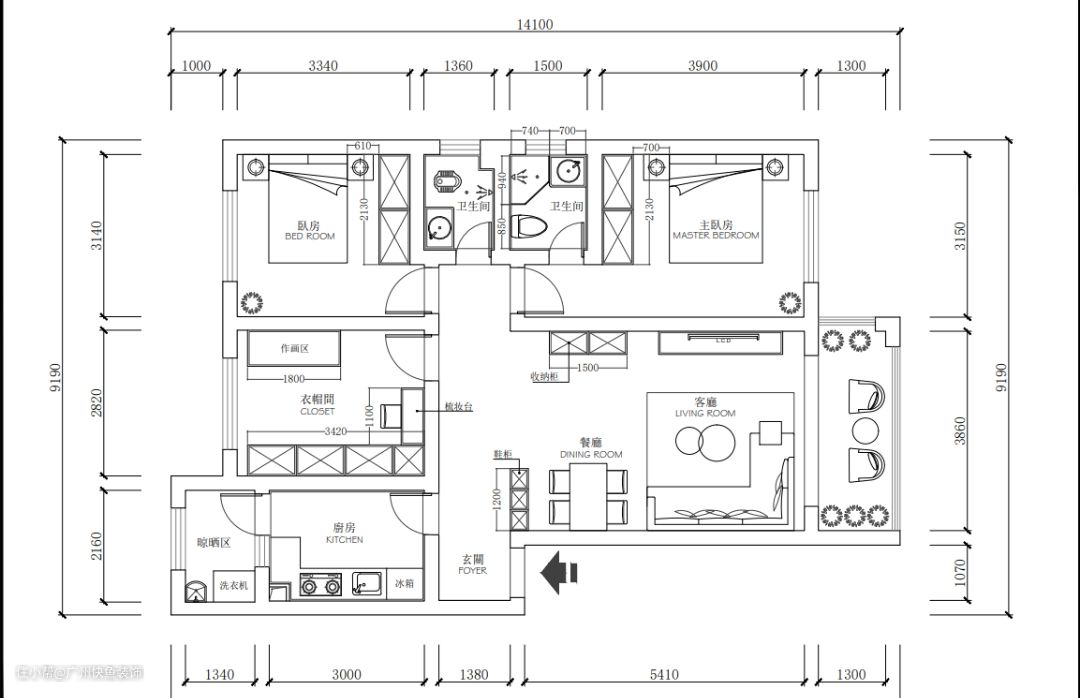
这是业主家的户型图,整体户型比较方正,三室两厅两卫,建筑面积105平,套内90平左右,整体没有做多大改动,只是把玄关和厨房间的墙抠进去了一半做嵌入式鞋柜,再把小阳台和厨房之间的墙拆了打通扩大厨房面积。

门就是鞋柜,把厨房墙抠进去做了鞋柜,鞋柜还是符合整体基调的白色,鞋柜最下面留了空,方便换鞋,这样能让玄关更整洁。

拍个案例都吃了一把狗粮,这是男主人写给女主人的定情信物,被很好的保存下来并且带来了新家继续见证他们的爱情。

客厅是一个大的开间,光线很好,餐客一体,简单的原木风,大量留白,简单干净的感觉!吊了边顶,不占层高又可以安装射灯,吸顶灯用了极简的款式降低存在感,浅灰色地砖,整体就是很简洁的风格。

电视墙也是简单留白,因为业主不喜欢繁杂元素的堆砌,所以就是大白墙,觉得大白墙最耐看,别的电视墙容易过时和审美疲劳!电视柜是定制的,原木悬空极简电视柜,抽屉容量大增加收纳空间,也方便打扫。


很有艺术感的一幅画像

简约的大白墙搭配浅色系的沙发,为了加强一些色彩,业主特地选了;两个颜色较强烈的抱枕。

业主平常比较喜欢泡茶和泡咖啡

拱门落地镜也放在客厅,方便随时照镜子,被照料的很好灿烂盛开的鲜花。

厨房还是和整体风格呼应,用了原木.黑.白的配色,厨房和小阳台打掉了隔墙连成一体了,瞬间厨房就变大!

磁吸刀架很好用了,上墙省空间,我买的是宜家的,闭眼入不后悔

免打孔置物架也是很方便啊,基本都是买白色的,显得整洁干净!

位置都是测量预留的,所以物品的摆放刚刚好,不存在浪费空间的问题存在。

冰箱侧面粘了磁吸的置物架,放保鲜膜和厨房用纸,省空间小能手

主卧也是采用比较简约的风格

床头一边是壁灯,一边是吊灯,都是水磨石系列的, 床头的灯一开始就是打算壁灯吊灯这样不对称的设计的,觉得规矩中又有碰撞的感觉。

主卧的衣柜是全屋定制的,把手和鞋柜的把手一样是原木色,玄关的是圆蘑菇,卧室的是竖长条,和而不同的区分了鞋柜和衣柜。

业主说其实更经常用的是这套蓝色的床品

床和床头柜是白橡木的

因为化妆需求不大,业主对化妆台没有太大的要求,这套桌椅也是从出租房搬过来的,没想到和卧室整体风格还蛮搭的。

主卫和次卫都是安装了圆镜,浴室柜也是原木风格的,陶瓷的质量和光泽也很赞,台盆一体,台下盆,台上盆虽然颜值高但是不易清洁,所以还是老实选择台下盆吧!

整洁统一的白色看着非常养眼。


客厅和阳台之间是通的,没有加隔断,这样显得空间更开阔,采光也更好。

阳台一边是置物架一边是洗衣机,置物架上放了很多花器和一些小物件,最上层放书。



本来是侧卧,因为现在暂时没有这个需求,所以闲置了出来成为业主平常写写画画的地方。

全屋的窗户都换了,卧室全用的是断桥铝的平开窗,因为业主不是很喜欢防盗网,感觉安了防盗网像住在笼子里,平开窗就完全是自由的感觉,窗景一览无余啦!窗帘选的是灰色的,质感满意!

这个房间的功能暂时是给业主妈妈和姐姐偶尔来住的,柜子和主卧是一样的设计。

这张床也是业主从出租房搬过来的,因为需求不大遵循能省就省的原则。
