此案是一套房本面积为42㎡的loft户型,屋主买房时,房子已隔了上下两层,但每层都是一个大开间。房子是一家三口居住,男主是位纪录片导演,因工作原因需要经常在外地出差,非常的忙碌,女主是美食达人,喜欢在家做各种美食,他们有一个可爱的女儿,由于女儿的长大,他们在北京买了这套房,找到我们做全案设计。 房子面积虽然不大,但随着女儿的长大,需要一个独立的女儿房,男主还特别期望能给女主一个宽敞明亮的大厨房,最好能有一个一家人一起观影的空间,而女主最关心的是收纳问题,随着女儿越来越大,会有越来越多的东西需要收纳。 房子的整个装修过程十分波折,男主去了外地拍片,女主也带孩子回了老家,又赶上疫情,没有办法回京。装修的所有事情都只能远程,现场的所有事情只能由我们代劳,经常半夜还在与业主沟通,虽然辛苦,但最后业主回京,看到满意的落地效果,我们还是倍感欣慰。

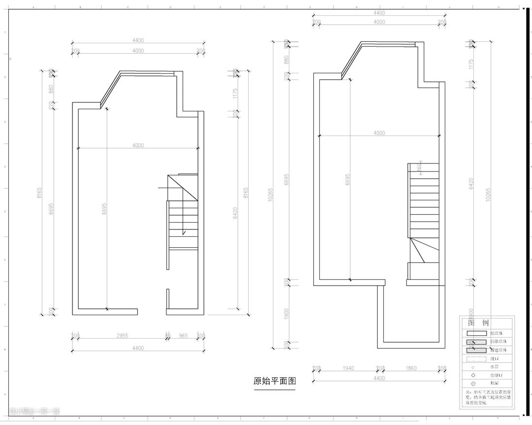
原始户型中,两层都是大开间,楼上是卧室,楼下是厨房、餐厅、客厅空间,厨房在楼梯前面的那个小空间,十分狭窄。为了做电视背景墙,楼梯被封了起来,楼梯间采光特别差,还很闷。 #原始户型 #loft户型

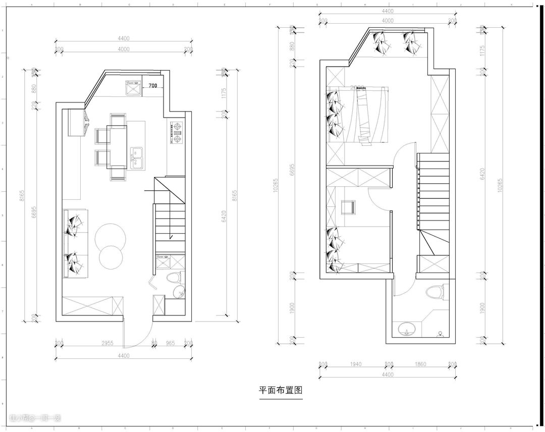
通过对屋主生活需求的整理和分析,根据现场勘查条件,我们对空间布局做了合理的规划。楼下做公共区域,餐厨做了一体化设计,设计了超大中岛,利用楼梯底部空间设计了超长轨的收纳柜,楼梯改用通透的木格栅,与楼梯底部的收纳柜一起组成电视背景墙,另外还在楼梯底部隔出一个mini卫生间。楼上作为休息区,分割出一间主卧和一间独立的女儿房。 #平面布置 #平面布局 #loft户型



房子是进门见厅无玄关的户型,为解决进出家门换鞋的需求,借用入户门一侧的衣柜侧面空间,上下做鞋柜,收纳常穿的鞋子,中间镂空,方便存放随手的小物件。 #玄关 #玄关柜 #鞋柜

客厅一侧沿墙体定制通顶的大衣柜,便于收纳大件行李和全家人的衣物。紧挨衣柜的墙上,挂了一个拱形的穿衣镜,不仅方便了屋主出门前的穿衣打扮,美观的金属线条,也成为客厅的一个装饰。 #loft #客厅 #沙发背景 #唐卡 #多功能沙发

客厅家具摒弃传统的沙发+茶几的组合,只放了一个多功能沙发和投影仪,留下更多空间给孩子娱乐。多功能沙发,平时作为沙发使用,当偶有客人留宿时,便可变身为一张沙发床,供客人休息用。 沙发背景粉刷了整面墙孔雀绿的乳胶漆,搭配这幅多彩的唐卡,给人有一种浓郁的温馨居家氛围。 #客厅 #沙发背景 #唐卡 #多功能沙发 #投影仪

客厅家具摒弃传统的沙发+茶几的组合,只放了一个多功能沙发和投影仪,留下更多空间给孩子娱乐。多功能沙发,平时作为沙发使用,当偶有客人留宿时,便可变身为一张沙发床,供客人休息用。 沙发背景粉刷了整面墙孔雀绿的乳胶漆,搭配这幅多彩的唐卡,给人有一种浓郁的温馨居家氛围。 #客厅 #沙发背景 #唐卡 #多功能沙发 #投影仪

屋主最满意的就是将原有的楼梯改造成网红踏步楼梯,踏步感应灯的设计,每当上下楼时,逐级亮起暖色的灯光,充满了温馨浪漫的氛围。 #loft楼梯 #网红踏步感应楼梯 #踏步感应灯

厨房的设计中,搭配了墨守成规的厨房设计,选择了特别适合小户型的餐厨一体化设计,让做饭、吃饭的空间相结合,不仅节省了空间,也特别符合现代年轻人的生活方式,实用至极。 #餐厨一体 #餐厅 #厨房 #loft中央岛台

在中心位置设计了超大中岛台,不但增大了厨房的可用面积,还可以增进朋友家人的互动交流感情。餐厨区域通铺了黑白六角砖,大面积的白色中用黑色点缀,充满了艺术感。六角砖与客厅地板用黄铜色金属条收口,曲折的金属线条,十分美观,也成为客餐区域的分界线。 #中央岛台 #餐边柜 #六角砖

中岛台用餐一侧,底部柜体向内缩20公分,留出放腿的空间,坐起来更舒适。台面下方安装了轨道插,偶尔在家涮个火锅更省事,也可以坐在这边办公、学习,充电更便捷。

👆女主在准备丰盛的晚餐

楼梯底部有一个仅有1.5平方的迷你卫生间,安装了折叠门,节省更多空间。空间虽小,但五脏俱全,小号马桶,迷你版浴室柜,还有个圆形的浴室镜,虽然全都是小号的,但十分实用。 #小卫生间 #小马桶 #小浴室柜

在这么小的空间内也不忘记收纳空间的设计,在浴室柜旁边的一面墙上,做了壁龛,用于存放平时的洗漱用品。 #小卫生间 #小浴室柜 #壁龛

主卧是夫妻两口的房间,没有过多的装饰,整体上简单温馨,床、床头、衣柜一体化定制,圆弧造型的吸顶灯,加上床头的两盏壁灯,暖色调的灯光设计,让在整个房间更加温馨。 #卧室 #一体定制 #床 #床头柜 #梳妆台 #吊灯 #壁灯

女主特别在意空间的收纳能力,在主卧我们也规划了超大的收纳空间,在中央空调的出风口下面嵌入了整面墙的通顶大衣柜。在阳台定制了榻榻米,不仅可以坐在上面悠闲的晒晒太阳,看看书,底部也有很大的收纳空间。另外定制的床体也要超强的收纳能力,可以存放换季的衣物等。 #卧室 #榻榻米 #衣柜

利用一侧床头柜还为女主设计了化妆台,将床头柜和梳妆台合二为一,方便实用,虽然空间不大,但丝毫不影响女主将自己打扮的美美的,将日子也过的美美的。 #卧室 #床头柜 #梳妆台

利用一侧床头柜还为女主设计了化妆台,将床头柜和梳妆台合二为一,方便实用,虽然空间不大,但丝毫不影响女主将自己打扮的美美的,将日子也过的美美的。 #卧室 #床头柜 #梳妆台

相比楼下的迷你卫生间,楼上的卫生间更宽敞,悬空的岩板一体浴室柜、智能镜柜、独立淋浴房,以及智能马桶和壁挂马桶等一应俱全。 #卫生间 #岩板一体浴室柜 #悬空浴室柜 #淋浴房 #壁挂洗衣机 #智能马桶
