今天带来的案例是鑫友装饰设计的别墅实景案例解读,房子位于沈阳市,整体风格偏现代风格,设计上风格比较沉稳舒适,大面积的别墅更要做好空间的利用率,既要实用美观有个性,而且还要温馨一些,不那么空旷,下面让我们来看看吧。


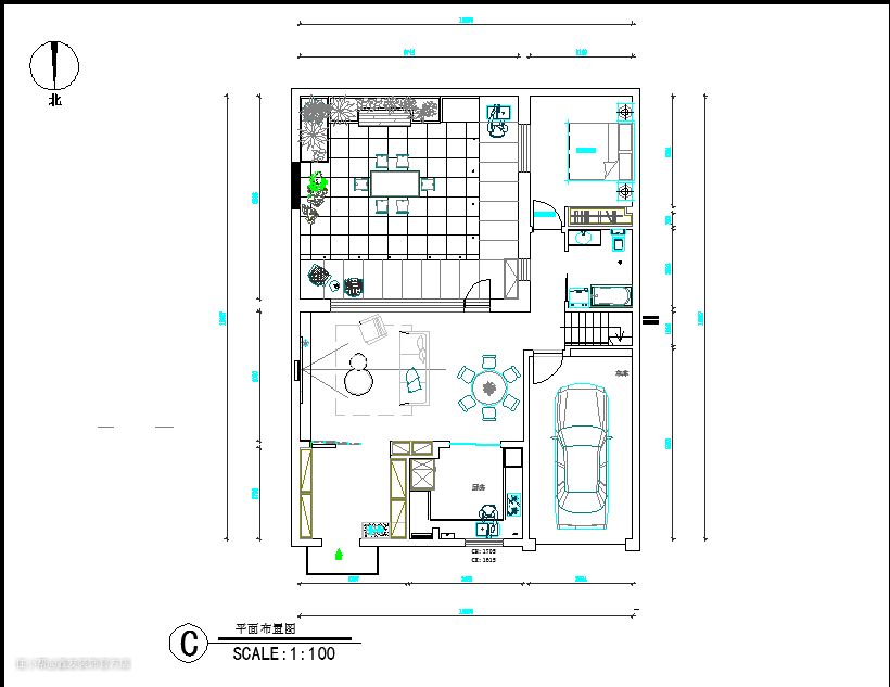
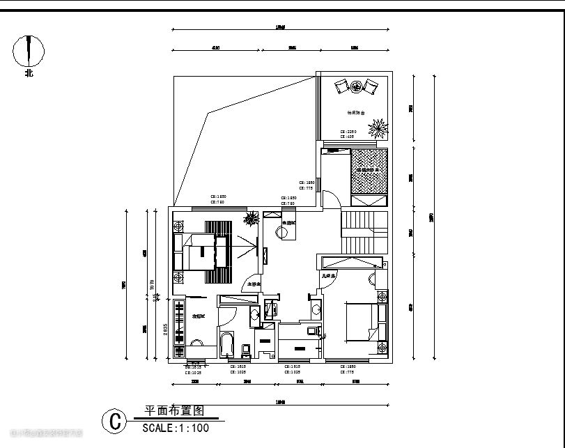
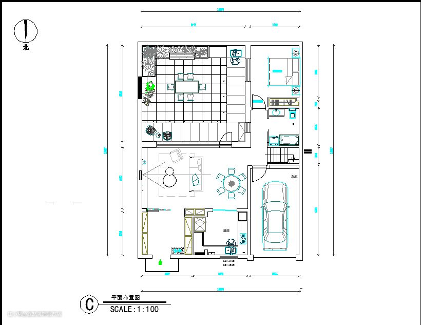
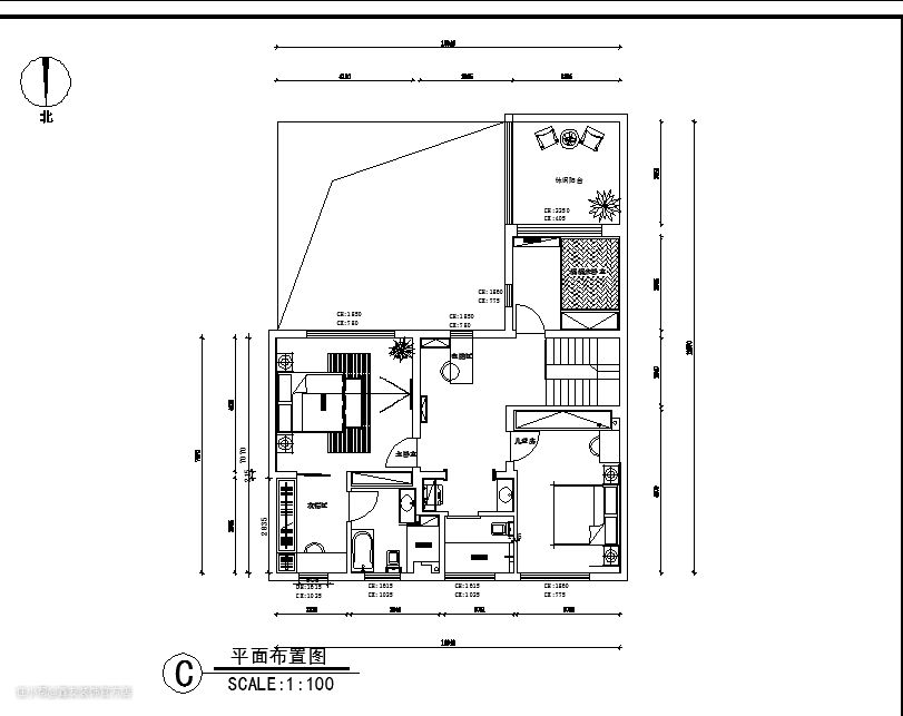
户型分析:别墅的面积比较大,这个户型的布局还是很合理的,动线上基本不用做过多的改动,车库直接入户,厨房餐厅客厅庭院,动线距离都非常合适。


别墅的客厅紧挨小院,非常开阔,大大的落地窗,阳光充足,非常的舒适温馨,一部分空间打造了一个展示柜,可以放一些酒,收藏品,展示着业主的收藏。


电视背景墙选了比较高级感的木格栅+背光灯带+大理石的组合,很有感觉,沙发茶几也都是选择了沉稳一些的配色。



餐厅面积比较大,正好预留了餐厅的位置,临近厨房,选择了圆桌,更有家的团聚的感觉。


厨房的面积超级大,可以容纳四个人同时操作,这也是喜爱制作美食的人非常喜欢的厨房了,大面积的厨房吊柜储物空间也不能少,多少的锅具都能放得下。

配色上延续了整体沉稳的风格,黑色灰色主配色,烤箱蒸箱,热水器,当然一个都不能少。

一楼老人房,贴的壁纸,暖色调,能够让人更加放松,更好的让老人进入一个好的休息的状态。





这个空间临近露台,可以设计成书房,也可以做一个客人房,或者保姆房,增加了空间的功能性。


卧室设计风格比较时尚一些,色彩搭配上活跃了一些,灯光设计筒灯加灯带的设计,让灯光更加的柔和一些,没那么刺眼。





主卫面积比较大,做了单独的淋浴房,还有空间做了大大的浴缸,睡前泡个澡结束一天忙碌的工作,很舒服。


次卫也做了玻璃隔档,很好的做了功能分区。




小院也预留了水槽,烤炉,方便日后在院子里烧烤,朋友聚会,铺设的石板看着很舒服也方便打理。

小院铺贴了石板,在墙边留出花坛的位置,可以种植很多喜欢的花草树木,当然也可以种一些蔬菜。

