这是一套老房改造的案例,作为婚房使用,业主夫妻俩平时就是比较文艺复古的青年,女业主更是特别喜欢穿旗袍,所以方案之初就很明确要美式复古的风格,希望新家能呈现出想象中的复古流金岁月。#美式复古#老房改造#福州装修#老房重装

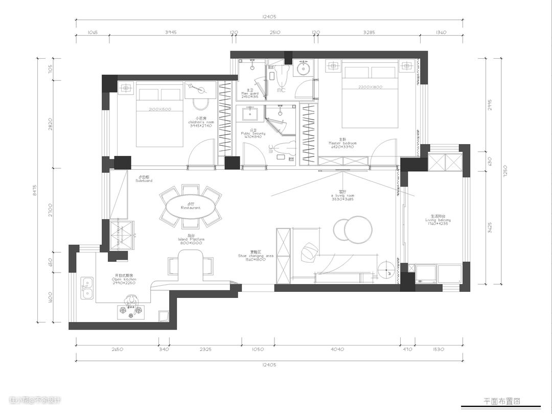
业主诉求: 1、尽量在影响采光的情况下,去增加独立的换鞋柜,原户型只能在户外进行换鞋。 2、原房主装修的吊顶过矮,希望能通过整体设计,去调整整体的视觉感。 3、原房主装修太过欧式,希望以局改的方式,让整体空间偏向美式的氛围感。 4、在原本户型中能不能增添个吧台桌,希望能多点二人空间。

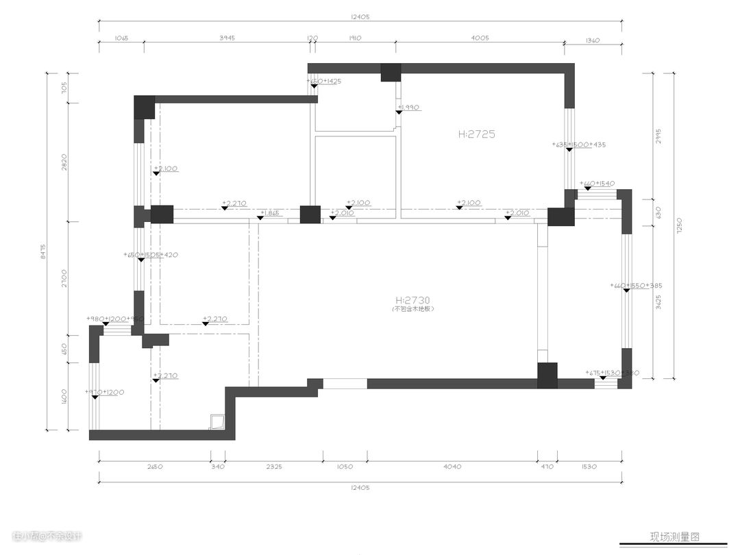
业主诉求解决方案: 1、以建筑结构左右两边,均为采光点的情况下,我们最好把鞋柜的区域放置于户型的中间,因为是长条型户型,在采光不足的情况下,尽量避免遮挡住光线,也达到了遮挡入户一眼看穿的感觉,形成增加鞋柜的同时,也能有效的遮挡住客厅区域。 2、原建筑梁位大部分以十字梁为主,通过设计曲面造型,从十字缝中形成挑高,从而使原本平整的低高度,以曲面造型让整体空间间接挑高,曲面也会让整体空间比较柔和。 3、拆除原先的吊顶以及相关的旧石膏线,后续我们以棕红色以及墨绿系色去压低整体氛围感,用点光去点缀空间,突出局部的氛围去达到业主期望的美式感,部分空间用海基布为底,带上色彩突出点缀点,再从灯具上选择带复古纹路的材质,尽量去贴合后期呈现效果。 4、在原厨房不改动的情况下,我们设立了边柜,形成吧台桌的形式,达到了业主的预期,同时增加了一排矮柜去承接原厨房的台面,以及小零食的储物空间。 #户型图#户型改造#平面户型图#


#装修前后#效果对比#

入户右手边即玄关,设置顶天立地玄关柜,拥有充足的鞋子收纳空间。#鞋柜#胡桃木#

中间设置套格,可以随手放置手上的快递钥匙等,中间用玻璃替代木板,增加透明感,让光线透过玻璃呈现若隐若现的效果,提亮整个门厅。

玻璃选用80年代复古经典款海棠花压花玻璃,在老房子的窗户上经常能看到这样的玻璃,浓浓的年代感,为木质家具点睛。

对比现在主流的日式风、法式风,美式复古算是在比较小众的,所以软装部分很多实体店都买不到合适的,得到这两张餐椅也是一番波折。#美式餐厅#复古餐厅#烛光晚餐#

业主特地挑了纹路,再根据身高定制了这两把餐椅,等了将近20天,雕花图案+木质感的搭配也更加呼应整体风格。#美式餐椅#复古餐椅#雕花椅#

桌布与吊灯对于整个餐厅来说简直起到了画龙点睛的作用,让整体都是复古调的色彩中加入一丝艺术气息,既有艺术感,又有复古感,仿佛回到欧洲中世纪。#复古桌布#复古吊灯#花纹桌布#

餐厅摆放了两张餐桌,小的作为日常使用或者两人的烛光晚餐、咖啡下午茶等,朋友聚会或父母偶尔过来住就可以用大的餐桌。

桌上一盆红色冬青,还保留着结婚的喜庆。

在此次老房改造中,原始的木门就是美式风格,非常古典厚重,与整体的设计非常匹配,我们将其保留不做改造,门套对称的叶子雕刻造型独特,门上拱形轮廓线条包围勾勒,雕刻复古花纹装饰,带有浓厚的古典色彩。

墙面选择了有立体花纹的海基布铺贴半墙,再对比色卡刷暗粉调的墙漆,墙面做石膏线墙裙,分色墙区分上下层,顶部做一圈石膏线造型,墙面有了质感。#复古墙面#

墙上是一盏拉提琴的小天使壁灯,将整屋的艺术气息拉满,带来幸运与美好的小天使。

家大概就是用各种各样心仪的小物件,堆出来自己喜欢的样子。

在此次改造中,厨房基本不做改动,只对厨房天花板做了弧形吊顶造型,使光线如水般自如流淌,形成视觉上的延伸。

全屋使用黑胡桃木黄铜拨杆开关,高级的胡桃木面板,古朴的黄铜拨杆,契合复古的装修风格,在开关设计上小小的用心了一下,就让每一次按下都充满了仪式感。 在装修中开关是最没存在感的,软装通常要经过精挑细选,而开关只有那几种,但是其实开关就和人的眉毛一样,小小改动就能影响整个家的气质。

复古的装修里,水晶灯就像是点睛之笔,让整个客厅生动起来,加一个灯圈拼花造型的石膏底盘,与天花板周围的石膏角花相呼应,多了一丝精致与华丽。

绿色几乎是美式复古中的必用色彩,大面积绿色墙体对比照片艺术墙、棕色沙发、茶几、电视柜,以及保留下来的老房子的土褐色木地板,带来浓浓的中古气息。

复古橄榄绿窗帘搭配蕾丝帘,减轻复古的厚重,加入一丝轻快感。沙发旁的杂志柜,胡桃木+藤面+黄铜把手的搭配,打造一个有格调的复古角落。

客厅电视柜以黑胡桃木为框架,配合大面积的藤编柜门,结合木质的庄重与藤编的休闲,中间独特的拉手设计,既满足收纳功能,又兼具复古的颜值。 #复古客厅#复古背景墙#复古绿#

美式复古的风格决定了全屋定制要以深色系为主,柜体和门板都是选择黑胡桃木,纹路清晰,光滑细腻,呈现的是低调的高级感,把手配的是青古铜,在整体暗色系柜体中稍 稍点缀提亮。

主卧选择黑胡桃木实木床,款式简单大方,没有多余的设计,放进去非常和谐,完全不会有突兀的感觉。

床头灯选择了两盏复古壁灯,精致小巧的床头壁灯,调动卧室温馨的灯光氛围。

床头灯带设计,让墙面花纹更有立体感。#复古卧室#

次卧父母偶尔来住,与主卧选择同款黑胡桃木床,床头一盏长线条小吊灯,白金的配色+大白墙让次卧看起来轻盈一些,减轻胡桃木的厚重感。

睡前打开吊灯,是温馨的暖黄色调,打造安静舒适的睡前环境。

全屋定制的黑胡桃木衣柜,左侧打造几个套格,可以摆放一些纪念品或摆件。

值得一提的是卫生间洗手台的设计,复古黄铜水龙头,一圈花边图案点缀,是业主精心挑选的。柜子的抽屉圆形把手,上面刻画了上世纪流行的花纹,颇有儿时的味道。

卫生间洗漱区墙面挑选了当下最流行的复古花砖,色彩浓郁,看起来有一种异域风情,古老的韵味,在整个单调的空间中有种眼前一亮的感觉。#复古瓷砖#复古卫生间#
