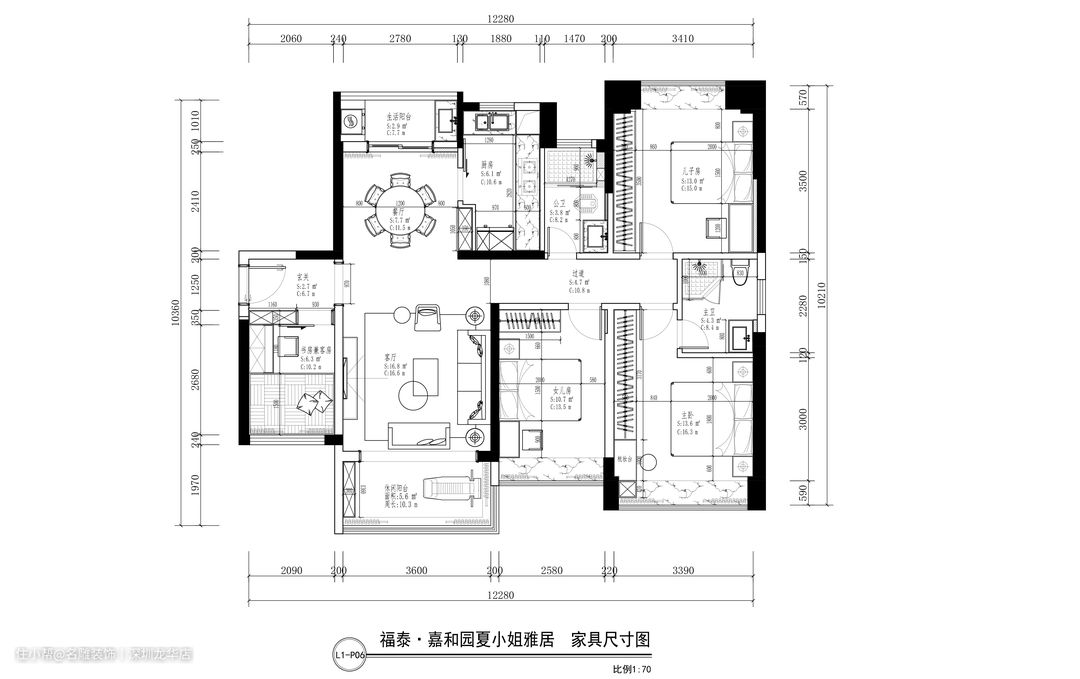
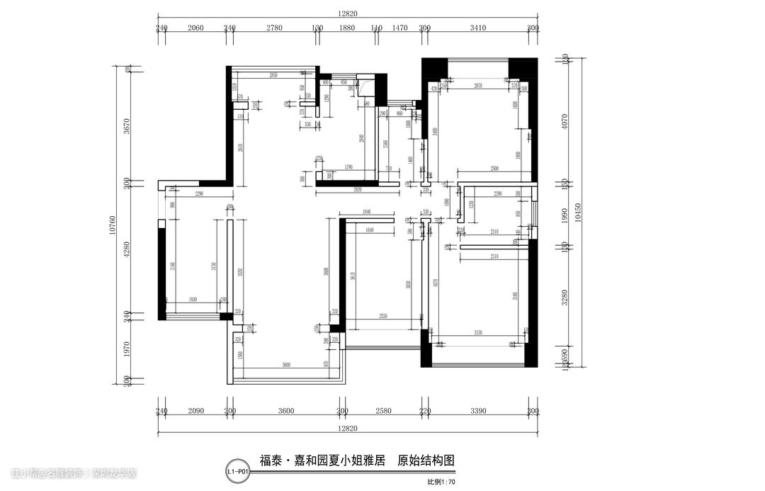
1.导语: ①本案业主平常工作很忙,对于家的期盼在于住得舒心,健康环保是第一位。 ②家居装修需要设计师与业主共同对住宅提出要求,既要满足居者的居住需求,对于一些“看不见”的生活体验则由设计师打造。 ③业主看得到的是布局、色彩、材质之美,对于难以察觉的空间细节则由设计师完善。 2.户型改造: ①本案例的户型结构没有多大的缺陷,因此按照原有格局进行合理的规划布置,将靠近玄关的空间设计成书房兼客房,微调空间动线布局,使动静区更加分明。 ②空间风格设计元素以美式复古调性为基础,整体的配色浓厚却舒适度高。


客厅,沙发背景墙以雾蓝色的花鸟壁纸打底、厚重华丽的同色系窗帘、轻奢华丽的水晶吊灯,复古装饰元素展现美式风格的低调轻奢。墙面、地面、家具、窗帘配饰通过同色系不同明度的搭配方式展现统一优雅的视觉效果。沙发一角,木质藤编沙发搭配舒适柔软的抱枕坐垫,茶几一旁的复古台灯恰到好处烘托闲适氛围。




餐厅设计简单优雅,一张复古圆桌,素雅别致的金色镶边餐具,复古用餐氛围立即提升。厨房与餐厅相连,选用餐桌浅色系的玻璃门框隔断,延伸设计搭配的统一性。餐厅一角,素净的石膏线墙壁只需一张风景挂画的点缀,便提升空间层次感。



厨房,砖墙使用白色方形瓷砖,橱柜选用原木色柜门与浅灰色的大理石台面之间完成过渡。L型操作台,冰箱位于一旁方便拿取食材,备菜区与烹饪区之间的动线流畅。


主卧,皮质床板以立体的雕刻纹理彰显复古低调感,石膏线搭配浅绿色壁纸背景墙增添空间活力。皮革的细腻与壁纸的清新结合小巧精致的台灯配饰,无不在细微处展现居者的审美追求与巧妙的设计构思。


女儿房,清新碎花壁纸、淡雅亮丽的色彩搭配,不同材质在充足光线的交叠中,慢慢复苏纯净活泼的视觉张力。


男孩房,空间布局规整简单,淡蓝色的空间配色,纯净自然。花纹复杂的香槟色床头柜与原木色地板和谐搭配,彰显沉稳气质。


卫生间使用干湿分离设计,使用了简洁的白色瓷砖,淋浴区部分使用圆弧形的金属挡水条避免积水蔓延,吊顶采用与瓷砖同色系的集成吊顶。厚重质地的木质浴室柜搭配浅灰色的大理石洗手台,镜柜预留一定的宽度,可用来收纳零碎生活用品。

马桶 800-2200元 排风扇 150-500元 水龙头 高端 400-1000元 标准 80-200元 硅藻泥 150-400元/桶
设计风格:现代美式 户型面积:120㎡-四房两厅 主创设计:惠阳分部-董鸿林/童超 设计团队:惠州名雕装饰 设计理念:对于家的期盼在于住得舒心,健康环保是第一位。
