男屋主从事教师行业、女屋主从事新媒体行业,两个人对审美都有一定要求,而且很愿意接受新鲜事物。 对于设计的风格,两人都喜欢结构简单的家,在硬装上偏向于现代风格,但是在软装上,屋主喜欢的大多都是复古元素,在硬装和软装上的风格差别以及房屋的异形结构,形成了独特的混搭风格。

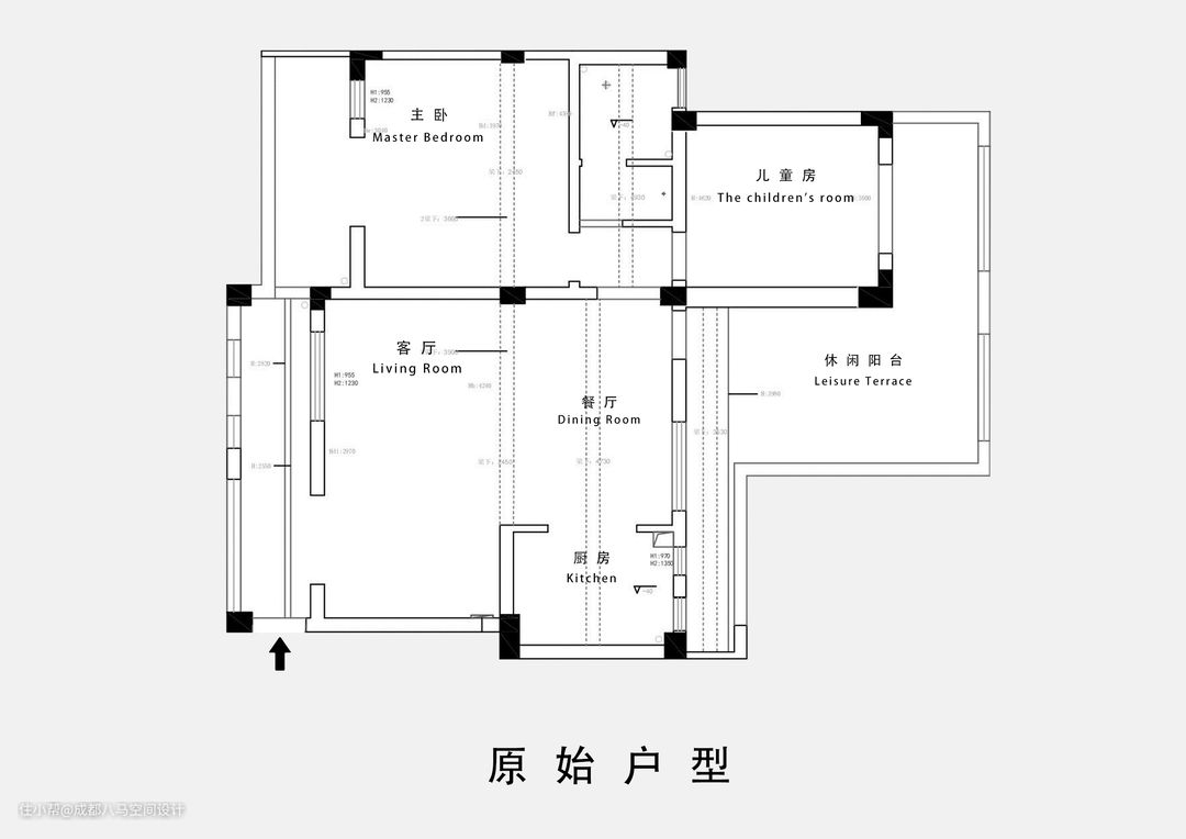
● 原始户型分析 ❶ 入户、客厅、餐厅、厨房的动线是阶梯式的,日常生活中会有些许不便。 ❷ 入户处、卧室都存在止水梁,并且卧室还有突出的承重墙,这些对设计都会产生一些影响。 ❸ “N”字型阳台,空间使用率不高,后期设计可能会把它划入其他区域。 ❹ 客厅和卧室的斜面顶,对于吊顶的施工、灯具的安装会带来一定难度。

● 改造要点解析 ❶ 考虑到屋主是东北人,根据他们的生活习惯,在入户处借客厅的空间做了入户的鞋帽间。鞋帽间原本只需要做门洞,但考虑到屋主家有养猫的习惯,屋主担心猫咪会在鞋帽间捣乱,所以鞋帽间还是做了一扇门; ❷ 调整了公共区域的面积,将入户走廊、客厅、餐厅划分为“一”字型空间,优化了行动路线; ❸ 原本“N”字型的阳台,将一部分区域划分到儿童房,补充了儿童房的面积,也为其增添书桌、储物柜,弥补儿童房原本面积不足的缺点。

入户处设计了端景墙:因为有止水梁,所以用地台抬高形成一个小走廊,在地面根据止水梁的高度设计出一个凹凸造型,在墙面做壁龛做为展示柜;还需要选择高度和枝叶合适的植物将墙面和地面的造型关联起来,让壁龛、植物、地面造型形成稳定的“三角关系”。#入户 #玄关 #端景墙 #绿植 #壁龛 #展示柜 #地台 #止水梁

客餐厅是“一字型”的公共区域,阳台选择长虹玻璃的门和百叶窗,让公共区域获得更多的采光,二楼面向客厅的窗户选择拆掉,用防护网代替,尽可能地让空间保持通透,在防护网上用家庭照片装饰,形成客厅的一面展示墙。#公共区域 #长虹玻璃 #百叶 #家庭展示墙 #落日灯 业主在网上淘了很久的挂画,始终很难看到和自己契合的。和设计师沟通好颜色后,就用报纸、纱布等塑造出一个有肌理感的红色挂画。 选择豆沙色的染料,是为了柔和空间中的蓝色与绿色,让空间中的色调保持平衡。#自制挂画 #空间感

屋主不喜欢复杂的造型,设计师选择在电视旁边做一列玻璃砖,可以通过玻璃隐约看到鞋帽间,让两个空间在视觉上相互连接,能够增加视野空间,同时能够让空间保持通透感。#玻璃砖 #朦胧感 #简约

客厅是斜顶结构,为了二楼的通透性,我们选择了保留斜顶设计并在吊顶阶段对其进行了优化,虽然对于灯光的安装、位置选择、光源的选择都提升了难度,但也让原本的异形结构成为空间特色。#DIY挂画 #斜顶 #异形


餐厅选用极简工业风的线条吊灯搭配牛油果绿的餐椅,金属与复古相互交融。


餐厅选用极简工业风的线条吊灯搭配牛油果绿的餐椅,金属与复古相互交融。


卧室也是斜顶构造,设计师将其改为“人”字型的吊顶,弱化原本生硬的斜角; 因为有止水梁的存在需要做地台抬高,床的下方设计隐藏式灯带,弱化地台带来的视觉冲击,让空间更加融洽; 梳妆台上方在特定的位置选择安装射灯,能够弱化单独的开关面板带来的突兀,也能减小斜顶的光源压力。#斜面吊顶 #人字顶 #定制衣柜 #衣帽间 #地台 #止水梁 #隐藏式灯带 #卧室

卧室背景墙为了规避、隐藏承重墙的影响,形成了以储物柜+梳妆台的独特背景墙。#承重墙 #卧室背景墙 #梳妆台 #储物柜

因为地台的存在将梳妆台右面的衣柜与地台上方进行了柔性的区域分割,“天然”地形成了开放式衣帽间。#梳妆台 #开放式衣帽间


卧室用整面的定制柜可以大量增加储存空间,还能够保持空间的统一性,也有着保护墙面的作用。#整面储物柜

2.1米的卫生间相比常规卫生间高度,稍显不足。选择深蓝+白色的条形瓷砖,在视觉上拉伸层高。 上深下浅的瓷砖排列,可以让白色的地砖得到延伸,也是为了进一步地拉伸层高。

Q:装修过程花了多长时间? A:90天 Q:说说是什么给了你灵感,打造出现在这个作品的? A:最主要的是屋主想要的结构简单、复古元素,需要将现代和复古风融合到一起,这就形成了最初的基调。 Q:你对这套作品最满意的地方在哪里,为什么? A:我个人最喜欢的是卧室的“人”字顶,整体的线条感简洁、流畅,但也不失艺术感,以后我家装修的时候可能也会设计出“人”字顶。 Q:对平面布局做了哪些优化改动,为什么? A:入户处到公共区域的一个动线改动比较大,从原始户型的阶梯型变化到“L”型,动线的转变可以让路线更短、更方便。
