4+2+1是当代中国人普遍的家庭结构。高居不下的房价、繁忙的工作和亲密的家庭纽带,让作为“独一代”的年轻人不得不上孝父母、下抚孩童。 即便如此, 先说下本案的情况: 屋主夫妻,一个帅气的儿,还有屋主双方父母轮流过来住,一共6人的居住情况。 计划这套房子要住20年以上,所以3间房必不可少。关于装修喜好,屋主的要求是男孩子一定要有活动空间,杂物一定有有足够的收纳空间和学习玩乐空间。另外要方便打扫、方便做卫生。 男屋主的想法要大气,不能太老气,要简约,但不能简单。中央空调、地暖、新风、洗碗机…这些家电设备必须要有,不想以后再折腾了。

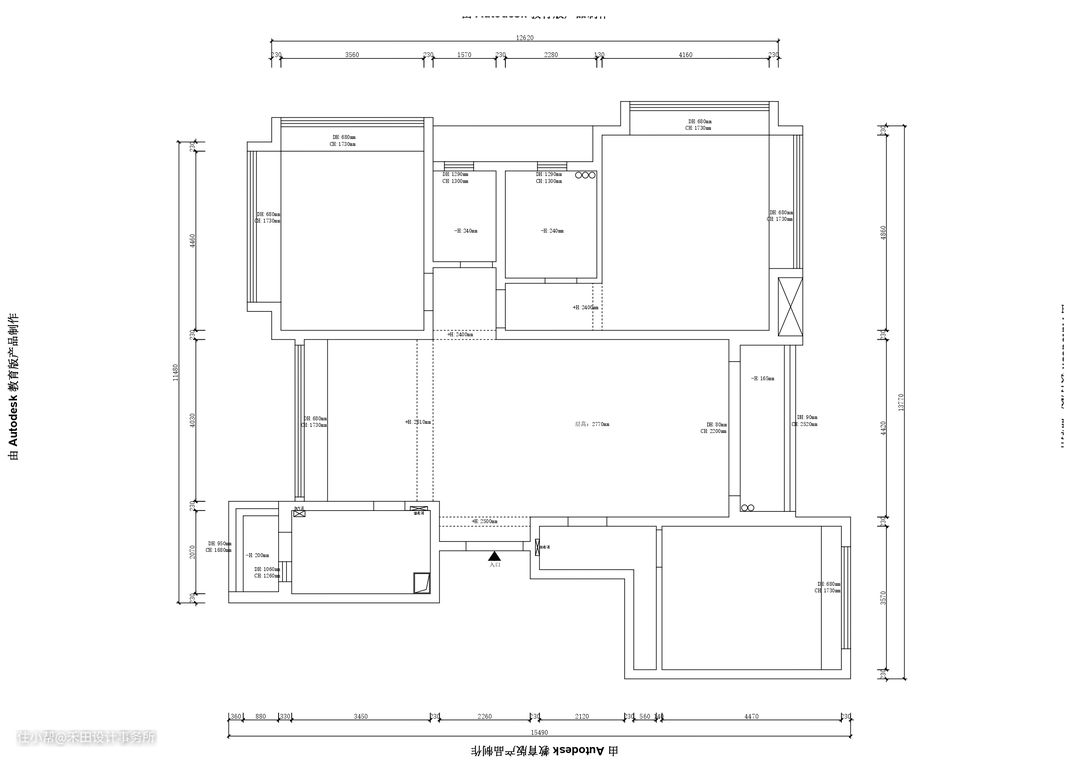
原户型问题: 1、原户型是没有玄关和鞋柜的位置,且入户直对着卫生间的门,长辈那边是不允许的; 2、餐厅深度太深,造成面积浪费; 3、开发商为了顺利交房,在入户旁做了一个很鸡肋的L型储物间,深处只能堆积东西,拿取东西不方便; 4、屋主反馈飘窗太多的问题,3个房间5个飘窗,又长又宽。

调整后的平面: 1、入户处,我们用长虹夹丝玻璃隔档了一眼望到卫生间的尴尬,且增加了收纳空间; 2、缩小餐厅的深度,但增强了动线的规划,家政动线:洗菜池--备菜台--烹饪下厨--餐桌进餐 一气呵成,而且增加出更多的储物空间; 3、将原来的L型储物间切成矩形,意外多出了一个书房,这样南次卧可作为多功能用房,休息、办公、书画等等; 4、将原本的主卫划分为干区,湿区,储物间是是三个空间; 5、客厅和阳台打通后,视觉效果更加开阔,阳光穿过落地窗透过白色的窗纱照射进来,保障了客餐厅区域的采光; 6、飘窗我们没有改动,而且做了两层窗帘,一层白色轻纱,一层厚重遮阳,这样保证了充足的阳光和减少了预算。 #平面布置图

⬆️方案沟通阶段的草图模型,可以比较直观的看到各空间的比例关系。且更清楚的看到各个空间之间的关系与链接,整个空间的形态呈长条状展开,功能明确,空间规整。

屋主需求喜好调查表

【客厅前后对比】 空间感更加立体,合理进行了收纳空间规划。 从第一次接触客户的上门量房,再到完工屋主成功入住,我们的设计师前前后后上门不下22次,只求每个阶段都能如期如愿的进行,每个阶段都能按照设计师和屋主的想法如约进行。

因为房子的原层高只有2.75米 ,再减去地暖和瓷砖的铺贴高度8-9公分,所以室内层高并不是很高,因此吊顶以平顶为主,平顶的高度做薄做到了7-8公分,同时为了让空间看起来不压抑,柜门选择一门到底,提升了原本层高的视觉感。 #现代客厅#平顶#地暖#

空间用了大量的直线条,所以在装饰上面我倾向于用曲线来表达,糖葫芦落地灯为空间增添了一丝俏皮和可爱沙发与落地灯的搭配就像咖啡与咖啡伴侣一般,大面留白的墙面,简约的白金落地灯点缀空间,瞬间提升了生活的惬意感。 #客厅 #沙发 #茶几 #地毯 #现代 #落地灯

简洁利落的线条,清新冷静的配色,感受最纯净的家居生活,透露出主人果断利落的性格特点。 #客厅 #阳台 #窗帘 #椅子 #电视柜 #电视背景墙 #沙发 #茶几 #抱枕 #地毯 #插花 #现代

硬装造型简单干净,软装配色大方且冷静,一贯的坚持家应该更具包容性,木色,白色,布艺组合起来就是舒适呀。 #客厅 #椅子 #书架 #电视柜 #电视背景墙 #沙发 #茶几 #抱枕 #地毯 #插花 #现代


柜子设计应该根据屋主的实际生活需要为主。 ✅将玄关柜主要分为四个功能区域:左边衣柜挂衣区(进门随手衣服放挂)、下方储物区(当季鞋子存放)、中间抽屉区(随手杂物)、开放格(摆放装饰物)以及上方储物区(过季鞋/鞋盒/杂物)。

▶️关于内部每层的高度,建议大家把自己家里人的所有鞋子量一下高度再来设计每层隔板的高度,不要造成空间浪费。

留白至简的格局,到顶设计的餐边柜,搭配岩板背景和台面,利用透视,空间的层次感和立体感尽显,同时打破了餐厅区域的拥挤感,视觉上更轻灵。 #餐厅 #装饰画 #餐桌 #餐椅 #餐边柜 #椅子 #书架 #插花 #现代

餐厅的上方有一道梁,在设计的时候,不想为了梁而妥协,所以保留了原本的横梁,也保留了原本餐厅的吊顶,希望每个空间有每个空间的脾性,这个吊灯是业主选的,安装上去后效果非常不错,业主也非常喜欢。

餐边柜这里安装了直饮机,所以背景选了岩板铺贴,直接跟到台面,方便打理,选岩板的时候,特意选了一块夸张的纹路为了和餐边柜形成对比,突出质感。 餐椅使用的是超纤皮革(附型号)

餐厅前后对比,同角度看下餐厅的变化。

厨房延续了客餐厅的风格,白色木色为主,黑色隐形拉手点缀,看起来干净且利落,橱柜门板选用了苹果板,既美观同时又好打理且不留水渍印。#厨房#橱柜#

关于食物的收纳,有很多业主因没有足够冷藏空间,不敢囤货,经常今天吃完,明天就要出门买菜。结合实际疫情出发,因此配备了520L的大冰箱,能冷冻冷藏储存更多的食物,既保障了食品安全,同时又有足够的收纳空间。

主卧的布局其实很奇怪,因为主卧本身是有两个飘窗,而房子又在六楼,正对着床尾的这个飘窗恰好在两栋楼的中间,对着路,风水老师来现场看过,要求床尾一定要高于飘窗才行,因此我们和业主一起商定定制了这款床,也正因为这个布局,大大的提高了主卧的储物功能,解决了业主的收纳需求。(附带主卧衣柜色板)。 #卧室 #床 #床头柜 #窗帘 #收纳 #现代 #抱枕

主卧床尾方向

梳妆台色板

主卧整面墙的衣柜,带储物功能的收纳柜,家的整洁,永远离不了强大的收纳空间。

主卧施工&完工前后对比

次卧为屋主的儿子居住,颜色上的选择相比其他房间整体的卡其色,选择了清爽冷静的黑白灰配搭原木作为男孩房的主色调。

床头处的金属圆形床头灯让卧室更精致,下方的床头桌,增添生活气息。整个空间用简约的线条和高级的颜色,打造出一个大男孩的时尚舒适卧室。 #次卧 #黑白灰 #球形吊灯 #原木 #床头柜


👏在卧室里有一个小小的学习位置,设计衣柜书桌一体式组合,非常舒适方便。 1.造型简约大方,利用空间节省面积; 2.学习时间方便快捷,可以提高效率; 3.一体组合式设计,与整体风格协调; 4.根据自身需求全屋定制,结合自身的习惯等~ (附带男孩房书桌和衣柜色板、男孩房床皮革型号)


男孩房施工&完工前后对比

南次卧是一个书房和卧室想结合的多功能用房,自疫情开始,业主便开始和自己的爸爸妈妈公公婆婆一起过年,但是原本的三房并不够住,因此将原来比较大的南次卧改为书房和卧室,中间用三联动夹丝玻璃移门做隔断,书房放置了一张沙发床,以备不时之需。#长辈房

长辈房必备之起夜床头灯 床头灯采用吊灯的形式,一方面不占用床头柜的空间,另一方面,在起夜时,通过床头的开关便可单独控制吊灯。灯的高度也刚刚好,打开的时候光线不会直射人眼。

长辈房改变入门位置,偷出一整排的衣柜收纳面积,长辈因生活习惯不同,设计过程也考虑到女主人二胎后,房间在不动硬装的情况下,依然能在未来长辈房变成二胎宝宝的房间。 #卧室 #现实 #实木 #衣柜

在有限的空间想拥有一块可以办公、储物、书架的区域,并没有想象中困难,充分利用空间,也可以打造出满足基本需求的半开放式书房 。 #办公桌 #书房 #餐桌 #餐椅 #餐边柜 #椅子 #书架 #地毯 #收纳 #置物架 #装饰画 #书法 #现代 餐边柜 #无主灯


主卫卫生间#卫生间 #镜子 #台盆 #现代

❏面积📏 主卫面积9㎡,客卫面积大概在6㎡,都是矩形。 ❏格局📐 主卫做的干湿分离。用的玻璃做淋浴区隔断,预算在这一部分是可以省出来派别的用处,一块超白的钢化玻璃能让淋浴房要漂亮。 ❏马桶🚽 从主卧软装剩省下来的预算,都贴补到了马桶上。马桶屋主一直认为在卫生间中享有极高的权重,每天都要用,并且一旦安装就不会再随意更换,所以这块屋主特别重视。

主卫推拉门完全隔开了干湿区!



次卫整体图,已尽力拍到最全,基本布局能看到,次卫不大,但还是坚持做了淋浴房,虽然浴帘很美,但还是觉得浴房干净方便,屋主实在不喜欢每次洗完澡都擦地,脚垫洗澡时才放在地下擦脚用,平时搭在把手上,不占地儿。 #卫生间 #迷你卫生间 #地毯 #浴室柜 #置物架 #小户型 #生活技能 #装修经验 #装修记录 #镜子

收纳间以转折的储物架来最大化满足这个区域的使用功能性,其中层板的分配可以看具体物品的摆放来规划。#储物间 #收纳
