✿゚本案是珠海一套毛坯房装修案例,禅意新中式,房子分上下两层,一楼170平,拥有两个阳台;地下室100平,但一楼和地下室没有楼梯联通,需要打造一条楼梯通道。

地下室原户型图:

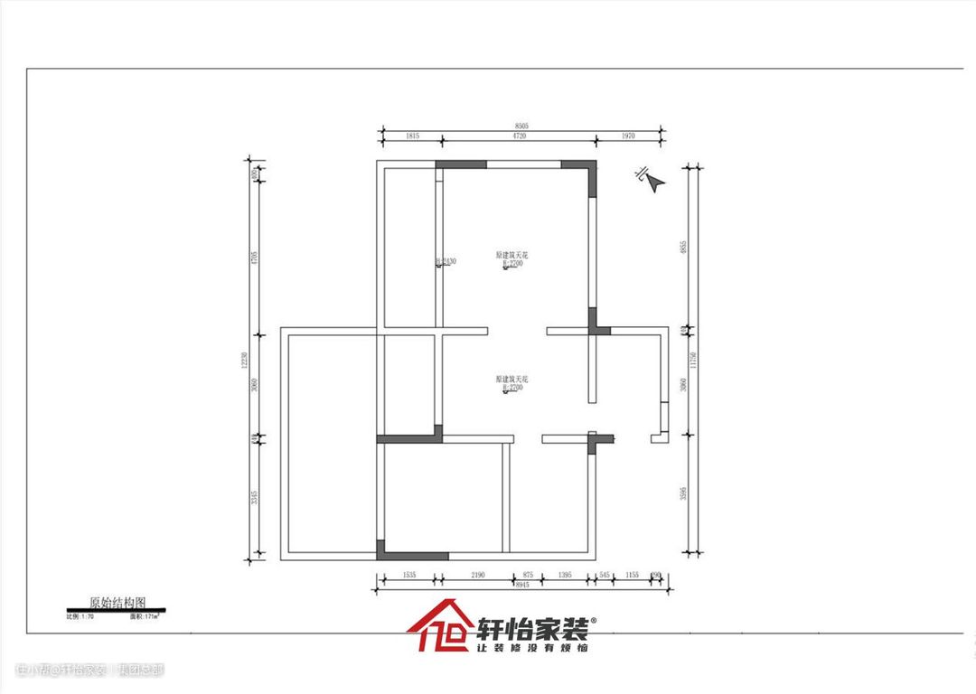
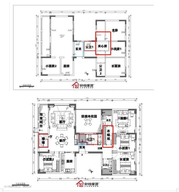
🎈一楼前后布局对比: 原户型图: 1、粗看公区与休息区隔开的H型布局,整体分区给人动静分明的感觉,但休息区与公区分割过于独立,没有联动性,缺失家庭温暖的氛围感; 2、休息区三房并列,中间还有一个小空间的夹心房,行走动线复杂且不顺畅,尤其是主卧貌似找不到卧室门? 3、卫生间整体都比较小,缺少洗衣房; 4、阳台空间宽裕,公区缺少储物功能。

✿゚改造思路: 1、玄关两边打通,加强公区与休息区的联系,户型整体动线清晰明朗,动静分离又保持紧密联系,强化各自空间的功能性,提升居住幸福感。 2、取消夹心房间的套卫,主卧入门延展打造过道式衣帽间,加强行走动线流畅; 3、玄关旁边公卫横向面积拉长,实现干湿分离与加入洗衣机,满足生活需求,提高空间使用的便利性; 4、客厅两边的阳台规划成小花园,满足业主休闲需求,与家人、孩子有更多的互动空间;公区储物方面,利用公卫做了嵌入式餐边柜,厨房冰箱同时嵌入其中,解放厨房空间,强化厨房功能,满足业主对烹饪的高要求

🎈地下室前后布局对比:

原户型图: 1、地下室整体空间布局较大,但被划分为多个独立空间,空间规划杂乱; 2、地下室与一楼缺少楼梯连通,且整体动线过于复杂,空间分区不明显。

✿゚改造思路: 1、地下室原本割裂的空间打拆成大通铺,让整体空间变得更加宽敞明亮; 2、楼梯位置设计师从两层的联通便利性、空间结构安全等因素多方面考量,最终把地下室打造成拥有阳光花园、多功能室、孩子娱乐区、书房、杂物间的多功能空间,从楼梯到地下室过道,动线顺畅,不仅大大提升了屋主生活的多样性,还强化了各个区域的功能性分区。
一楼入户玄关空间缩短给公卫让位,但设计师通过预留嵌入位的形式,为业主打造了玄关端景空间,可用于摆放绿色盆栽,不仅增强回家仪式感,还能美化玄关空间,同时带来了更好的视觉观感与空间精致度。


在玄关走廊上摆放灰色棉绒长椅,椅子下方留空用于鞋子收纳,既合理利用了玄关空间,还能便利屋主进出门换鞋,带来更好的生活便利性。

客厅整体风格遵循了中式风对称设计理念,对称到顶电视柜、对称摆放发财树、对称设计两侧阳台,无一不凸显着中式设计的东方韵味。 围合沙发布局、矮茶几设计、圈式吊顶,既呼应了中式传统的装修特色,又体现了新中式的创新,整体空间设计表现力十分丰满,家庭联欢体验突出,平常一大家子围坐聊天、看电视,温馨画面一步到位。

对称设计的木制收纳电视柜,将岩板电视墙包裹,形成类似包边的视觉效果,空间立体感和稳重感十分突出,同时满足一些日常物品的存放,为生活带来更多便利。

深灰色的木质电视柜使用抽拉设计、金属圈点亮,更显优雅与精致。旁边摆设两盆发财树作为空间色彩点缀,整体古韵味更为突出。

客厅布局分为双侧阳台,更显空间的通透性,为室内空间带来极其舒服的自然采光。搭配圈式吊顶形成的窗帘盒设计,整体简洁美观。

双层仿欧式吊顶玻璃灯,奢华感与敞亮气场全速打开。 客厅整体层次感分明,温馨氛围十分突出,是居家生活的人情味体现,也是空间设计的情感表达。


与电视柜配套的茶几,做四角圆滑过渡,规避了进出磕碰的危险,选择拼色茶几,与刚柔并济的太极文化相得益彰,再与咖色沙发搭配,皮质与木质相结合,材质独特,但风格统一,为客厅空间烘托出一个时尚年轻,又不失传统韵味的居家氛围。

阳台门帘选用蓝灰搭配亮片橘,跟随整个客厅的主色调做延伸,风格既统一又非常贴合装饰,内衬纯白色珠边布帘,高级又不失雅调,不仅装饰了客厅,同时装饰了阳台的风景。

放眼望去,整体空间做深浅色调配搭处理,加以爱马仕橙作为空间色调的亮色点缀,整个客厅看上去可盐可甜,简洁中带点干练的气息,虽以简洁为设计语言,同时又不缺失精致度,奢雅、高级的居家气息一眼望穿。
餐厅区域位置布局合理,表现在使在餐厅用餐时,依旧可以享受到电视娱乐,空间娱乐体验感上升,且连接阳台,自然采光让餐厅空间更加敞亮。

中式风空间设计在线条的运用也是非常讲究的,餐厅圆形吊顶与客厅方形吊顶的细节处理,搭配双层吊灯的奢华,宛如举止文雅的大家闺秀。

到顶餐边柜做嵌入墙体设计,实现规整的视觉效果,让空间没有多余的凹凸感,尤其是四门大冰箱的完美嵌入,更加考量了设计师对尺寸的掌控能力,空间高级感瞬间凸显。

偏咖色的柜体突显木质肌理,搭配玻璃门收纳层,既有收纳的隐蔽性能又有收纳的展示性能,既呼应了中式风的自然,又点缀了新中式的创新。使用金色线条与把手点亮整体,更是彰显文雅之风,餐厅用餐同样能感受到文化的韵味。

环绕一圈,厨房、儿童房、楼梯间清晰可见,舒服的采光、安逸的层高,保障了日常生活的舒心,双层中空玻璃推拉门将厨房餐厅各自独立,避免了厨房油烟渗入餐厅,又可透过玻璃门进行烹饪、用餐互动,更加体现了设计师的细节处理,生活幸福感瞬间提升。

撞色皮质椅子搭配双层花纹岩质转动桌,提升了整个餐厅的高级感,转动桌子不仅贴合了屋主的多人用餐的便利体验,还体现了设计感,非常适合招待客人或人多的家庭,生活体验更加便捷。


在整个装修过程中,业主对厨房期待值比较高,因此设计师以保持动线顺手与空间的宽敞为基本,将冰箱移出餐厅,让厨房功能更专注。上下收纳橱柜对空间视觉起到了画龙点睛的妙处,配色选用蓝色,用金边线条和把手点缀,让厨房整个空间体验充满高级感。

L型地柜操作台设计,让厨房面积利用达到最大化,操作区-清洗区-烹饪区基本延展出台面储物区,让小家电、厨房用具、备餐不再拥挤。对厨房的设计,不能仅停留在多预留插座的口号上,没有配套的摆放位置,都是徒然。

烹饪区上方一字排列的吊柜,将生活储物空间进一步延展,更方便归纳备餐用具等生活用品。吊柜下方灯带的设计细节,更加体现对生活的热爱,正如照亮每个烹饪步骤,灯带贴心小设计,不仅让妈妈烹饪更舒心,家人用餐更开心。

厨房还值得一提的就是橱柜的配色方案,蓝色为主色调,搭配金色把手,再加以金边线条勾勒,嵌入通体大理石纹瓷砖的厨房,真是人间绝绝子~恰到好处的提升了厨房的品味,同时诠释了设计的高级语言表达。

(衣帽间改造空间对比) 取消空心房,过道入门位置调整后,主卧延展出过道式衣帽间,给女主人一份尊贵优雅。

H型衣柜设计,让出的中空位作为女主人的梳妆台,柜体与墙面同色设计,减少视觉突兀感,更显轻盈。顶上墙面则是设计透明储物柜,放置化妆品、包包,展现生活的小美好。 整面到顶衣柜设计,衣柜拉手与空间拉伸尺寸恰到好处的吻合,再一次体现了设计师对空间尺寸的精准把握。

木质板通铺,配上绿植装饰,卧室空间的自然气息瞬间叠满,轻松氛围下还可以提高屋主的睡眠质量。安静随心的自然,让人有睡眠环境下的安全感。

主卧当然得配套主卫才能彰显身份,让休憩空间更加独立且私密。

主卫整体风格延伸了整屋的新中式,吊柜与镜柜的结合设计,储物与卫生死角都得到极大缓解,让屋主梳妆整理有了更多的空间。

基本的干湿分离设计当然没有缺席,黑钢玻璃隔断干湿区,让空间更加通透,提高了生活的便捷性。
👩儿童房1 小儿童房临近主卧的生活动线,靠近长辈房,方便父母照顾。跳色背景墙设计,让空间多了些许灵动感,搭配同款双眼皮吊顶,视觉层次丰富、不压抑。

以米黄色的暖感烘托整个儿童房的氛围,没有打造固定式衣柜储物,只留简单的白色储物柜作为收纳杂物用,为今后卧室布局的变动留有余地,让空间有了更多可能性。

👦儿童房2 作为公区唯一的卧室,它被定义为儿童房二号,或是年长孩子的独立空间,或是未来孩子的备用空间~入门就是整面定制到顶的大衣柜,完美的一体化设计与柜面利落的线条感,不仅实用,还是颜值杠把子。

大面积断桥封窗设计,提高室内的自然采光,透过玻璃窗欣赏大自然美好的风景,惬意生活一步到位~

镂空床头柜的轻盈、便捷,搭配星星灯的温馨浪漫,收纳与装饰兼具,给孩子更多安全感。

蓝色背景墙搭配木色地板,让空间更加清爽自然,双眼皮吊顶设计,整体颜值更上一个层次。

👨🦳👩🦳长辈房 长辈更需要安静的空间氛围来提供长辈的睡眠质量,因此也布置在休息区,不仅方便帮忙照看孩子,还能给长辈房一个静谧的空间环境。

大面积到顶储物衣柜设计,给父母一份生活宽裕。同时增加了影音功能增加房间娱乐性能,壁挂上墙,没有过多侵占过道空间,让家人进出更舒服。

柔软安稳的床靠,给父母更好的放松、休息环境,花纹玻璃吊顶灯给房间带来更多采光渠道,不管是背靠着床看电视,还是坐着,都能保证观音光线。


🚾公卫1 房子面积大,必须要设计公卫,不管回家个人卫生打理,还是客人来访,有需求都很方便,不会对私密空间造成过多的打扰。

公卫还承担着洗衣房的空间功能,浴室柜旁做好尺寸设计规划,将洗衣、烘干机恰好置入,既不占用过多的空间,还还原洗衣房的空间功能。

玄关缩短让位公卫横向扩张,生出了一个淋浴房,最终实现干湿分离的健康生活,让整个空间更加通透明亮,同时干湿更独立。

🚾公卫2 临近长辈房设计了公卫2,更多是老人的专属,方便老人使用,让他们有种带来套卫式的舒服体验。

与其它卫生间无差别的干湿分离,光线与收纳更自然方便,淋浴房则是更换成防滑地面与半墙玻璃隔断,更安全,更便利老人家使用。

客厅延伸出两个阳台,这是靠近沙发一旁的长形阳台,通铺灰色板砖,与室内风格相称又独立,吊顶安置两条长形晾衣架,与地板相衬,方便日常晾衣打理水渍。

另一边阳台则靠近电视旁,阳台空间较小,通铺木质地板,适合家人休闲娱乐,阳台出来还能观赏一片绿油油的植物,给生活带来更多享受瞬间。


💕对于装修风格: 前期沟通的时候,业主有自己明确的喜欢意向,设计师也陪同业主去看了一些家具做参考,最终业主还是比较喜欢中式、禅意一点的装修风格,但又不希望过于老气。 设计师就找平衡点,用中式元素搭配偏咖色的木色去处理,融合出一种比较新颖的中式感觉。 💕对于生活功能: 方正的公区空间,设计师通过合理规划丰富家庭生活储物空间,释放厨房空间的规整,强化空间功能,满足业主对烹饪的高需求; 将客厅两边的花园阳台功能强化,延展成为业主的户外休闲区与孩子娱乐区,让生活多一种可能。挑选合理的位置架起楼梯,使地下室与住房联通,同时不影响原有的使用面积。 💕对于设计落地: 业主依托轩怡装饰作保障,对(莫工)设计师很信任,提供基本的需求然后给与(莫工)设计师发挥空间。最终在业主与设计师的努力下,为业主呈现出符合审美和满足生活实用需求的新家
