方案解析

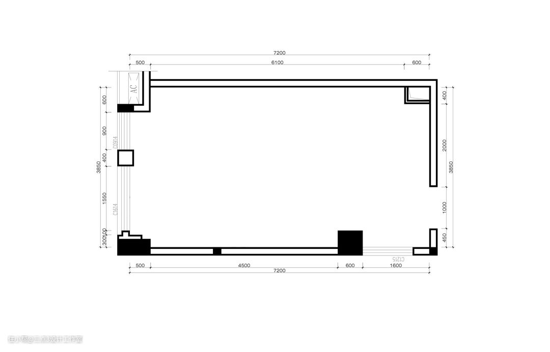
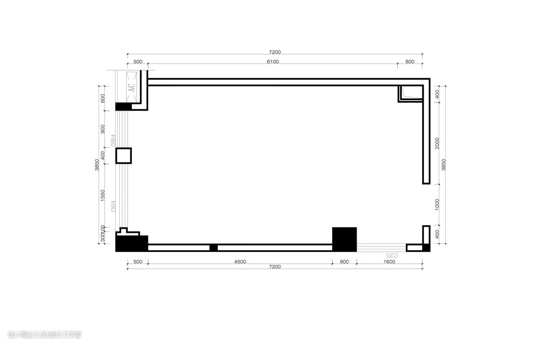
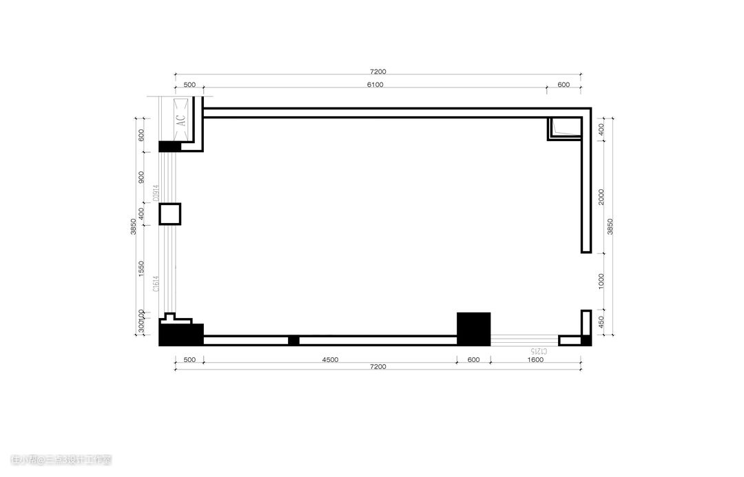
原始平面图 原始结构户型有一根房梁有点矮,后期处理需比较小心

改造后的平面布置图 平面布置主要以一对年轻夫妇外加一个小孩的形式来进行设定的; 利用层高,重新规划分出上下两层的空间,变成两房一厅一卫一厨的使用空间;
客厅
一层的所有空间设定为公共活动空间的范围:入户、厨房及客餐厅;现代简约轻奢风,黑白色调混合木色做点缀;入户空间采用了木饰面吊顶,通过吊顶材质的不同来简易区分了入户及客餐厅的区域,给了入户一点仪式感,全开放式的厨房连接餐桌及沙发区域,就算三五知己节假日在家聚餐也不会拥挤,贴切年轻人的生活模式; 另外楼梯底部做成收纳空间,实用的同时又能减少空间的压迫感。



餐厅


厨房


主卧
二层双睡房中间用厕所分隔开来,隔断都采用长虹玻璃隔断形式,使房间自然光线充足; 两个房间都有足够的收纳空间:衣柜、书柜、书桌应有尽有,可谓是“麻雀虽小,五脏俱全”



次卧



卫生间

设计团队

