项目地址 / Address:锦粼府 设计施工 / Co :铭品装饰 风格 | Style:混搭 项目面积 | Area:110㎡

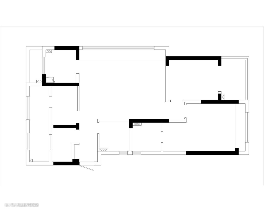
//户型缺点// 1、原始户型没有玄关区域。 2、入户的两个房间区域较小,有太多隔断墙,整体动线不够流畅。 3、厨房空间比较小,没有放冰箱的位置。

//设计亮点// 1、拆除一些隔断墙,让空间利用达到最大化。 2、入户做玄关走廊墙,嵌入玄关柜。 3、客厅是大横厅的布局,利用飘窗做休闲阳台和备餐台,合理利用空间,空间更显大。 4、全屋木质地砖,配色以奶油色+墨绿跳色为主,做拱形门来增加空间的精致浪漫感。 5、屋主喜欢一些女性化的小玩意,家里也随处可见这些小摆件,既随性又有品味。
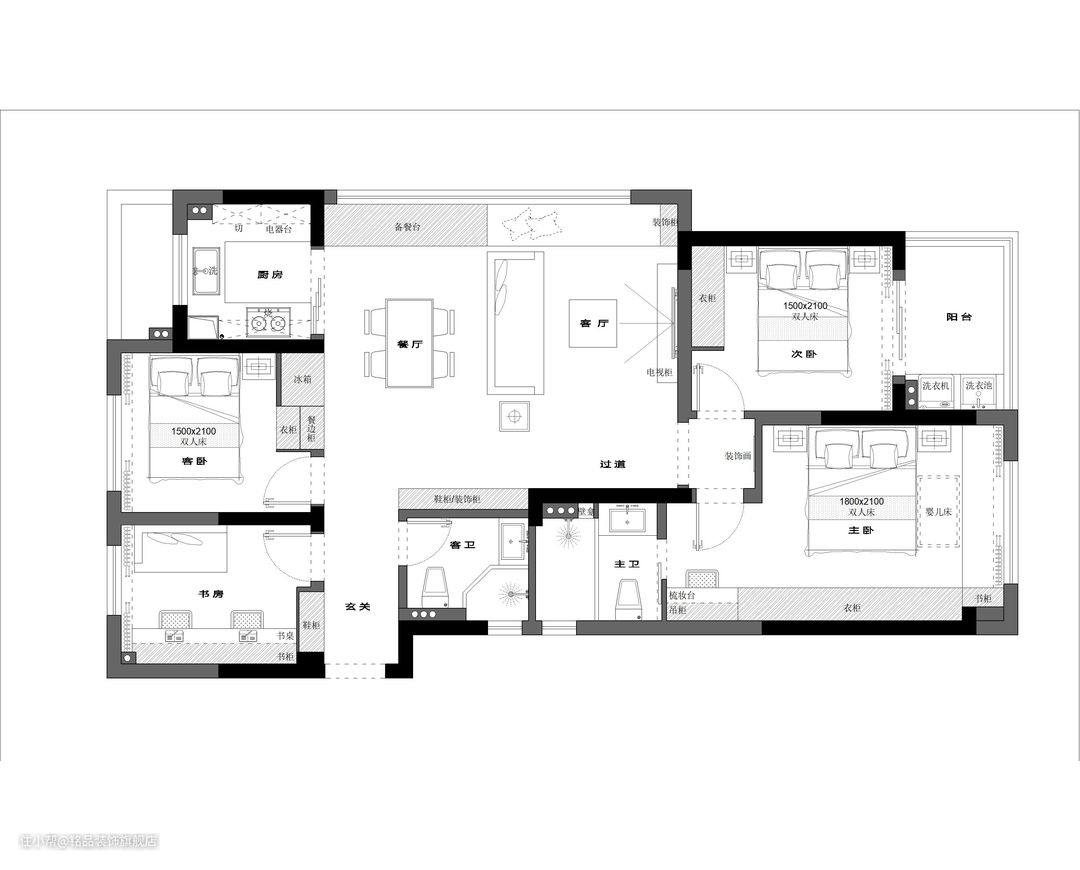
保留原户型的飘窗和横厅布局,一是为了提供绝佳的视野和光线,让空间更显大。二是根据屋主的生活习惯,可以把飘窗台分别改造为休闲区和备餐台,为生活赋能。

全屋通铺木地板,也是空间显大的原因之一。木地板给人的感觉就是温暖且自愈的,脚感也是地砖无法比拟的。

必备的沙发、茶几、地毯、电视柜安排上,其它尽量不放,简单精致就会有空间感。家具选择了体积偏小的,不占地方搬动方便,平时使用也舒心。

电视背景墙的色彩碰撞很惊艳,选取了屋主喜欢的奶油白和复古绿做搭配,有种温馨舒适感。

飘窗区域做一组置物柜,用来放装饰物品;台面上摆放软垫和小茶几,打造一个休闲小阳台。

拱形门露出的一堵大白墙,也不忘做装饰,填满屋主喜欢的小玩意儿,展示屋主对生活的态度。

过道做白色+墨绿色的拼色墙面,墙面装饰黄铜镶边挂画,背景墙加入石膏线条,给人一种复古轻奢感,另一面墙做装饰柜,满足公区储物需求。

走廊的拱形门,不仅能起到装饰作用,也遮盖了电视柜和装饰柜线条太过硬朗的问题。

飘窗区域做一组置物柜,用来放装饰物品;台面上摆放软垫和小茶几,打造一个休闲小阳台。

餐桌选择了胡桃木材质,尽量贴合家里的色调,保持屋内不超过三种颜色,也会有简约、轻爽的视觉效果。

28mm厚度的餐桌,视觉上更显轻盈,桌角做了倒圆处理,不担心小臂硌到,也更安全。

餐椅是单椅+长凳的组合,长凳可以塞入桌底,节省空间不挡路,让空间更多元化。

餐桌背后是厨房和餐边柜区域,复古绿的餐边柜还嵌入了冰箱,台面上放上茶具,不仅仅是收纳需求,还很好看。

靠窗处做了一组备餐台,台面上收纳着屋主收藏的各种精致小物件,台下做了柜门和抽屉式设计,方便储物。

厨房是经典的U型布局,原木色橱柜+木色地砖,给人一种温馨感。墙面上的花色瓷砖打破单独,多了几分趣味。

主卧延用了客厅的奶油色+墨绿色拼色设计,床、床头柜和地板都是原木色元素,打造的就是一种温柔复古风的感觉。

床头墙加入石膏线条,增加立体感;复古风的装饰画和灯具,让空间更显精致和品质。

原木、藤编、亚麻、针织等材质的用品,让空间更有层次感,床品也是灰绿色系的深浅搭配。

床尾的梳妆台也是一道亮点,全实木的卷帘设计,曲线优雅,又能防止灰尘。打开卷帘门,既能做书桌,又能当梳妆台。

留出一间房做书房和休闲房,靠墙摆放一张简单的电脑桌和电脑椅,墙面上用米斗柜、装饰画和贴纸来丰富墙面,整个室内温暖,治愈人心。

合理利用一些装饰小物,就能让房间焕然一新。

落地灯带来的氛围感,墙面上的洞洞板收藏零碎小物,墙面也显得别致了起来。

靠窗放置懒人椅和边几,是一个偷懒小憩的小角落。

卫生间有窗户,所以墙砖地砖选用灰色系,也不会觉得暗沉,整体配置很现代简约。

