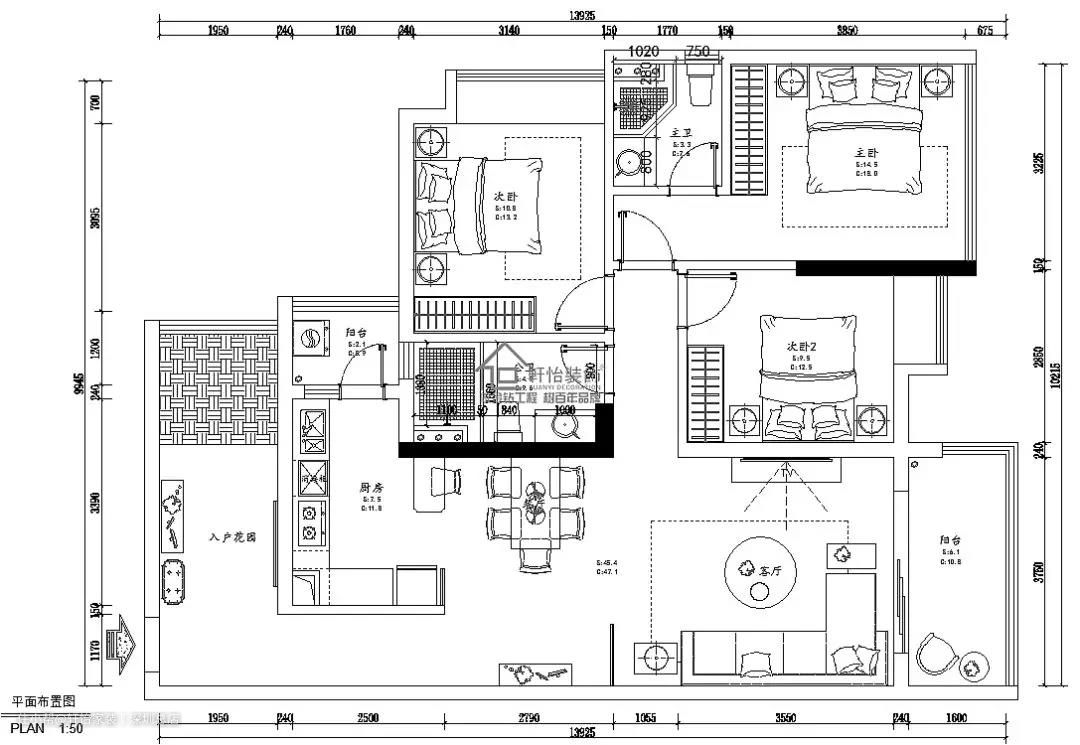
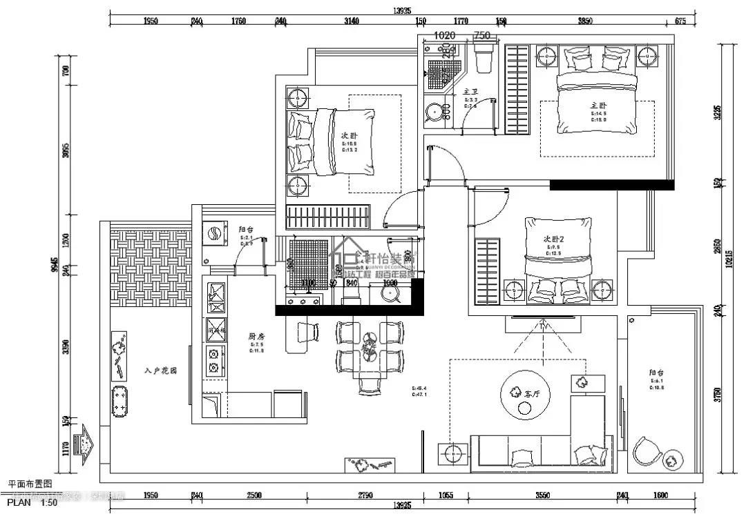
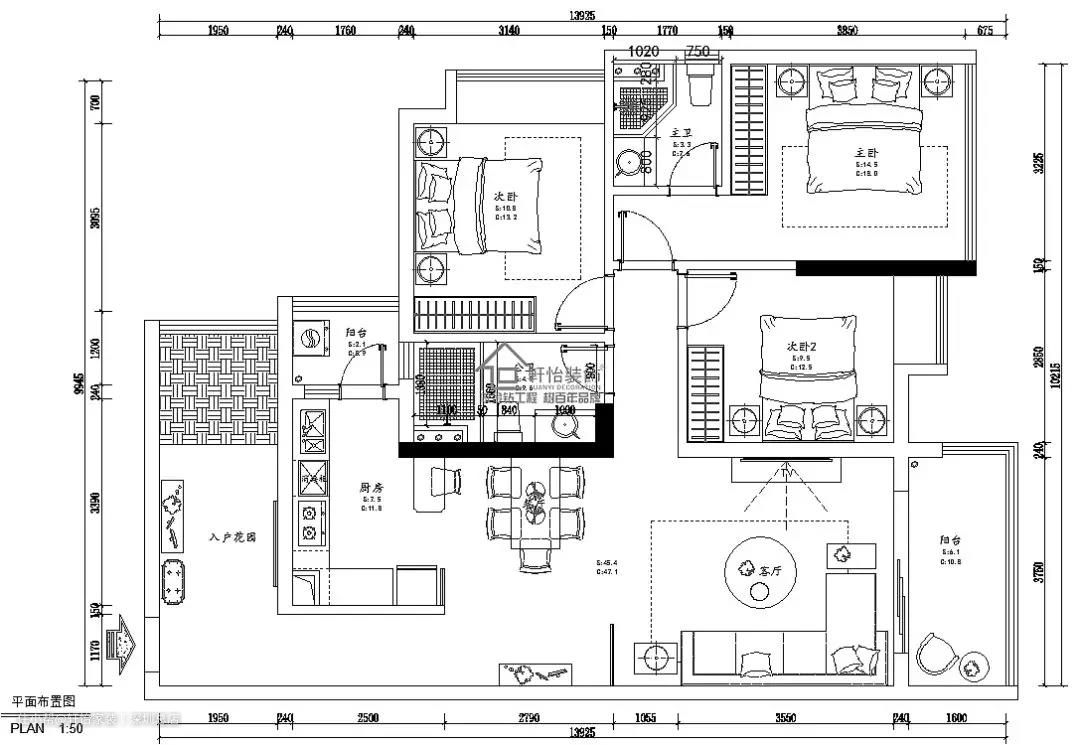
方案解析

客厅
黑色皮质沙发搭配原木质感挂画、矮茶几,三盏黑色聚光灯聚焦照射,神秘又不缺气质,保留一种轻盈的感觉和温馨的氛围。

厨房
餐厅和厨房之间的地板采用六边形小砖、立体砖,嵌入式的拼接铺设,一扫一线分区的单调感,整体视觉有种融入感,更加闲适有趣。师傅贴的不仅是砖,更是一个美好家的艺术。

主卧
卧室的精致度让怡妈自愧不如,浅淡的原木色,在床头挂画的点缀下,让空间呈现出明净的温暖感。

阳台
阳台铺设木塑板,无论从经济上还是耐用上来说,木塑板都比防腐木有优势,打造户外小花园,文艺气息拉满,嵌入式收纳柜+洗衣机,看起来空间更干净整齐。


