喽大家好,我们好久不更新全屋记了,基本上断更了好久个月了 主要是我们的编辑小姐姐因为疫情原因,离开的我们团队, 一直没有招来太合适的编辑小姐姐,所以都没有更新 在加上我们设计师主要忙于项目上的设计,跟踪工地所以暂时就把更新放下了 最近慢慢恢复正轨了 编辑小姐姐还在招, 暂时更新我来更新,可能不会更新的太勤 接下来回归正题 本期带来的改造项目一个建筑面积59平米使用面积55平米左右 地址位于:北京顺义区 本小区的一期我们之前做个一个案子,老粉丝的应该都看到过 我们回来后就开始了设计,前前后后设计了20多版方案,最后20归3版。 对于客户三版方案都很满意,最终让我们来拿主意来定了一版,从这个时候我们和客户跟好久的朋友一样相互信任。

原始勘测图 本户型是一个开间 户型很方正 房高并不是太高 难点:1.房高低2.面积较小3.采光受限

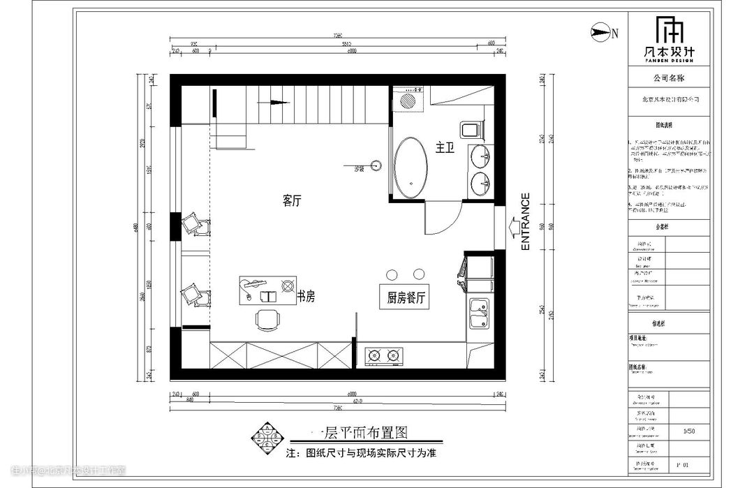
一层户型规划 因为面积受限所以设计上 利用高低差设计成了LOFT户型 一层规划为:客厅/餐厅/书房/活动区/厨房/卫生间

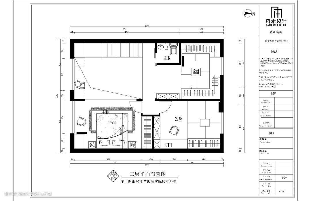
二层户型规划 因为面积受限所以设计上 利用高低差设计成了LOFT户型 二层规划为:休闲区/主卧/次卧/客卧兼衣帽架/次卫

第一次实地测量视角

最终落地完成效果

客厅区域 客厅上特意设计了挑空区域,让客厅不会那么压抑,且让其他区域也能吃到光, 从而保证每个空间都有充足的采光已经通风 设计上我们也细心的考虑本窗户超高问题 窗帘以窗户我们都采用的电动窗帘,电动窗户 这样最上方的窗户也能随时随地的打开使用 有同样要这样装的,一定要考虑全面 避免后期想改改造不了

客厅区域 定制的沙发垫子靠垫 这里是一个地台区域 这里是规矩不能拆除的,所以我们利于地台的一个高度差,一部分和 楼梯结合,一部分来作为客厅沙发区域使用 正是一举两得的事 软装还是我们最开始给客户布置的样子 非常舒适

客厅区域 定制的沙发垫子靠垫 这里是一个地台区域 这里是规矩不能拆除的,所以我们利于地台的一个高度差,一部分和 楼梯结合,一部分来作为客厅沙发区域使用 正是一举两得的事

客厅区域 这个区域,是我们应男主人的前期设计要求来规划的 男主人当时就说,在原来的需求上必须保证, 我要有一个沙袋和引体向上的地方要用 这是我们来设计的可移动沙袋 在沙袋上方我们预埋了钢制滑轨 在使用期间可以滑到房子中央使用 不使用时就把它推到角落区 也不影响其他区域使用 大家肯定会问,引起向上区域呢 马上就来了 请看下面图

客厅区域 引体向上这个视角是可以看到的 是把它放到这个区域 是为了两个活动区域互不影响空间也比较宽裕 投影仪是隐藏式的 幕布设计上有两个作用 1.卫生间使用时可以遮挡卫生间 2平时不用时,卫生间采光也非常充足

餐厅区域 餐厅的设计上采用开放式 餐厨一体的设计 更大上利用好每个空间 会有小伙伴问了,做饭油烟岂不是太大 我们都考虑到了 1.从选择抽油烟机上选择吸力更加大的 2.我们设计了隐藏式推拉门 在做爆炒时关上门就完美解决了

餐厅区域 餐厅的设计上采用开放式 饰品上我们挑选了和风格一样的金属系配色 餐厨一体的设计 更大上利用好每个空间 会有小伙伴问了,做饭油烟岂不是太大 我们都考虑到了 1.从选择抽油烟机上选择吸力更加大的 2.我们设计了隐藏式推拉门 在做爆炒时关上门就完美解决了

餐厅区域 餐桌细节图 餐厅设计了饮水比较方便的管线机 不管在书房,客厅都比较方便直饮水 饰品上我们挑选了和风格一样的金属系配色

餐厅区域 餐桌细节图 餐厅的设计上采用开放式 饰品上我们挑选了和风格一样的金属系配色

厨房区域 厨房墙砖选择的大砖铺贴 这样完美解决墙面砖缝的问题 抽油烟机,烤箱,洗碗机,各种电器我们都精心挑选的 择抽油烟机上选择吸力更加大的 2.我们设计了隐藏式推拉门 在做爆炒时关上门就完美解决了

厨房区域 厨房全景图 橱柜设计为L型 厨房墙砖选择的大砖铺贴 这样完美解决墙面砖缝的问题 厨房放置类了管线机, 与书房采用玻璃砖设计来做间隔, 这样既可以分割两个区域,又可以采光充足,也不失单调

餐厅区域 厨房细节图 厨房设计了饮水比较方便的管线机 不管在书房,客厅都比较方便直

餐厅区域 厨房细节图 橱柜地柜,内嵌洗碗机,烤箱 应用那句话:户型虽小但是五脏俱全

厨房区域 厨房墙砖选择的大砖铺贴 这样完美解决墙面砖缝的问题 厨房放置类了管线机, 与书房采用玻璃砖设计来做间隔, 这样既可以分割两个区域,又可以采光充足,也不失单调

餐厅区域 厨房细节图 厨房设计了饮水比较方便的管线机 不管在书房,客厅都比较方便直饮

主卧区域 主卧主要是男女主人居住 从设计上,区别于客厅公共区域 更加温馨 床头两侧做了吊灯设计 色彩上采用更加低饱和度的颜色来处理

主卧区域 主卧主要是男女主人居住 从设计上,区别于客厅公共区域 更加温馨 床头两侧做了吊灯设计 色彩上采用更加低饱和度的颜色来处理

主卧区域 主卧主要是男女主人居住 从设计上,区别于客厅公共区域 更加温馨 靠窗户处放置贵妃榻,让女主人在卧室就有一个私密空间来晒太阳 色彩上采用更加低饱和度的颜色来处理

客卧区域 客卧上,原始结构上,我们借用了公共区域的顶 但是他是突出原始地面的 所有我们利用高低差设计做了地台 尺寸上是不够的我们做了延伸处理,让整个空间更加舒适 储物空间也翻一倍

客卧区域 客卧上,原始结构上,我们借用了公共区域的顶 但是他是突出原始地面的 所有我们利用高低差设计做了地台 尺寸上是不够的我们做了延伸处理,让整个空间更加舒适 储物空间也翻一倍

客卧区域 客卧 每个空间软装配色我们选择更加单一化的设计 让每个空间窗帘颜色都不相同

客卧区域 这个空间上我们利用了每一寸尺寸来做储物 让整个空间更加舒适 储物空间也翻一倍

次卧区域 次卧也同样和客卧一样 墙的三面做了满满的储物功能 且窗户下面做了内飘窗设计, 下面储物,上方可以躺着看天井下面的景观 女主人最喜欢的粉色系

次卧区域 本空间采用长虹玻璃,这样二层公共区域能接受到双面光源 次卧也同样和客卧一样 墙的三面做了满满的储物功能 且窗户下面做了内飘窗设计, 下面储物,上方可以躺着看天井下面的景观 女主人最喜欢的粉色系

次卧区域 次卧也同样和客卧一样 墙的三面做了满满的储物功能 且窗户下面做了内飘窗设计, 下面储物,上方可以躺着看天井下面的景观 女主人最喜欢的粉色系

书房区域 书房方面的设计 我们采用了更加大气的白色书桌 后方书柜采用金属门手玻璃门设计 从空间上看空间更加通透,拉伸感更强

书房区域 书房方面的设计 我们采用了更加大气的白色书桌 后方书柜采用金属门手玻璃门设计 从空间上看空间更加通透,拉伸感更强

书房区域 书房方面的设计 我们采用了更加大气的白色书桌

主卫区域 浴缸区 侧面采用玻璃砖设计 方便把客厅的光引入室内, 保证白天卫生间在不开灯的情况下能正常使用 洗衣机的侧方已经上方都充分做了储物柜,让卫生间的收纳功能更加多

主卫区域 主卧卫生间采用的双盆设计 设计上还是从客户角度出发 因为两个人的的上班时间差不多,这样大家都可以同时来早上起来一起收拾 时间上会大大缩短出门时间

主卫区域 主卫从设计布局上就兼用洗衣,浴缸,马桶,浴室柜等功能 选材上我们地面采用与客厅相同规格型号来铺贴 面采用白色连纹大砖铺贴 马桶选择壁挂马桶,方便打理卫生

主卫区域 浴缸区 侧面采用玻璃砖设计 方便把客厅的光引入室内, 浴缸龙头特写 保证白天卫生间在不开灯的情况下能正常使用

挑空区域 它来衔接楼上楼下,卧室区域的采光 有些朋友问,这个区域做个卧室多好 确实,房间也大,采光也好 但是其他的区域就兼顾不到了 它的存在就是它最好的证明 女主人入境中 马上要当妈妈了

挑空区域 它来衔接楼上楼下,卧室区域的采光 有些朋友问,这个区域做个卧室多好 确实,房间也大,采光也好 但是其他的区域就兼顾不到了 它的存在就是它最好的证明 女主人入境中 马上要当妈妈了

挑空区域 它来衔接楼上楼下,卧室区域的采光 有些朋友问,这个区域做个卧室多好 确实,房间也大,采光也好 但是其他的区域就兼顾不到了 顶面做了部分吊顶,是因为整个家里设计了新风系统,对于北方天气还是很重要的

挑空区域 它来衔接楼上楼下,卧室区域的采光 有些朋友问,这个区域做个卧室多好 确实,房间也大,采光也好 楼梯采用内嵌玻璃设计,扶手采用金属金属,小巧精致

走廊区域 作为二层的公共区域 同样设计管线机,这样不用在楼上楼下来接水了 晚上喝水也很方便 设计这个区域也是为了家里来了闺蜜可以有个小天地来说一说悄悄话

玄关区域 玄关一面是做了暖光明装灯,搭配上锦鲤飞跃的话 与双侧门相互映衬 地面采用实木鱼骨拼接铺设

走廊区域 作为二层的公共区域 同样设计管线机,这样不用在楼上楼下来接水了 晚上喝水也很方便 设计这个区域也是为了家里来了闺蜜可以有个小天地来说一说悄悄话

走廊区域 每一处都是小心思 客户也大大竖起了大拇指

次卫区域 次卫我们设计规划上, 主要作为晚上起夜或者应急使用 所有面积上我们压缩到了极致 称之为空间最小也不为过 色彩上我采用了一个撞色设计,从瓷砖的色彩上区分区域 马桶也是采用壁挂马桶,这样卫生也非常好打理

次卫区域 次卫我们设计规划上, 主要作为晚上起夜或者应急使用 所有面积上我们压缩到了极致 称之为空间最小也不为过 色彩上我采用了一个撞色设计,从瓷砖的色彩上区分区域 马桶也是采用壁挂马桶,这样卫生也非常好打理 非常漂亮的一个卫生间 快来欣赏哦

次卫区域 次卫我们设计规划上, 主要作为晚上起夜或者应急使用 所有面积上我们压缩到了极致 称之为空间最小也不为过 色彩上我采用了一个撞色设计,从瓷砖的色彩上区分区域 马桶也是采用壁挂马桶,这样卫生也非常好打理 非常漂亮的一个卫生间 快来欣赏哦
设计团队:凡本设计 摄影团队:凡本设计 主案设计:张震 助理设计:赵英杰
