设计师综合空间特性以及业主的需求,将无限的创意设计发挥在有限的空间内,强调空间的互动性,在低调沉静且富有质感的冷色调底色中,辅助暖色灯光以及软装搭配,呈现出温馨舒适且质感不凡的居家环境。

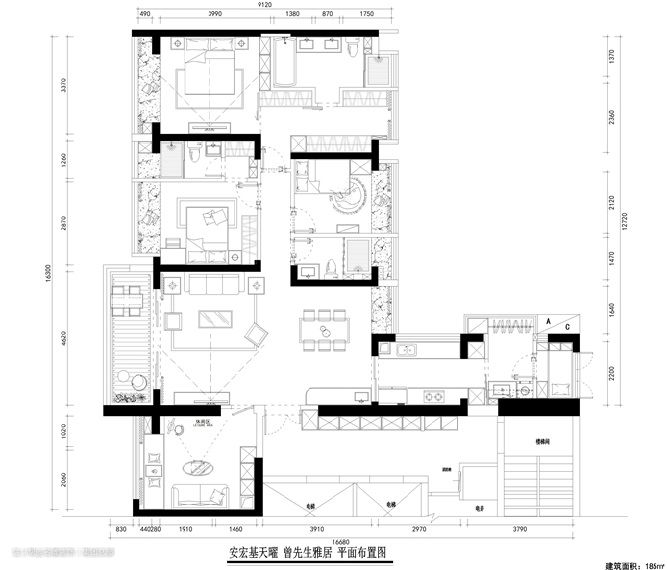
本案例的户型方正,空间整体通透大气,因此只进行了局部的修改。为了满足业主的居住需求,保留了3个卧室+2个套卫+1个公卫,也实现了干湿分离设计。由于客厅背景墙是一堵承重墙,因而利用隐藏门设计将背景墙后的空间设计成休闲厅。主卧,拆除部分墙体,利用柜体设计打造成小型的衣帽间。

客厅,开放式布局,巧妙地将客厅与餐厅、厨房整合在一起,厨房与餐厅使用玻璃移门进行隔断。客厅以冷色调为主,浅灰色的大理石地面搭配素净的白色乳胶漆墙面,整体布局简单而不失格调。

一组舒适的皮质沙发靠墙摆放,沙发进深长,靠背高,坐上去软乎乎的。橙色的单人沙发与墙上的装饰画色调相互呼应。视野开阔的阳台风景随着季节的变换更新色彩,空间设计细节展现业主生活态度。


客厅没有安装电视机,后期安装投影仪可以满足业主的观影需求。与环境融为一体的隐形门打开后就是舒适的休闲厅,关上门后就是专属的独处空间。


餐厅,一张长方桌最多可容纳6-8人用餐,大理石材质餐桌搭配同色调的餐椅,与整体的空间配色协调搭配。

餐边柜简约大气,黑色大理石台面低调耐脏,台面安装有水槽,可以在此处摆放各种小电器,轻松实现日常的简单料理。

厨房,水槽面对着一整面的窗户,自然光线充足,二字型的橱柜布局,嵌入式收纳大型电器,整体布局看起来秩序井然,让人充满了下厨的好心情。

主卧,原木色与浅灰色的搭配营造简单舒适的睡眠空间,没有多余的装饰,极简的背景墙,空间视觉清爽舒缓。浅灰色的窗帘与同色系的深色衣柜相互呼应,兼具个性与收纳设计。


次卧空间面积不大,以浅灰色为主体基调,按照常规的设计打造衣柜,木质组合背景墙成为空间亮点,整体氛围舒适而不失温暖个性。



主卫,干湿分离设计,淋浴区的壁龛设计,方便收纳日用品。一体化的双人洗手台,整体美观大方也减少卫生死角。

公卫,淋浴区在最里侧,马桶区在中间,使用玻璃移门进行简单的干湿分离,大理石台盆区上方是镜柜,可以收纳零碎的日用品,台盆下也设计收纳空间。

