业主需求清单: (1)业主是一对刚新婚的95后小夫妻,两人目前还没小孩,主要搭配以时尚温馨格调为主。 (2)两人都比较喜欢音乐,所以想要在家里做一个音乐室,可以在家简单释放能量。 (3)虽然两人还没小孩,但也考虑到未来,想打造一个多功能房,暂时可以当书房,后期可以当儿童房。 (4)独立的衣帽间,前期可以放置更多的衣物,后期要是改造也比较简单实用。

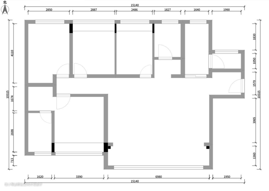
原始户型分析: (1)没有独立的门厅,空间比较逼仄。 (2)客餐厅一体设计,空间不好划分,造成一定浪费。 (3)空间的动静区分不明显,私密性能跟静音性能欠佳。 (4)厨房L型布局,空间比较窄,采光跟通透性能需要提升。

平面布置优化方案: (1)入户靠近阳台一些做玄关柜,满足日常进出门需求。 (2)厨房靠近窗户一侧做水槽,油烟机放置中间,生活阳台预留做杂物间。 (3)沙发背后设计成一个吧台的形式,这也是日常的餐桌,靠墙做餐边柜,增强空间收纳功能。 (4)衣帽间的门移到卫生间一侧,L型的定制衣柜,可拉伸的沙发床,兼具日常客房功能。 (5)释放是榻榻米+定制柜子的形式,后期可直接当儿童房。 (6)音乐室做了双层隔音功能,这是夫妻两人的理想殿堂。 (7)主卧的L型的衣帽间,满足主人翁日常的收纳化妆使用。
采用了现代轻奢的装修风格,95后的年轻小夫妻比价喜欢时尚同时又方便打理卫生的装修格调,公共区域铺设大板地砖,卧室铺设脚感比较好的木地板,浅色调的搭配让整个家美出了新高度。


入户玄关利用2000K的和煦灯带兼具日常照明需求,一打开门就能感受家的温暖。玄关柜是采用了伦敦雾的哑光柜门,中间预留了35公分的镂空,放置钥匙包包等细小物品,方便进出门。


柜子旁边还预留了插座位,方便智能电器充电,柜子没有做拉手的,上下两侧有缝隙,直接就可以拉开,平整美观,操作也简单。#玄关设计 #玄关收纳
客厅与休闲阳台相打通,瓷砖通铺,整体的视觉效果真的很好,整个空间通透明亮,傍晚的时候晚霞洒进家中,整个客厅被金黄色的阳光拥抱,想想都很惬意。#客厅装修


岩质灰的护墙板搭配格栅是电视背景墙的主格调,挂壁式的电视机释放电视柜,电视柜悬挂的形式,扫地机器人可以直接扫地,电视柜是抽屉形式的,胡桃色的柜面,方便放置物品,增强收纳。

采用了简单的回字形的吊顶装饰新风系统以及筒灯,凸显空间层次感的同时,又不会占据过多的层高。

简单的双座沙发,三色的抱枕,小巧的拼接岩板茶几,摆上日常生活用品以及花束,这是生活的气息。#小巧茶几 #舒适沙发
客餐厅一体设计,两者之间没有做实际上的划分,沙发后面置放了高脚吧台,弧形设计的和煦筒灯营造了一个温馨的就餐环境,享受二人世界的别致浪漫。#餐厅装修 #餐桌搭配


岩板面的台面,象牙白的灯光照射下来,食物的色泽都显得格外的诱人。

餐厅是一个比较重要的收纳空间,餐边柜兼具了小家电区以及酒柜,还要兼具日常用品的收纳功能,玻璃柜门的酒柜,防止落灰也很好的看到酒品。#餐边柜设计

餐厅的设计结合了金属、皮质与大理石三种元素。简洁优雅的造型,灰橙搭配与客厅相呼应,黑白相撞的橱柜形成颜色上的对比,打造出空间的高级感,丰富餐厅的层次。
厨房的整体面积是相对比较小的,采用了同为灰色系的瓷砖上墙,在靠近窗户的位置做了双水槽,平时洗菜洗碗都很方便,又不影响空间的采光跟通风。


橱柜是采用了方便擦洗的亮面柜门,直接做到顶的吊柜是灰白的,提亮空间,同时将油烟机嵌入其中,不会显得过于突兀,吊柜的下方置放了灯带,局部的提亮空间。#实用橱柜设计

将四门大冰箱嵌入厨房中,靠近冰箱的位置预留了电饭锅的插座,使用也比较方便,而石英石的台面前后做了挡水条,放置水珠乱窜,搞得到处湿漉漉的。

主卧采用了护墙板作为背景墙,白色的板面间隔,与米黄的床头灯带很好的形成了对称美,连接过来的飘台打造成了一个休闲区域,阳台侧面做了五格的置物空间,台面铺设大理石瓷砖,放上抱枕,妥妥的互动休闲区。


波点的灰色四件套,衬托出空间的宁静氛围感。


飘台连接过来是主卧的电视柜,同样的采用了抽屉式的,悬挂形式的,下面还设计了好些插座,电蚊香以及WiFi连接口一个都没少。

一打开主卧门就是衣帽间,四门的哑光灰白衣柜门没有拉手,在两门的中间直接可以打开,靠墙是梳妆台,复古的条纹是背景墙,智能感应的化妆镜,旁边还有放置化妆品的空间。
次卧采用了榻榻米+定制柜子的多功能房,榻榻米是做了两个台阶的,下面一排放置喜欢的玩具,也很好的与连接过来的书桌台相结合,书桌中间做了储物格,再多的书籍都有置放之处。




靠近进门一侧做了玻璃柜门的书柜,想要看什么书不用打开柜门都可以看得到,主要还可以防止落灰,清洁太方便了。
音乐室是主人翁最喜欢的空间之一,身心都可以得到很好的满足,但因为在住宅区,所以隔音特别的重要,整个空间是灰色的隔音棉,黑色的金属条装饰,百叶窗的透光性不强,保护私密性能。



圆弧的拼接灯具,自然的藤凳,看起来都比较自然。
专属的衣帽间是主人翁比较注重的一个空间,虽说是衣帽间,同时也是放置包包以及鞋子的地方,所以空间的收纳功能尤为重要。


做了L型的衣柜,进门做了储物格,内置灯带,放置包包,两门衣柜放置冬天的被子以及不常穿的衣物。玻璃柜门是放置主人翁的大衣等,射灯作为衣帽间的主灯,每个空间都很好聚焦。

另外一侧是四排的鞋柜,每双鞋子都有了专属的空间。
两个卫生间都做了干湿分离,长虹的玻璃隔断,安全系数更高。智能马桶的上方置放了五金件,可以放置浴巾跟毛巾那些,提升空间实用性能。#卫生间装修 #干湿分离


陶瓷台面的洗漱台,化妆镜两侧做了储物格,日常的洗漱用品可以简单的置放。

客卫是三区独立的形式,将洗漱台移到了过道,方便多人时使用,这样布置的卫生间不容易积水发霉,使用方便又安全。

洗手液、漱口杯以及漱口水等等的物品都有专属的空间,还有一束花刚刚插好,还没来得及去摆放。
休闲阳台虽然扩进客厅中,但整体的空间利用也没有落下,靠近餐厅一侧做了阳台柜,将洗衣机嵌入其中,方便日常晾洗衣物。#阳台利用 #阳台设计




靠近电视背景墙一侧设计成了一个猫室,因为主人翁家养了一只可爱的小灰,在家里也有了它专属的空间。
项目相关建材品牌: 1.水管:法兰特 2.电线:广东电缆 3.瓷砖:冠珠 4.乳胶漆:舒尔茨 5.灯具:欧浦照明 6.橱柜:欧派 7.定制的柜子:索菲亚 8.洁具:TOTO 9.窗帘:伊莎莱 10.沙发:顾家家居 11.石材:金峯
