本案的楼盘靠海,仅屋主一人居住,改造诉求:宽敞明朗,整体休闲和放松感要强,其它的由设计师自由发挥。看似诉求不高,然则处处是对设计师专业性和创意性的严格考验。 车水马龙的快节奏都市让人疲惫,能让其从纷扰的世俗中逃离的,便是独处或与之喜欢的人共处的舒适空间。

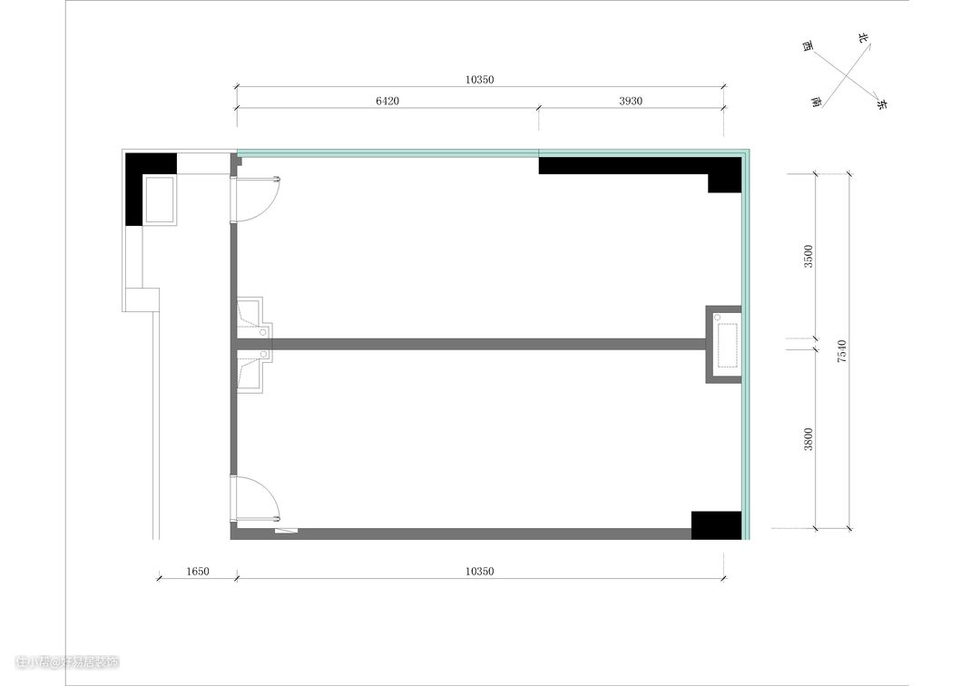
▲原始户型图

#设计后一层平面布置图 >>

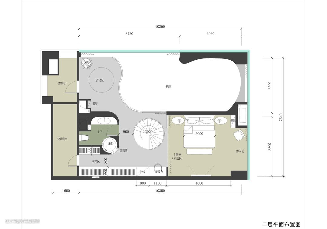
#设计后二层平面布置图 >>

不动承重墙的前提,重新梳理划分空间格局,将两套长形毛坯房打通,挑空增强空间视野的宽阔性,减少密闭的视线阻隔。


从材料、步骤、细节等多维度进行考量,让工地质量出众,完美还原设计效果。


充满了年轻“fansy”的生活。低饱和度,最大限度的避免鲜艳、饱和的色调。

灰调饱和度的墨绿+纯白的拼色墙,复古又摩登,平添自然气息,让空间浸染质感。软装的陈设、元素、造型,干净利落与之和谐共生。



设计师从自然和色彩中汲取元素,空间不一定都是方方正正,享受穿梭于弧线流动的美, 即为编织建筑锦缎的线。

挑空设计,包容性强,视野宽阔。是客厅,也是餐厅。

灵活的曲线=当今年轻一代多元的生活态度,曲线在空间中的表达简洁有张力。 旋转扶梯也同样兼具美观性,旋转的艺术优雅而立,线与面的交织,展现着丰富的层次感。乘着蜿蜒柔美的线条盘旋而上,与光影交错的堆叠,营造一番藏光匿影的沉浸式体验。

茶酒展示区流畅的曲线感,无惧陈规,标新立异,随手一拍,出片率爆棚~

置身于此,四季为伴,倚窗品茗,人生乐事。

阳光穿透窗的玻璃照进室内,每一个微风和煦的午间,沏一杯茶,捧一本书,亦是冥想、亦是谈笑风生间,时光在指缝间静静地流淌...

杂物与电器“隐身”,空间尽显低调范儿;直线型动线设计,减少碰撞的交叉点,呈现淡然时尚的厨房空间。 允许不会下厨,没有浓烈的生活气息,但厨房一定要有,也许朋友来玩的时候,会带上各种食材来大显身手呢!总要给朋友们一点展现自己的机会,你说是吧!


卧室,心灵的居所,不需要我们再为其添置繁琐的装饰,一张柔软舒适的床就足以一夜好眠,以咖调、灰及原木为主,高级的轻奢感。


主要材料|Material Science:艺术涂料、金属收边、热弯异形玻璃、亚面砖...
项目地址|Peoject Address:厦门·时代中心 本案设计|Designer:周裕霖 项目面积|Area:150㎡ 项目风格|Style:现代 设计、施工单位|Desine Unit:厦门好易居装饰
