🔶🔶🔸🔹🔷🔷 这套loft公寓套内48,层高4米9,钢结构搭建,楼梯连接两层楼,1楼空间是厨房、卫生间、生活阳台、客厅;2楼空间是主卧、儿童房。简约风两居室设计,空间完美利用,采光和通风效果良好,十分适宜居住。

🔺🔺1楼平面设计图🔺🔺

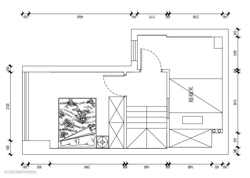
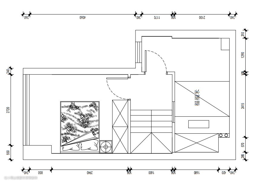
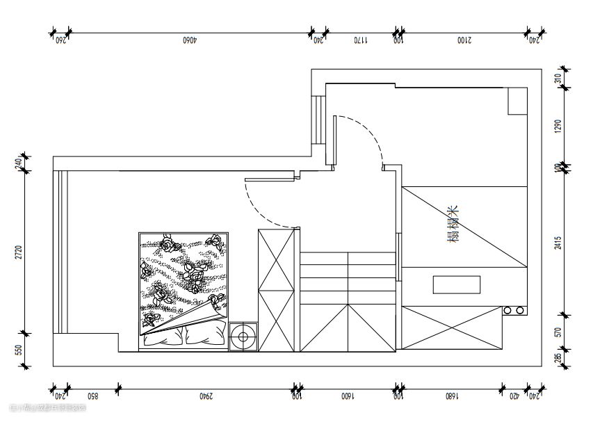
🔺🔺2楼平面设计图🔺🔺
“家居空间,旨在简单、轻松、舒适、自由,没有外界的喧嚣,尽情体会家带来的美好与向往……”






💙💙主要材料部分💜💜 瓷砖:广东佛山瓷砖 800*800*-东鹏瓷砖800*800 强化木地板 :博信达12厚强化木地板-圣象地板1.0厚木地板 强化木地板踢脚线:强化踢脚线- 实木踢脚线 楼梯踏步地板: 博信达12厚强化木地板-圣象地板1.0厚木地板 楼梯踏步强化木地板踢脚线:强化踢脚线-实木踢脚线 瓷砖刷背胶 : 德高背胶-德高瓷砖背胶400*800瓷砖 洁具三件套 : 箭牌马桶+箭牌花洒+箭牌浴室柜 门槛石 : 良彬建材 实木套装门:成品套装门 卫生间/厨房单推钛合金门:1.4cm厚 沐浴房:防爆钢化玻璃 入户鞋柜: 厂家定制-颗粒板-实木多层 阳台储物柜:厂家定制-颗粒板-实木多层 衣柜:厂家定制-颗粒板-实木多层 300*300集成吊顶:奔康吊顶 扣板阴角线:奔康吊顶 壁龛:现场红砖制作壁龛 橱房地柜/吊柜:鑫柏林厂家定制 水槽(含龙头):不锈钢水槽+龙头+角阀
一进门,便是玄关柜,设立在右侧,通顶式设计,储物空间更足。整体以简约白作为主色彩,黑色门把手,简约耐看。底部做了镂空处理,方便随时换鞋、穿鞋,也便于日常清洁打扫;中间也是镂空,可以摆放清新绿植、小型艺术品、鞋包等物品,提高生活便捷性。

客厅,简约风设计,家居从简,沙发、茶几、电视柜,简简单单,一眼便清楚整个布局,没有丝毫复杂的陈设,回归原始空间的纯粹美感。

飘窗台,设计师将其巧妙地打造成日常休憩区, 蓝色窗帘与沙发的颜色相协调,简雅耐看。



厨房,一字型布局,门选用的是无地轨推拉门,不用担心藏污纳垢,方便清洁,随时保持空间的简洁干净。

整体色彩,以香槟金、简约白作为主基调,十分简约。一整排的地柜和通顶式吊柜设计,满满的储物收纳功能,让空间看上去更加整洁美观。


冰箱采用嵌入式设计,不占空间,角落空间也能有效得到利用。另外,厨房里面有独立的洗衣晾晒阳台,完全不用担心厨房的采光与通风问题,生活舒适性极好。

这套loft公寓钢结构是满搭建的,主卧设立在2楼,拥有单独的观景阳台,窗外美景可以尽收眼底。





儿童房,也设立在2楼,床体采用的是榻榻米形式,床面是上拉式储物柜,床头也设计了多功能收纳柜,可以储放换季的被褥,也不占其他空间,十分方便实用呢~

另外,最里侧有一个过道,属于赠送的面积,设计师将其设计为嵌入式衣柜,满足日常物品的储放,让空间更加整洁干净。


卫生间,设立在1楼,由于空间有限并未设计干湿分离,但也不影响整体的空间感。悬空式浴室柜设计,方便日常打扫,看上去也更干净。白色地砖通铺、瓷砖上墙,灰色美缝,不仅保证了良好的防水防潮效果,整个空间也十分简约大气。



楼梯,钢结构楼梯搭建,木基层打底,木地板铺贴,高分子扶手设计,节省成本的同时,视觉感也十分漂亮。楼梯间的灯饰,选用的是装饰画形式的灯器,意蕴深远,优雅又温馨。





