本套房子是业主买来当做婚房使用的,对于家居环境,倾向于简约、低调、时尚又不失品质。对此,设计师从生活的本质出发,运用材质本身的华丽感,以极简的设计演绎最本质的轻奢美学。


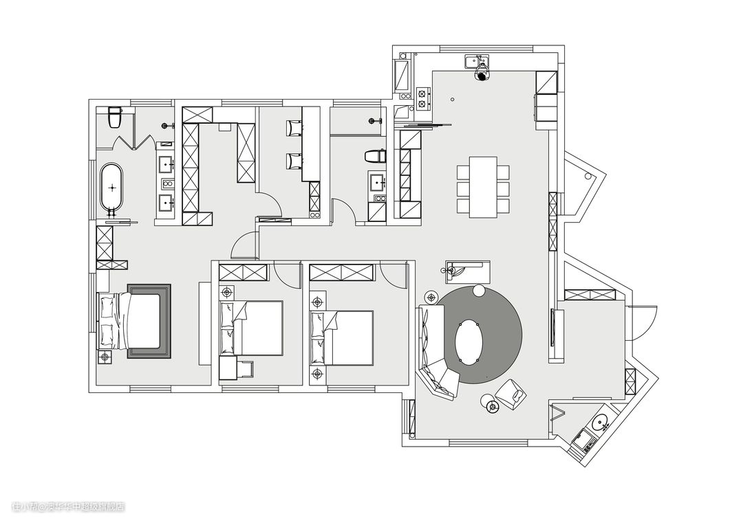
原始户型属于4室2厅3卫的格局,入户空间墙体不规则,餐厅厨房面积稍小,阳台空间过大,结合业主的实际需求与户型缺陷,我们做了如下改进: 1、入户以玄关柜填补不规则空间,以电视墙做隔断,形成一个回廊,有效保障了入户隐私。 2、阳台纳入客厅使用,改动部分墙体将不规则空间做成一个独立洗衣房。 3、阳台、餐厅、厨房打通,阳台区改做厨房,餐厅增设餐边柜,让餐厨空间更宽敞。 4、面积最小的卫生间直接纳入次卧,整体一分为二,一部分充当衣帽间,一部分充当电竞房。

玄关,兼顾功能性和美观性。增设一面墙体充当隔断,有效保障了入户隐私,背面还可充当电视背景墙使用。镂空展示区的大理石、格栅自带奢华气质,含蓄且低调。布置潮玩摆件,铺垫出家中的高级感。


客厅是开敞的无界空间,作为枢纽区域串联着空间各个场景。黑白灰的交织碰撞,搭配无主灯设计,让空间更显高贵大气。删繁就简,追求素净整洁,在功能性与高颜值都得以兼顾的情况下,不哗众取宠,却时时刻刻吸引关注的目光。


悬空电视柜设计延续了整体性的原则,既美观也解决了客厅收纳。黑灰配色稳重、理性,呈现简约大气之风范。石材融入格栅元素,造型简洁,线条流畅,提升了整体档次,低调且精致。下方壁炉设计,不破坏整体美感,保证了视觉上的统一性。左侧设置黑玻展示柜,在内嵌灯带的光影烘托下,大气又高雅。

从餐厅看客厅,沙发沉稳大气,舒适的地毯圈住家庭核心区域,带来舒适的居家环境。墙面造型简洁,于边侧增添格栅点缀,与电视背景墙相呼应,过渡自然。原有阳台区域做内嵌储物柜,增设一列开放展示柜,摆上精美的工艺品,为此方空间增添了一丝艺术气息,升华了空间品质,低调不失精致感。

拆掉原本连接阳台的玻璃门,将阳台完全融入室内,采用灰调地砖通铺,让室外光线自然流入餐厅,让整体更宽敞、更明亮。

餐厅旁的墙面增设餐边柜,蒸箱、烤箱内嵌其中,台面补充咖啡机等小家电,既满足了基本收纳需求,又能充当西厨区使用。


另一侧的墙面以白色储物柜填补墙面凹陷,完美衔接黑玻展示柜,黑白之间,呈现的是高级神秘、简洁大方的基调。剩余墙面以一整块的大理石填充,与餐桌相呼应,材质本身的纹理,自带尊贵高雅气息,彰显业主不凡的生活品味。

原有预留厨房空间拆除与餐厅阳台融为一体,阳台区域改为厨房,让餐厨空间面积翻倍,视野更开阔。

看似开放式的厨房,实则在中间做了全玻璃推拉门,地面无轨道不会造成清洁死角,平日里隐藏在柜体中间,需要时则可以拉开阻隔油烟。整体呈U型布局,冰箱置于角落,上下做橱柜,空间利用率十足。


纯白橱柜的应用,提亮了整体采光,整体看起来更宽敞,更显简约大气。台面我们使用的是质感高级且易于清理的岩板,安装超大台下盆搭配沥水篮,让生活更便捷。

主卧、衣帽间、卫生间融为一体,空间更加宽敞舒适,既方便生活又能够保障生活品质。

延续客餐厅的设计,于床头墙面添加格栅元素,增添了空间视觉感与层次感。其柔和温暖的配色,搭配无主灯设计,让人更好的放松下来,带来更舒适、更安逸的就寝体验。

定制衣柜衔接床头柜,边侧、底部设置开放格,满足业主不同的置物需求。


墙体两侧分别做了两组大衣柜,黑玻、实木柜门相间使用,实用又美观。于窗前做悬空梳妆台,完美衔接两组柜体。一抹红色作为跳色置入,带来几分俏皮与明媚,时尚又前卫。


素雅带图案的墙纸,让房间的颜色层次在彰显极简的同时不枯燥单调,为空间注入了一丝活力与童趣,更符合孩子的喜好。

进门处做通顶大衣柜,选用无把手按压式设计,简约耐看,方便孩子使用。


主卫三分离,使用更便利。双人洗漱台,减少等待时间。还有大浴缸,累的时候泡泡澡,是件万分惬意的事。

客卫二分离,淋浴区完全独立,搭载电热毛巾架、智能化妆镜,提升了整体生活品质。


电竞房是男业主专属私密娱乐空间,超长游戏桌可供双人同时使用,展示柜用来存放业主收集的手办、游戏配件,在这里既能娱乐又能放松身心。
本案设计师 张涛 设计总监 设计理念:随心生活,随心设计。 擅长风格:意式轻奢、现代简约、港式轻奢 经典楼盘:西斯莱公馆、绿地国际理想城、华润悦府、金地自在城 个人荣誉: 武汉市室内建筑装饰协会注册设计师 武汉电视台品味空间特约出镜设计师 新浪中国设计正年轻武汉星锐设计师 室内建筑装饰协会住宅装饰装修行业优秀设计师
