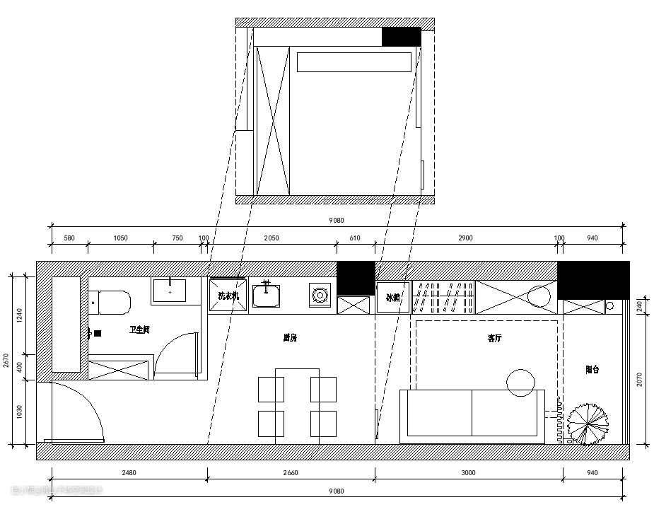
户型套内面积只有23平方米,层高2.94米,户主为一对90后的年轻夫妻,不想做太大的改动,但是希望可以有阳台,客厅,餐厅,大鞋柜,厨房,梳妆台,独立卫生间,独立卧室,大收纳等。看怎么设计可以满足这些所有的要求。

首先进门入户利用卫生间内嵌0.3米,做出一个0.95米的到顶鞋柜,50双鞋都放的下,鞋柜满足✔,独立卫生间满足✔,再进来餐厅满足✔,开放式厨房满足✔,客厅满足✔,到顶衣柜满足✔,梳妆台满足✔,梳妆台上面做吊柜,增加收纳空间满足✔,保留阳台满足✔,在厨房与餐厅区域上方用钢架结构隔一层空间出来做卧室带衣柜,独立卧室满足✔。

这是没装修前的样子,是毛坯房。





来来来,1.2.3!入户左手边是0.95米的到顶鞋柜,50双鞋都放得下,底下抬高15公分,再也不怕冲忙出忙时鞋子杂乱摆放。

右手边利用空墙做挂钩,仿北斗七星的位置,真的好好看,可以放点雨伞,包包钥匙,帽子之类的,实用又美观。

客厅增加一个到顶衣柜,放衣服,放杂物都可以,旁边是一个梳妆台,可以梳妆可办公,可放上Ipad追追剧,一举多得👍。阳台做了到顶收纳柜,拖把,洗衣用品不怕没地方放了,整整洁洁的放柜子里,放上一盆绿植,生意盎然。

沙发跟梳妆凳都用了灰色的布艺,简约温馨,利用抱枕让整个空间鲜活起来

客厅一角

客厅一角

这是上二楼卧室的梯子,阳光照进来的时候真的太美了。

到顶衣柜,收纳UPUPUP↑

梳妆台一角

梳妆台一角

客户非常喜欢这个厕所玻璃门,不透但是看着朦朦胧胧的很美。

仿大理石台面餐桌,经济美观,性价比高。搭配黄色与绿的餐椅,与客厅抱枕颜色相呼应,简简单单的一屋两人三餐四季的温馨生活。

卫生间选了白色的瓷砖,哑光带点纹路,简洁干净。洗手台选用灰色大理石台面,采用内嵌洗手盆,不给藏污纳垢机会,没有卫生死角。

利用墙体做了一个壁龛设计,放点洗浴用品,更方便。

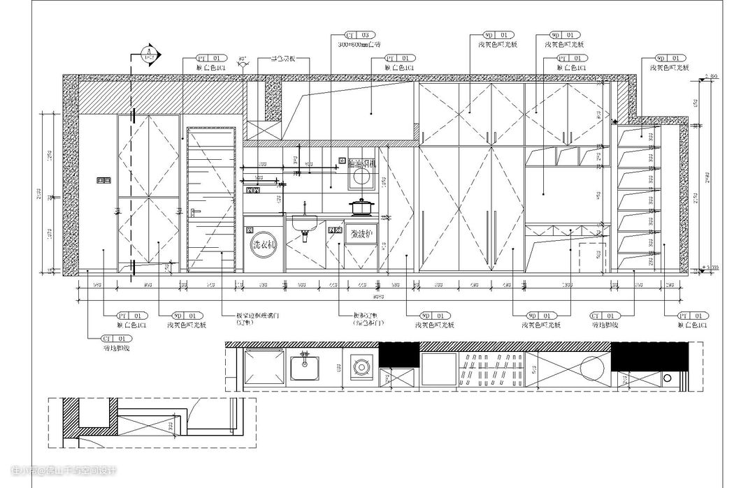
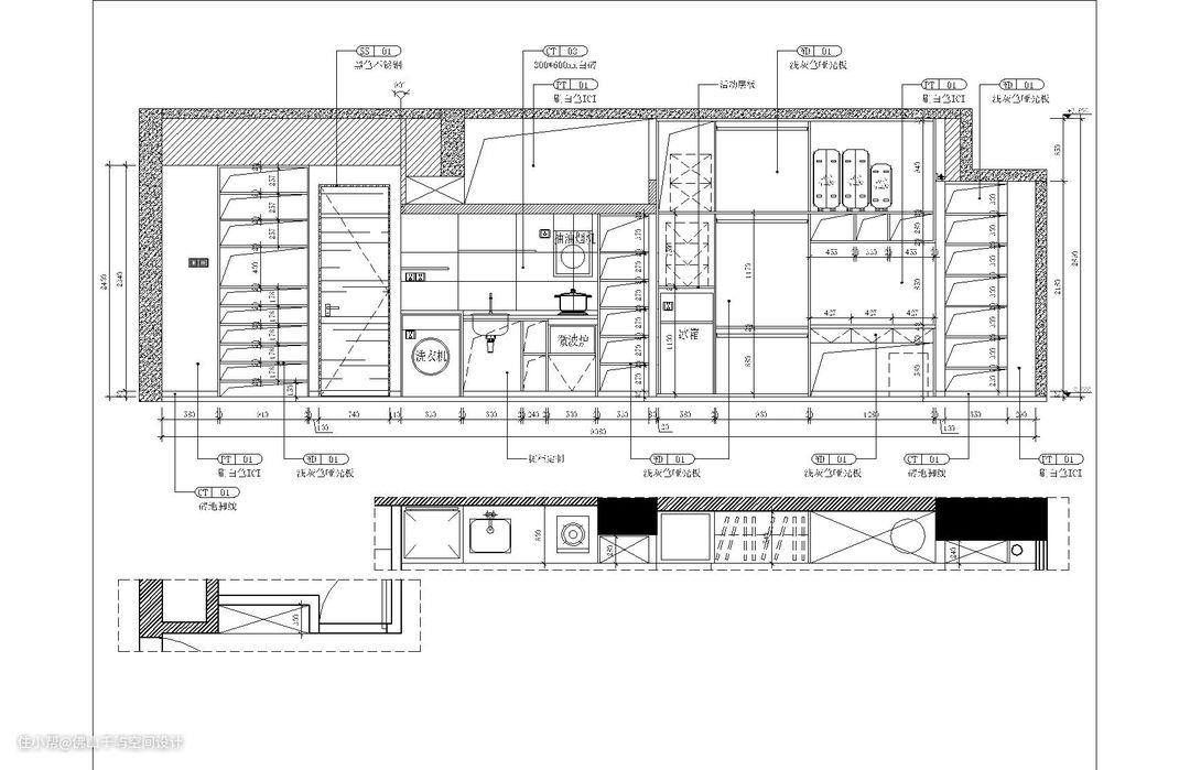
附上部分施工图



