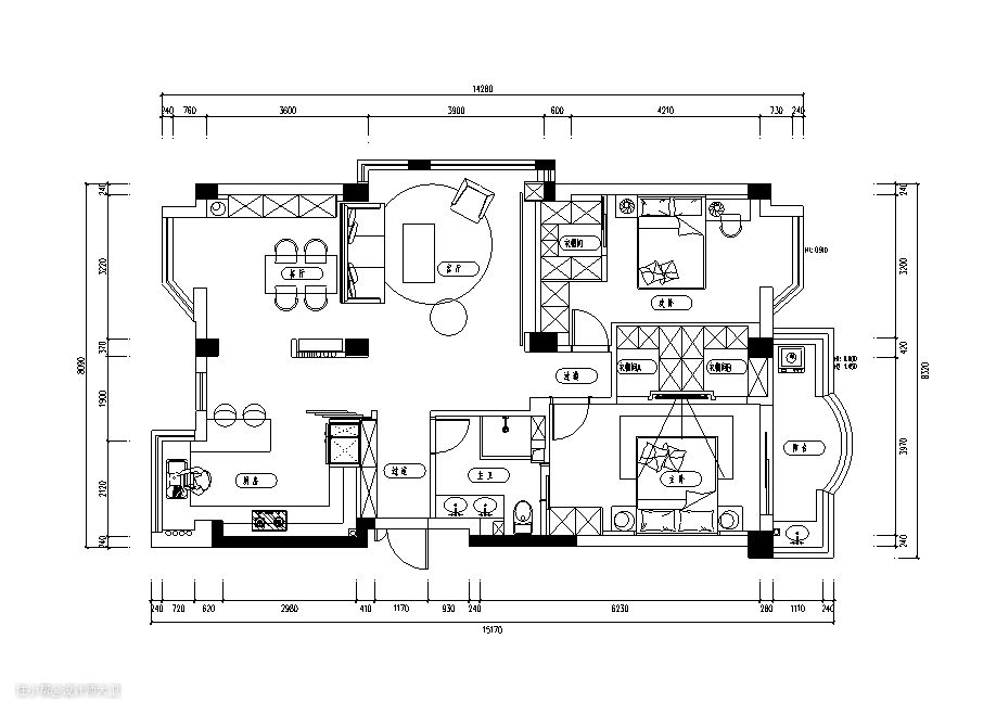
因为是一家三口的居住空间,所以对储物空间的需求非常高,并且为了增强家人的情感互动性,我们打开了厨房,让家人之间的交流更加通畅。 改造效果: ✔独立且通透的玄关:打通原有的与客厅之间的隔断墙面,大面积采用全通透的形式,一秒打破空间闭塞,原本阴暗的采光被改善 ✔开放式餐厨一体:改变了原始户型的一个房中房形式的厨房,将厨房、餐厅、客厅融合为一体,打造成开放式厨餐一体,改善原有的采光差通风差的问题 ✔增设多功能阳台:在不影响采光的情况下,增设了洗手台,拖把池,储物柜,洗衣机柜,充分利用空间,满足一家人的储物需求,打造出舒适的空间 ◆ Area:118㎡ ◆ Address:天巢花苑 ◆ Design Style:现代简约 ◆ Interior Decoration Design:设计师大卫

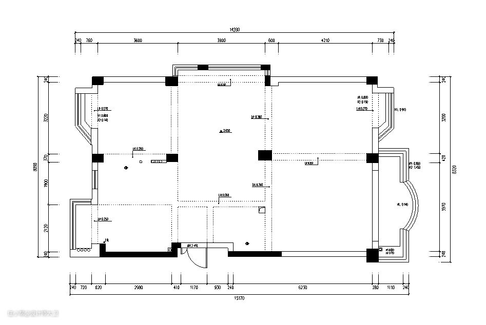
◆ 原始户型图

◆平面设计图
玄关区域拆除原本在室内形成暗光区的隔断墙体,巧妙运用内嵌式平面柜设计,将客厅良好的采光引入到玄关,同时延伸了入户时的视线,拉宽了空间感。

中间留空,可作为临时放置区,方便放钥匙、包包等随身物品,另一侧挂衣区换鞋区人性化贴心设计,方便主人的进出置物需求。

简化墙面装饰,利用黑白撞色,大理石背景板自带纹理触动心中美感,质感舒适的沙发承载休闲娱乐,见证幸福瞬间。

客厅采用主灯+线条灯的组合方式,极具设计感的金属设计主灯搭配干净利落的线条灯,简洁视觉的同时空间也得到了更大的舒展。


空间的采光条件很好,采用客餐厨一体的空间设计,让整个空间变得更加开阔。各个空间和动线都被规划的很合理。


将就餐区设计在入户视野盲区,空间打通的同时又保证了就餐的私密性。

我们尽可能多的给予到厨房功能性,将原结构独立闭塞的厨房空间改造成开放式餐厨一体,极大增强了家的温馨感,空间也更为宽广通透,强调了一家人的互动性。

厨房是最能提升幸福感的地方,坐在吧台等待美好,等待美味可口的饭菜诞生在这片天地。


温馨舒适的主卧是美好生活的前提,注重卧室的收纳功能,确保室内干净整洁,木饰地板使空间更加柔和。


延续简约的设计风格,侧重舒适体验,为居者营造完美的睡眠环境,床品色彩选用低调,避免视觉干扰,温和的床头灯也倾心呵护着居住者的每一寸睡眠空间。

浅灰色墙面和窗帘彰显主人清冷的个性,护墙板的设计让空间更显立体感。

悠闲的时光里捧一本书,阳光洒进房间,是温暖的味道,也是岁月的静好。

卫生间是标准的干湿分离的形式,淋浴区设计出一块内嵌式空间,洗浴用品统一有序地摆放,空间干净利落。


洗衣服太麻烦了,洗衣机解放你的双手,挂满衣服的阳台太影响美观了,取消晾衣架,烘干机安排!

