
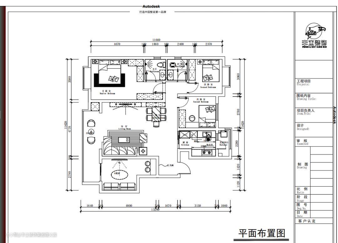
原始结构图 原始户型结构优越户型方正,按照原有布局即可。

小四居室,根据业主需求,拿出一个房间作为K歌房,满足业主的小爱好。 客厅阳台外面需要有洗衣晾晒区,设计师根据业主需求,设计定制洗衣柜,嵌入式摆放洗衣机,时尚感更强。 主次卫干湿分离,使用方便不容易滋生细菌。 主卧空间宽敞,合理利用空间,定制更多的柜子,满足日常收纳 孩子需要有学习的空间,做一个功能室空间,即是书房也是卧房。
进门的正对位置摆放了一个成品鞋柜,玄关空间位置不大,业主不想空间太拥挤,一个精致的成品鞋柜也能满足一家人的需求。

鞋柜的上方用小的装饰品点缀,时尚感慢慢。鞋柜上的金属线条让空间充满了高贵的格调。


客厅空间使用灰白色调,突出简约、高格调的设计,吊顶、 金属线条、 灯光等每个都为了空间的奢华做着注解,透露着自然轻奢高雅的气氛。不同的软装进行搭配,在颜色与颜色的相互碰撞下,拉伸了整个空间的层次。


沙发背景墙舒适简单,护墙板+金属线条,简约中不失轻奢范儿!

电视背景墙耐看且具有功能性,没有电视柜,选择做地台设计,台面大更耐用。中间是大理石背景墙效果俱佳,两边位置都做了边柜,用于展示和收纳。


茶几选择了两个叠放的茶几设计,金属颜色搭配牙白色,耐看性超强。

客餐厅一体的开放式设计,尽显空间的开阔。一盏时尚别致的吊灯,营造雅致的用餐氛围。多功能复合布局将餐厅客厅连接在一起,让空间价值实现最大化,在不同分区的顺畅中流转,自然气韵自由穿梭,释放层次与美感。


餐边柜和电视背景墙完美衔接,整体空间更具有流畅性。

一字型厨房设计,过道两边都有可操作的空间,整体选择集成灶的模式,功能更加齐全,下厨得心应手。



上方吊柜下方地柜,超大收纳空间,很有安全感。

主卧延续整体的轻奢格调,皮质靠背床+岩板背景墙,通过不同的材质和深浅度,让空间质感丰富不单调。


除了中间的主关灯设计,床头的两侧还做了照明设计,别致的床头灯,精致且具有氛围感。



靠窗角落位置是女主人的梳妆台,一天的精准妆容就在这里诞生啦,小小梳妆台麻雀虽小五脏俱全,让女主人的护肤品,美妆产品都有自己专门的空间。

从这个位置不仅可以看到正对位置的衣柜,在主卧室门的一侧也做了一整排的嵌入式衣柜设计,让收纳有序。
次卧相对主卧来比较简单舒适,一张床+一个收纳衣柜就是一个超有魅力的收纳睡眠空间。



这个卧室多了一个收纳的小飘窗,设计师利用飘窗的位置打造了书柜,飘窗的下方位置做抽屉也能满足收纳,后期飘窗位置会改成孩子的学习空间。


床头背景墙刷大白,加一副装饰画点缀,更显气质。





嵌入式推拉门衣柜,收纳能力不容忽视。
K歌房整体软装偏向复古,全屋无主灯设计,利用筒灯打造不一样的氛围感


墙面具有年代感的装饰画,在灯光的渲染下颇具有上海滩的氛围。

房间的里面是有一个小型酒柜放置业主收罗的各种酒,还增设了一个小吧台的设计,休闲时在这个位置细细品酒也是不错的选择。

上方装了星空顶,深具个性魅力的独特效果,实现了科技与艺术的完美结合!
卫生间干湿分离,为主人提供了方便实用的卫浴空间;灰色的地砖与黑色的置物架搭配,加上带暗藏灯带的镜柜组合,营造出一种高级时尚精致的卫浴空间氛围。



次卫采用灰色地砖+黑色浴室柜结合,收纳空间丰富。




