业主喜欢简约时尚的设计,特别不喜欢太繁复,喜欢空间多点留白,让人彻底放空。业主平时的爱好非常广泛,例如下棋、游泳、健身等等,所以希望在空间的功能上更够进行合理的设计。

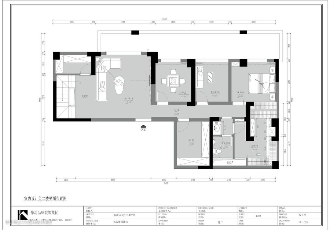
负二楼主要作为了一个娱乐休闲的空间,包括棋牌室、酒窖、多功能房(影厅)、水馆间和健身房,同时还设置了一间保姆房。

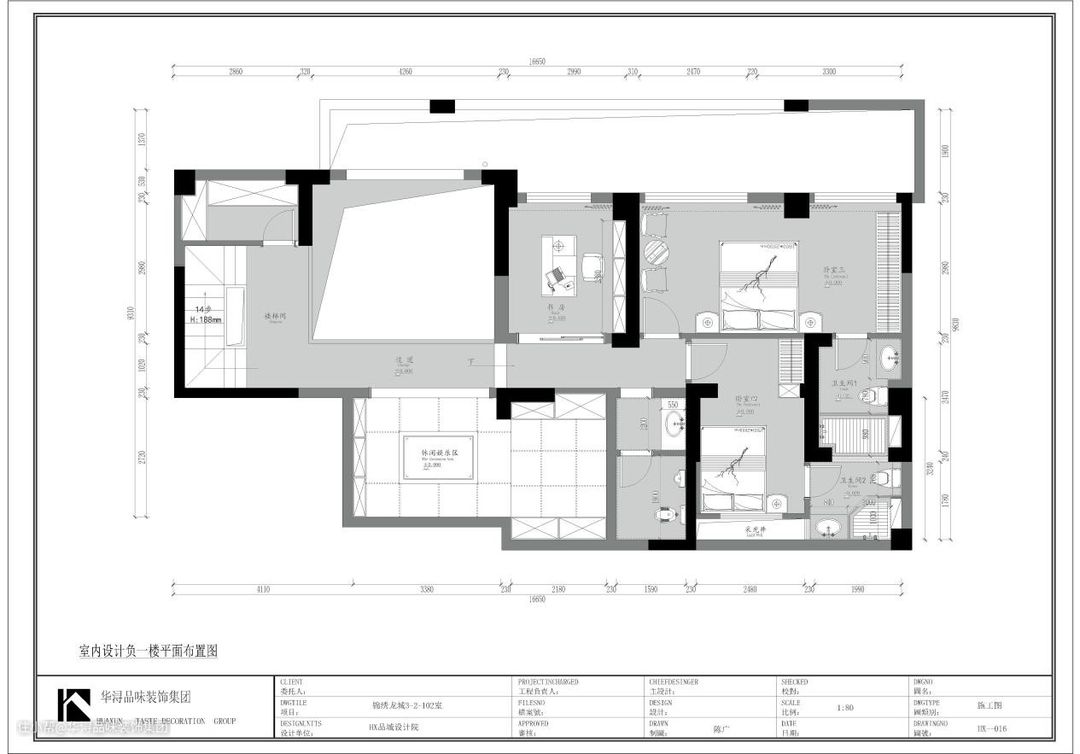
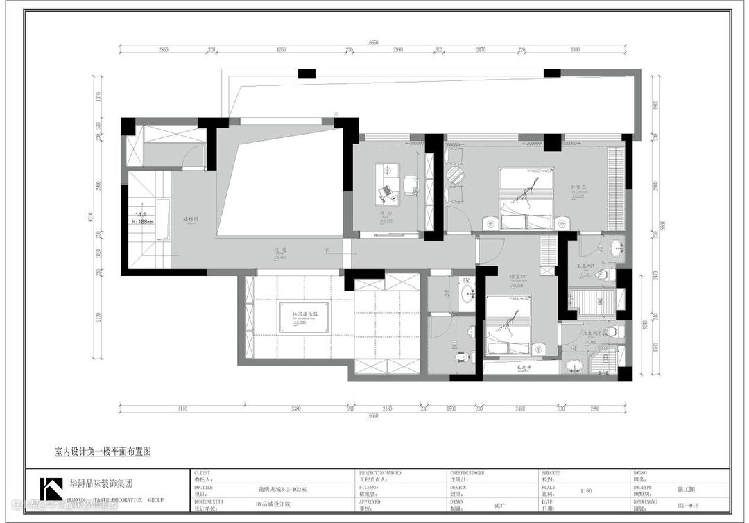
负一楼的整体空间设计是偏安静的,所以在这一楼层设置了书房、两个卧室和一个比较安静的休闲娱乐区。

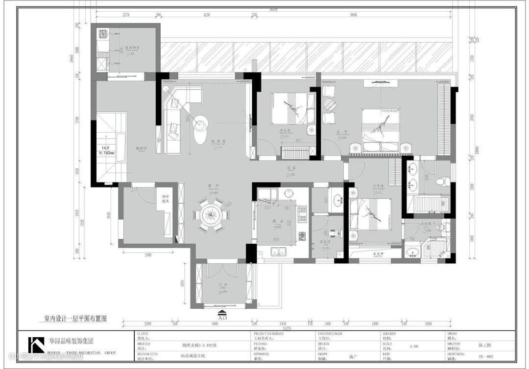
一楼兼具了会客和休息的空间,包括客厅、餐厅和三间卧室,同时还设置了一个生活阳台,实用性非常强。 原本室内的采光不是太好,设计师通过将部分墙体改造成玻璃窗的效果,很好的解决了这一问题。

客厅给人的第一感觉只能用舒服来形容。无论是色调还是布局,都给人一种宁静的感觉。 白色石膏吊顶没有做任何修饰,几个不规则分布的射灯,就彰显出了业主的艺术品味。电视背景墙也是非常的简单,大理石瓷砖配上原木色的边框造型,多了一种对称美,特别是两盏壁灯的点缀,让空间更具层次感、更加立体了。

电视机柜也是简单得不能再简单,白眼的岩板桌面和原木色的抽屉柜,简单又大气。有别于其他的落地玻璃窗,设计师在客厅窗户设计上加上了黑色的边框,线条感极强,非常时尚。

沙发的色调设计师选择了深灰色,非常有质感。几个浅灰色的抱枕与茶几的点缀,又让视觉效果更加丰富。 设计师通过客厅的颜色、色块、线条给观者营造了两种视觉效果,电视机一侧是暖色调,而沙发一侧是冷色调,视觉上的冲击营造了一种时尚前卫的氛围。

二楼客厅的整体风格还是简约,但与一楼客厅相比,多了一份温馨惬意。大大的落地玻璃窗,灰白色的薄纱窗帘,散发出一种低调、简约、含蓄的时尚气息。一颗高耸的绿植,又让整个空间充满了活力。 黑色的皮质沙发,配上高低错落的黑白圆茶几,非常时尚。电视机背景墙也增设了展柜,可以摆上业主喜欢的各种艺术工艺品了。

餐厅设在了二楼,与客厅之间是一种开放式的布局,空间显得更宽敞,采光也更好。白色岩板面的圆餐桌,搭配上卡其色的皮质餐椅,简单又时尚。 餐桌上摆放了一瓶鲜花,既丰富了空间的层次感,又营造了温馨的氛围。厨房与餐厅相邻,一面玻璃门加上灰色哑光钢的边框,非常的大气,让整个餐厅的功能区域更加分明。

靠墙壁柜的处理也是非常的人性化,充分利用空间的同时,又增强了实用性。

原木地板、杏色大床、卡其色床头柜,完美演绎了极简即极奢的高级感。两个中式风格的吊灯对称的设置在了床头处,显得格外的气派。拉开窗帘就能看到自家的空中花园,真的是太完美了。 主卧的一个非常大的特色就是加高的吊顶设计,空间显得很开阔,而且线条、层次的设计都非常有特色。

拥有落地玻璃窗的书房天生就自带高级感。一整面墙都做了嵌入式的书柜,非常的气派。一张黑色简易书桌、一把褐色的皮质椅子,简约大气。

过道可以说是非常的利落干净,没有一丝装饰,而透明钢化玻璃的护栏又非常时尚,不但让空间更加开阔,还呈现出整个空间的线条,是一种非常好的留白处理。
