这是我和老伴的家,房子面积是168平米。我是山东京剧团的演员,老伴是民间器乐演奏家,设计师考虑我们老两口做了半辈子的艺术工作,特别为我们设计出富有文艺气息还得特别时尚的现代轻奢风装修。我们对装修不是很懂,但就装修后的体验看,可以用惊喜一词来形容。既有艺术气息又很符合养老生活的舒适与便携性。在这里也是非常感谢设计师。现在,我和老伴居住的每一天都充满新鲜感,心态也变得年轻了。

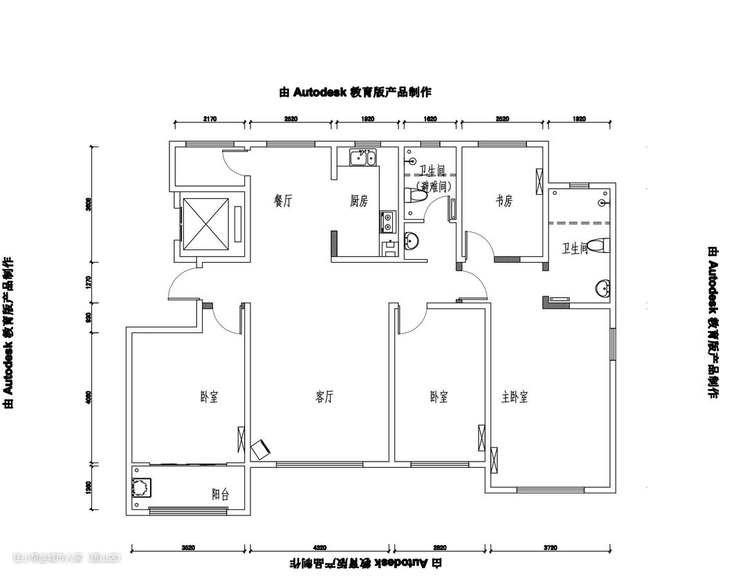
原始布局:这套房子为四室两厅两卫户型,从结构上看,没挑出什么问题,基本满足我们居住的需求了。只是希望装修后,老伴能有间茶室,我有间衣帽间、化妆间就可以了。另外我们希望能把这个的户型功能性、舒适性最大化发挥,这就需要设计师的智慧了。

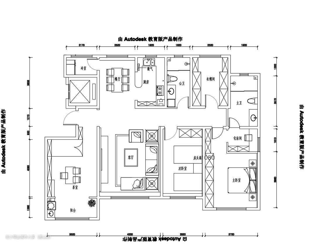
改造布局:设计师在布局方面以养老功能为主,选择隔而不断的布局手法,尽量减少儿女不常来家的空巢感。主要改变包括西侧卧室改为茶水间,与阳台一体化,整体宽敞大气、通透明亮。北侧书房改为衣帽间。将主卫生间扩入到主卧中,以化妆间隔断来进行划分,以此提升生活的便捷性。
入户后,可以看到全屋以白色墙面与水墨风的地砖搭配,看起清爽舒适。玄关处搭配一个换鞋凳,看起来不显眼,却非常实用舒适,还不占地方。

走廊尽头是一幅抽象风挂画,里面包含各种石材的纹理,充满浓浓的艺术气息。这个装饰提升全屋艺术氛围。

以深沉的色调为主,搭配舒适大气的家具,带来端庄华贵的感受。使用起来也是相当舒适。值得称道的是,沙发背景墙的设计非常具有艺术气息。选择大理石材质搭配小方格墙砖,展现出奢而不俗的设计感。





餐厅与厨房打通,空间变得宽敞明亮。餐厅布置简洁舒适,正中摆放岩板材质的餐桌,一桌六椅的配置相当够用,尤其是在儿女们回家时,也足够就餐使用。



厨房选择白色橱柜,整体看起来清爽宜人。上下打满橱柜,收纳容量十分够用。台面上可以整齐摆满厨房电器和餐具,带来实用功能还不失时尚感的厨房空间。



主卧延续全屋的大气华贵的风格,依然选择轻奢风的家具。设计师考虑到中老年人需要舒适方便的睡眠环境,为我们搭配浅棕色的舒适大床与床头柜,色调保持一致。背景墙挂着我们结婚纪念日的合照。挂起来不显俗气还温馨满满。 床的对面定制了一套打满柜子的背景墙,一台小电视摆放中央,方便我们临睡前的观看电视节目。两侧定制储物格可以摆放一些小摆件和功能用品,整体显得不空荡。





客卧主要考虑儿女们回来时能够有个舒适的睡眠环境。特别让设计师考虑年轻人的喜欢的设计风格,深色墙板搭配水墨风的背景墙,看起来优雅清新。正中摆放两张单人床,即使人多也不担心。

公共卫生间以白色为主色调,选择干湿分离设计,布局简单规整,看起来清新又实用。主卫生间以黑白两色搭配,显得富有现代感。浴区选择宽大的花洒,洗澡时的大流量水流就像洗浴中心一样舒适。智能马桶对我们中老年人非常重要,使用起来也比较方便健康。




在茶室的阳台区域,设置简洁的茶台,一张茶台两把座椅,一边沐浴阳光,一边品茶,享受老年生活的舒适惬意时光。

化妆间是我的重要区域,作为京剧演员,除了日常化妆外,工作时也需要尝试各种脸谱的描绘。这个化妆间虽然紧凑但设计很巧妙,仅利用卧室与卫生间的过渡区域而搭建,不占更多的空间,原木色桌椅充满温馨感,挂上几张我的工作照,瞬间就可以勾起太多的美好回忆。


衣帽间是我特别的设计需求,这是因为我有太多衣物需要收纳,包括戏服和日常穿着。这个空间恰好满足我,两侧定制黑白配色的衣柜,设计整齐利落。中间宽敞区域可以方便我更换各种衣物。整体设计方便、时尚,达到我的预期效果。

总结:这套房子的设计基本还原了效果图的设计。个别细节差异是因为材料的选购方面没有找到完全一致。但有些实际挑选的材料甚至效果更好。总之,实景效果我们还是比较惊喜且满意的。
建极高端设计师 董与 中国建筑装饰协会注册室内建筑师,毕业于八大美院之一的鲁迅美术学院,后再法国EcoleCanondo进修室内建筑。2008年在美国B.Altman&Co公司工作2年,回国做个人设计工作室,主做酒店别墅设计工作。2013年开创全案别墅设计模式的先河,2018年加入尚美饰家集团任建极设计总监。 2006中国室内设计大赛银奖 2010荣获“中国十大室内设计师”称号 2012中国年轻百名优秀设计师 2014十二运帆船竞赛中心,将军石温泉酒店设计获亚太室内设计大奖 2015全国住宅装饰装修行业优秀设计 2016荣获第二届中国筑巢奖室内设计类金奖 2017科勒杯中国室内装饰设计金奖 2019济南章丘古建筑博物馆“天兴泰”室内设计获中国室内设计金堂奖 2021尚美饰家最佳设计师 2019~2022期间主做济南各个别墅区,济南院子、大华紫郡、琼华九璋、漫山香墅、杨柳春风、金茂逸墅、 景粼原著、紫麟台、锦绣辰园、金茂墅、九里晴川等各大别墅区作品50余套。
