本套房子的业主是一对年轻的90后夫妻,房子装修好是用来做婚房,在设计上要求简约,同时也要凸显出年轻人的生活品质,所以结合业主的兴趣爱好和色彩偏好设计师从轻奢风格入手,给了这套房子不一样的韵味,同时在储物空间上也做足了设计,小户型空间不足的问题也得到了很大的改善。业主对空间需求很明确,除了满足偶尔居住需求外还想为空间创造更多可能性,设计师将客餐厅一体化,在小空间基础实现了较为宽敞的视觉氛围;而在整体风格上则是以轻奢风为主,通过大胆的配色,让这个刚需房也装出了优雅华丽的豪宅气质,实用大方、令人舒适。同时也为各空间增加收纳空间,一家4口在这个空间里面也可以满足各自所需!

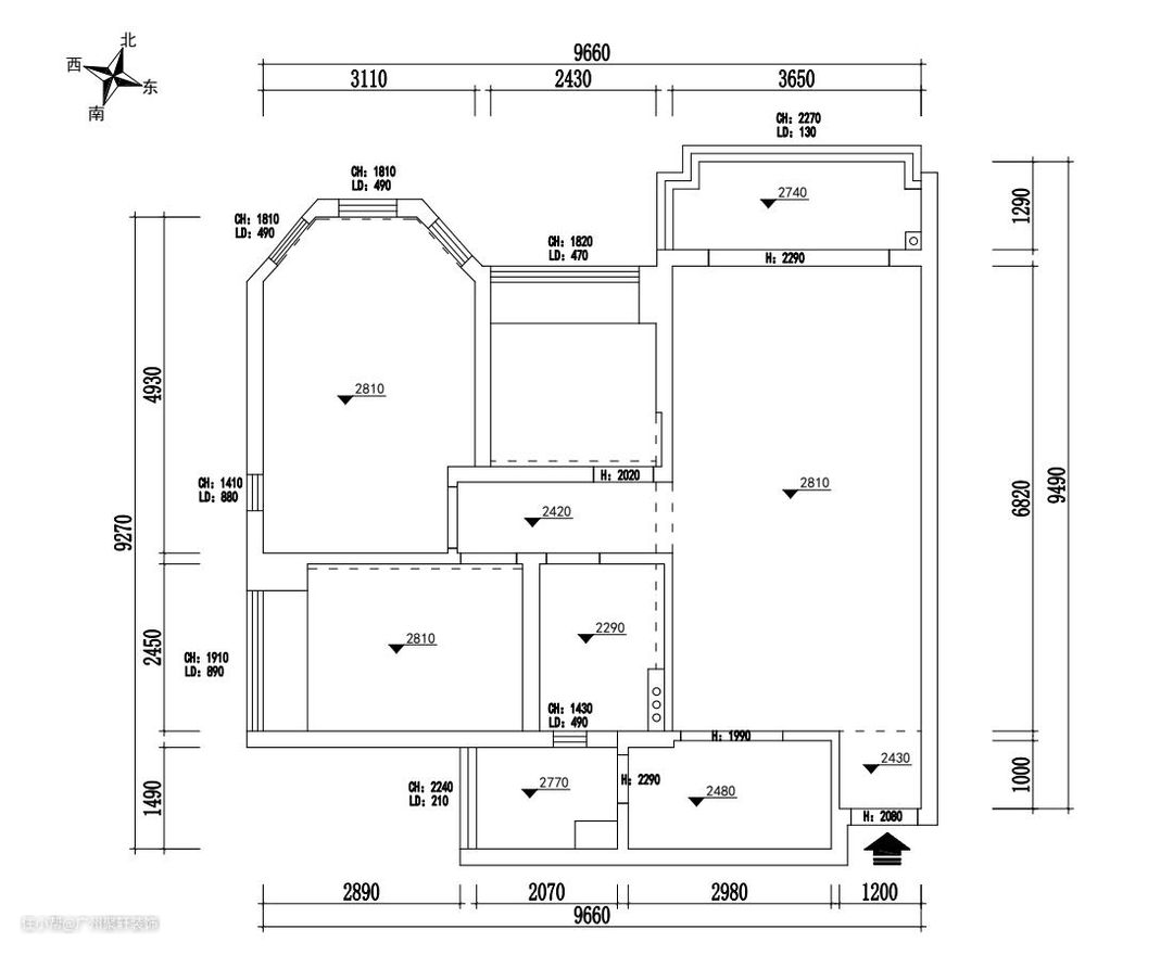
原户型问题: 1、玄关位置太小,没办法正常摆放鞋柜 2、整体储物空间不足,不能满足正常生活需求 3、生活阳台太鸡肋,空间没办法利用 4、合理利用家中的各个空间,提高家居的舒适性

改造亮点: ★ 把玄关位置打掉做鞋柜,后面贴砖,充分利用空间 ★ 厨房做L型橱柜,嵌入式冰箱更省空间 ★ 小阳台整体做晾晒区,凹角部分做薄柜放工具;大阳台做休闲区域,加一个洗手盆,方便后期的洗漱 ★ 儿童房合理利用飘窗,做储物和玩耍空间,用亮丽颜色粉刷墙面增加童趣 ★ 主卧多窗户设计,让忙碌的生活有一个属于自己安静的空间 ★ 各空间大胆鲜艳的配色,营造出一种优雅端庄的华丽气质感。






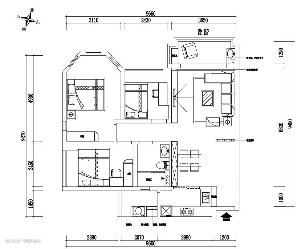
入户靠厨房外墙做玄关柜,下方悬空设计,空间留置物台,方便日常生活需求!

玄关,往往代表了整个家。它是客人到访时留下的第一印象,它是每晚归家后迎接你的第一道光。玄关柜大面积的浅色色块与深色色块相拼接,经典黑白配色简单耐看,轻松营造出门厅的精致感。柜体线条流畅利落,大方简洁,实用性十足!
客厅空间面积不大,却以实用的功能设计与优雅华丽的配色,实现了一个小巧精致的档次效果,吊顶是无主灯设计,人在客厅丝毫不会有压抑感,效果简单而大气。而细节软装与整体配色方案搭配上,也是充满了轻奢华丽的气质感。


客厅整体以黑白灰主色系设计,深灰色80*120大地砖通铺,简约时尚,电视背景墙采用整面柜体设计,美观又实用,极大增加了整体的储物空间,墨绿色的沙发和橙色的靠椅是整个空间的点缀,让设计更有活力。

客厅面积不大,为了充分利用空间,让客厅显大,在茶几的选择上舍去了传统的方形大茶几,采用现在流行的小圆桌,加上一些简单的点缀,既满足了平时的使用需求,看上去又不足以累赘。

电视背景墙在功能和美观上都为整体的设计增添了不少。

简单的电视背景墙挂画装饰,流行的元素给了设计不一样的韵味。

简约的吊顶,无主灯设计风格在室内光线的设计上也做足了功夫。


储物型的整墙电视柜,做到收纳功能最大化,藏与露合理分配,干净整洁,中间开放格设计摆放不同色彩的网红流体熊,潮范儿十足!绿色泡泡沙发+黄色单人沙发是客厅里的亮眼单品,令人难以挪开眼,也忍不住想要坐上去体验一下这蓬松的触感!茶几上的郁金香又让整个大厅多了些浪漫和温馨。复古范的装饰画,让空间显得更加大胆而高级。

留一些空间可以放一些装饰品或者书籍,增加储物功能同时又方便日常的拿取。



橙色的靠椅是整个客厅空间的画龙点睛之笔。

房子面积不大,但是整体的客餐厅面积较大,空间宽敞,靠墙做餐边柜,黑白灰设计凸显风格的时候又显空间,金色的边框作为轻奢风格的点缀,趣味的吊灯给整体增添了一丝趣味。

餐厅与客厅连贯,保持统一的轻奢风元素,整体空间是实用舒适而不失档次气质。一字排开的餐边柜让空间更加轻盈通透,视野更开阔。玻璃柜门更显通透,隐藏灯带氛围感满满,瞬间提升用餐格调。

餐厅与厨房相邻,用玻璃推拉门做隔断,既做到了空间的通透性,又做了封闭式的设计隔绝油烟。

大理石台面餐桌搭配皮质餐桌椅组合是享受厨房的“调和剂”,能够为餐厅增添一份灵动跳跃的气息,高级感十足,一套餐桌椅就能给厨房带来轻奢感。别致的喜鹊吊灯寓意喜上眉梢,把对生活最朴素美好的愿望都藏在细节里。

灰色瓷砖搭配米白的橱柜面板,让狭小的厨房空间在视觉上起到了放大的作用,温馨舒适,下厨体验感更佳。

L型小厨房设计,洗切炒动线合理,上面做吊柜增加储物收纳空间。

厨房电器整体选用嵌入式设计,电器和橱柜完美融合,化繁为简,将每一寸空间利用到了极致!

厨房面积够用,外连小阳台作为储物区,洗衣机和生活用品都可以放在这里,增加室内空间的面积。


黑色的洗漱池凸显大气时尚的风格,抽拉式的水龙头设计方便日常生活的使用。

在收纳设计师也充分利用了墙面的空间,洗切炒的工具上墙,调味品用调味盒收集,让柜台更加干净整洁。


主卧的装修色彩除了大面积白色和原木色,一抹绿色的软装点缀,丰富整体空间的意象,带给人清新、静逸的感受,塑造出了淡雅又富有诗意的空间氛围。

主卧简约舒适,在色彩上业主要求尽量采用灰色系,不太张扬的风格凸显个人的品味,同时又不会太容易变脏。

一门到顶式衣柜,低调极简的设计,却超显轻奢格调;同时实现了强大的收纳空间,也满足了整个空间的功能性与美观性。卧室凸处多窗户设计,随性而舒适,闲暇时刻,坐在窗边阅读、办公、看剧,感受生活的惬意与美好。


靠墙做顶天立地的衣柜,半边透明半边封闭,整体的设计上也是高级感满满,同时左边作为大件衣服的区域,右边作为小物件的收纳区域,功能分区也十分合理。

床头放置智能的床头柜,深蓝色的配色与床体的颜色相配,更显高级范儿,同时还可以作为无线充电台,使用起来也特别方便。

主卧空间不大,但是功能上应有尽有,窗台的空间闲暇时也是休闲的好场所。
在卧室中大面积使用青绿色,带来高雅而冷傲的感觉。搭配跳跃的棕红色的床品从而减少冷傲感而增加温馨、温暖感。同时还可以加入别致的皇冠灯,提高空间的格调。

次卧室的设计更偏向于暖色系,主要是为了偶尔老人过来居住,所以整体的风格更添了一份素雅和温馨。

一门到顶衣柜的开放格延伸出床头柜,与衣柜一体设计,颜值更高整体性更强,而且不会挡住衣柜门的开合。

皇冠型的吊灯除了照明的功能,更是一种设计的点缀,为这个小房间增加了一丝美感。

儿童房以简约纯净的白色为主色,床头板所在背景墙以浅蓝色漆覆盖,像是一片蓝色的天空;窗台布艺装饰配色复刻了床头墙配色。与层层蓝色共同描绘大自然的魅力,点亮童趣与活泼,活力十足。

飘窗一侧做了一组定制柜,与飘窗浑然一体,最大化利用空间,可以让孩子自己收拾玩具和杂物,从小养成整理习惯。悬空式书桌柜功能丰富,又不容易磕碰,视觉上更清爽大气。

儿童的设计就更加简洁,没有过多的色彩冲突,主题以白色系为主,一体式的书桌和书柜设计给孩子创造了一个良好的学习环境,同时大大的配飘窗也给了孩子玩耍的空间。


浅蓝的色系让人内心更加愉悦,也给了孩子一个健康成长的环境。
卫生间黑白灰色调,淋浴区和洗手台之间用玻璃隔开,很好地做了干湿分离。台盆柜+小吊柜大大提升空间利用率,让空间不至于变得拥挤杂乱。带灯的圆镜,精致优雅,还能补充光线,颜值与实用双100分。


卫生间干湿分离,墙面地砖同色,更具有一体性,没有用很花哨的小花砖,而是灰色的大块瓷砖,更显大气时尚。

洗浴台悬空,更方便平时的打扫,不会藏污纳垢,智能浴室镜是年轻人生活的必选
各空间部分主材报价清单:

